家具|143平简约四居室,水泥灰和原木风的家具打造的空间,让人羡慕
一套建筑面积143平米的简约风四居室案例,设计师以简约冷静的水泥灰作为基调,搭配原木风的家具和充满格调感的软装,来打造出这样一个让人感觉到年轻大方而又简约自然的空间,让人羡慕不已。客厅的装修很考验设计者的功底,简约风格虽然并不传统,但是也是比较有特点的装修了,区域处理的不好就很容易让装修变得本末倒置,分不清室内的重点。这个客厅的设计非常成功,将每一个角落都运用得合理,而且非常实用。
沙发背景墙直接刷白搭配挂画,顶部吊顶加装藏光设计。L形的布艺沙发面积很大,让人有舒适感。
客厅的电视背景墙在水泥墙面的基调上,做了白色的叠层造型,把电视做嵌入式,简约时尚。卧室的设计首要特点是温馨,宁静。一个静谧的空间才可以给我们休息的保障,卧室本就是一个私密的地方,所以一定要考虑它的“静”。
主卧色调偏暗一些,卧室的床头背景墙是时尚的硬包设计,结合灰色的质感让人感觉非常有格调。
儿童房配色偏清新,床头背景墙刷成浅灰绿色,灰色调的床品和木地板搭配原木风的床,飘窗底部也能收纳。卫生间是我们功能最强大的一个空间,也是用水量最多的一个地方,所以防水是第一要位!一定要找个专业的团队做最专业的防水,卫生间的五金小配件也很多,我们买的时候也要买质量好的。很多时候家里出现问题都是这些小配件引起的,更换起来也很麻烦。
卫生间内部以水泥质感为主,整个墙地砖都选择灰色调,大面积镜柜搭配悬空的洗手台,让卫生间看起来更宽敞。生活中一定离不开餐桌的选择,餐桌在家庭生活中也起着很重要的作用。餐桌存在于我们的生活中,家中有老人小孩的话可以采用圆桌,因为它不是有角的,可以避免我们磕碰到。
厨房和餐厅结合,墙面的小白砖搭配白色橱柜和灰色调地砖,让整个餐厨空间看起来简洁而又轻松
餐厅靠着窗户来做,简单的木质餐桌和木质餐椅,沿着窗户还做了一排柜子,让收纳更方便。书房是学习和办公的场所,该部分区域主要突出安静和舒适。能够在一个充满书香气息味道的书房里办公是一件多么幸福的事情啊!
书桌的两侧做了黑框的玻璃隔断,可以避免油烟和隔离空间,又能保证光线流通,让整个空间更宽敞明亮。玄关是一个家庭的门脸,为了保护主人的隐私,避免客人一进门就对整个居室一览无余,在进门处用木质或玻璃作一个隔断,划出一块独立区域,在视觉上遮挡一下。
入户的玄关走廊一侧做嵌入式鞋柜和木饰面板,另一侧刷成了水泥质感墙面,独特而又质朴。
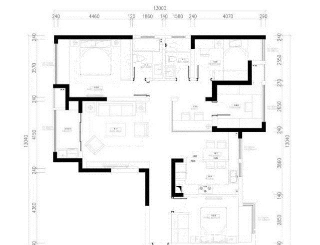
四居室(包含一书房),餐厨在一个空间,方便操作。
推荐阅读
- 心塞|5个月装修一套房,硬装让我喜出望外,结果家具一上全废了!心塞
- 家具|家具展厅30余万红木家具被盗,嫌疑人竟是高学历海外留学生
- 卫生间|129平现代美式三居室,打造出一个舒适又温馨的美式家
- 三居室|118平现代风三居室,一个简单而纯粹还原生活色彩的家
- 郑州|买房月供曝光!郑州最新平均工资8694元,撑得起房贷么?
- 石家庄|144平的面积,无人值守棋牌室,这是如何做到的?
- 简单感|现实的平衡取舍,才是生活之道!143平现代风格设计欣赏!
- 她家148平米,进门就被玄关迷住,不做吊顶跟背景墙,阳台超漂亮
- 修建|精选10套三层户型图纸,占地面积均不足百平,尤其适合新农村修建
- 南通|拍卖成功!江苏南通一处197平住宅192万成交!
