两层|农村两层别墅,造价不超过20w,带你霸气玩转新农村!
现在农村的房子大多都属于自建房,简单霸气为主。因为好多人都没有经济实力去商圈买到心仪的房子。今天装修人小编就给大家介绍一套主体造价只需20w左右,加上简单装修15w以内的农村别墅房。
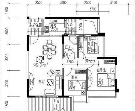
先给大家介绍一下主层的设计,第二层平面图:做到空间的合理利用,3个卧室均没有设计独立卫生间,业主不喜欢卧室做卫生间,不过,卫生间位置都还挺方便的。客厅和餐厅相对来说面积比较大,2个阳台家一个厨房,在空出一个小的角落做一个楼梯口,是一个相当合理的设计。
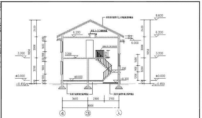
一个侧面图:楼梯间正可以把一楼、二楼链接起来。
这是一个整个的平面布局,第一层比较简单一些主要是需要设计一个玄关和两件卧室,一件卧室提供给老人住,另一间是书房。两层农村别墅房,大约就成型了。
本文内容来源于网络,如有侵权请联系删除,谢谢!
推荐阅读
- 建房子|面宽11米, 进深16.5米的农村三层别墅, 前后有花院还带车库, 完美!
- 别墅|参观亲戚上海的豪宅,别墅硬是住成农村房,真是糟蹋了好房子
- 购房置业|今年起,农村老家的老房子,统统按照“新规”处理,子女提前知晓
- 修建|精选10套三层户型图纸,占地面积均不足百平,尤其适合新农村修建
- 上海市|2022年农村人要“享福了”?实行按户补贴,跟村民们的房子有关
- 洗衣房|这三款农村四合院设计图让不少城里人羡慕,父母看了也欢喜
- 购房置业|农村建新房就选这套四层别墅,占地100多平,8间卧室人人都有地睡
- 别墅|土豪农村盖大别墅,人人羡慕,如今却成为全村人眼中的大笑料
- 别墅|买不起别墅,买了一楼带30㎡院子的房子,入住两年多,后悔了吗?
- 贵州|利落挺括,12×11米现代二层别墅,4卧2厅好格局开启全新生活
