养老房|万大哥花100万在老家给父母盖栋养老房仿四合院,大家觉得值吗?
古话说“养儿防老”,江西万大哥花费近100万回老家给父母盖房,全村人都羡慕!
万大哥说小时候父母为了养七个孩子吃了很多苦,家里生活拮据,省吃俭用地带大孩子。而现在,兄弟姐妹都成家了,并且小日子过得都挺不错,所以为了回报父母,万大哥毅然决定给父母盖栋养老房,总共花费了100万,盖了栋仿四合院的住宅,十分大气美观,咱们来看看效果怎么样吧!
【 养老房|万大哥花100万在老家给父母盖栋养老房仿四合院,大家觉得值吗?】
外观效果图:
万大哥家这栋住宅完工后的实景效果非常好看,村里人都说很少看到有人盖这样的房子,大家盖的大部分是欧式的,像这样的仿四合院的房子很少见,就像古代的房子一样,气派十足。
这栋住宅以白色,墨蓝色为主,尤其水墨画一般,窗边的设计感十足,飞檐峭壁,让房子更加活泼生动不死板,咱们再来看看室内设计情况!
一层:
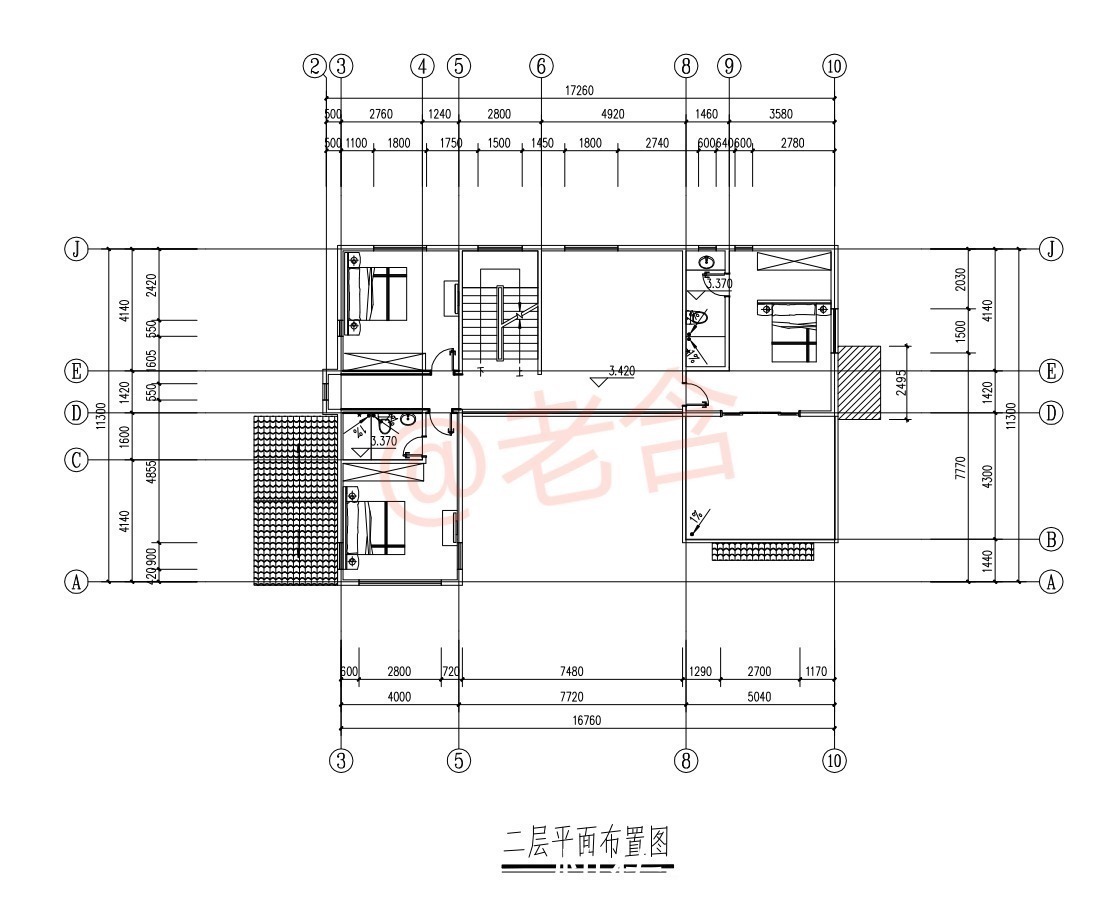
二层:
三层:
万大哥说新房盖好了之后,父母都非常高兴,总算苦尽甘来,儿女家庭美满,老人身体健康,这就是一家人最大的幸福,今年过年大家回去了,再也不用睡大通铺了,享受一下住四合院的感觉!
推荐阅读
- 房产证|婚前财产婚内可以自行处理吗
- 屋主|56㎡小户型老房改造,小而美的设计!
- 当事人|房产商不办按揭怎么办?
- 房价|房地产要变回支柱产业,你知道吗?
- |最高暴涨70万!宁波二手房市场即将回暖?
- 装修|乔迁新房3月以泪洗面!当初的不理智,连犯15个极品装修坑!作孽
- 装修|淋浴房还可以坐着洗澡,一开始很不理解,装修后才发现太实用了!
- 中间商|出租房屋可以不用中介,打造自助门店,同样收租金
- 对象|廉租房和公租房的有什么区别?
- 贷款|5月起,“2道铁令”,今后这1种买房方式再也行不通了
