舒适|参观邻居家小一居,进门就被餐厅给迷住了,功能超全规划棒,羡慕
参观邻居家小一居,进门就被餐厅给迷住了,功能超全规划棒,羡慕!分享过很多小户型装修案例,而最让我心动的还是邻居家的规划设计,房子不大却做到空间极致利用,每寸面积都不敢浪费,尤其进门出看到的餐厅设计让我眼前一亮,折叠餐桌太实用了,很值得小户型家庭借鉴!邻居家是一套不足60平米的小一居户型,在这不大的空间内双人书房、衣帽间、干湿分离卫浴等一样不少,简约风设计清新舒适又宽敞,温馨的小家太让人羡慕了,赶快给大家晒晒!
玄关/餐厅从邻居家进来,左侧靠墙定做了一个顶天立地的白色玄关鞋柜,中间镂空区增加隐形光源,方便放小饰品和随手小物品,旁边放一个简约式衣帽架和鞋架,整体组合空间占用不大却储物功能强大,入户衣帽鞋子等收纳不在话下,简洁时尚又有颜值。进门正对面是餐厅的位置,墙面上安装一个实木折叠式小吧台,搭配两把黑色高脚吧椅,这里就是邻居夫妻平时用餐的餐桌,顶部小吊灯柔和灯光映衬下,简单却舒适温馨。
吧台二孩吧椅都可以折叠,用餐后收起,让过道通畅不拥挤。
厨房
餐厅对面是开放式厨房的位置,规划了L字型布局的白色整体橱柜,搭配原木色防火板台面、地面和白墙小方砖墙面,整洁舒适清新,并嵌入洗衣机、微波炉等电器,让空间利用率更高,使用更便利。
客厅在里侧的位置,白墙电视背景墙上挂一台宽大的电视,下面是简约式高脚实木电视柜,与相同材质的两个交叉摆放的纺锤型小茶几、浅灰色布艺沙发组合,时尚大气,端庄得体。淡绿色墙面下放一个实木储物柜,旁边墙面上还安装一个投影幕布,周末想看电影时在家就可以感受影院级视听体验。
客厅靠窗户一侧还规划出一个双人小书房,通长安装一个室内工作台,底部通过抽屉柜做分隔,配上办公电脑和座椅等,小夫妻同时办公或休闲都很舒适实用。
卧室卧室布置的简约清新,只摆放一张舒适的大床和两侧床头柜,通透宽敞明亮。卧室连接的阳台打通,规划为洗衣晾晒区,方便平时洗衣和晾晒衣物。
衣帽间卧室还为女主人打造出一个独立的U型步入式衣帽间,实现间利用的最大化,完美的收纳区划分组合设计让其各类衣物、包包和鞋子等都能轻松自如地找到合适位置,太能装了!
卫生间卫生间在进门右侧的位置,洗手台外移做了干湿分离设计,让时尚紧凑的卫浴空间更舒适整洁方便。
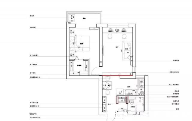
平面布置图看完邻居家的小一居装修设计,完美的空间规划和超强的功能布局,是不是很值得小户型家庭借鉴呢?
推荐阅读
- 施工者|不管家多大,装修时做好这12处细节,美观与舒适并存,幸福感提升
- 文商旅|碧桂园文商旅长租公寓持续发展,为城市青年带来更舒适居住体验
- 客厅|参观向华强和陈岚的豪宅,房子层高太矮了,住着不压抑吗
- 卫生间|129平现代美式三居室,打造出一个舒适又温馨的美式家
- 收纳|去邻居家参观才知道,卫生间不装柜子这样设计,防潮耐脏好清洁
- 小房间|参观140㎡大婚房,朋友都夸餐边柜有档次,我却更喜欢主卧的飘窗
- 别墅|参观亲戚上海的豪宅,别墅硬是住成农村房,真是糟蹋了好房子
- 鞋柜|我家无玄关的玄关设计超赞!左邻右舍来参观,看完都要回家照着装
- 购房置业|夫妻俩大胆改造老房,坚持把3房改为1房,过于舒适了
- 购房置业|25万买来的房子,专门用来存放骨灰盒,邻居发现要退房,合理吗
