荷尔德林|86平现代简约风二居室,客厅打破常规的布局设计时尚
这是一组86平现代简约风格小户型装修,荷尔德林说:“人,诗意地栖居在大地上。”一套房子虽然简单刷白也能住,但生活是自己的,要讲究,不将就。设计的出发点是感受,回归的必然是生活。本案例从始至终秉持舒适的生活理念,打造业主理想的居家生活。客户夫妇都不喜欢原始的客厅布局,家里也没有看电视的需求,通过跟设计师沟通,有一点打破常规的布局设计。
【 荷尔德林|86平现代简约风二居室,客厅打破常规的布局设计时尚】客厅是一个家的中心,也是一家人活动最密集的场所,因此客厅装修不光要光鲜亮丽,还要满足日常的生活需求。
原始的客厅空间,被布成餐厅。利用这个空间做了一整排的储物空间。
客厅一角,金属色的吊灯搭配白色的角几,精致了整个空间,展示了生活的品质
卧室需要打造一个使人感到舒适的室内环境,因此我们在装修卧室的时候,应尽量避免过于杂乱的色彩设计。一般来说,在卧室的装修中不适宜采用三种以上的色彩,因为过多的装修色彩容易使人产生浮躁的心理情绪,不利于我们的睡眠。
主卧空间不是特别大,设计师在床旁边做了梳妆台隔板处理,非常实用。
主卧室延续了客厅米色的色调,非常柔和,安静。带给了人温馨之感。
卫生间的面积一般不是很大,然而在进行装修的时候,卫生间却是非常麻烦的一个空间,不仅需要做好防水、防潮,还要做好电路等方面的设计,这些都关系到安全问题,丝毫不能马虎。除了这些基本的装修要求,卫生间应尽量选择淡雅清新的色彩,例如白色、蓝色等。
卫生间在原始的基础上占用了一点公共面积。色调也很柔和,视觉很舒服。
生活中一定离不开餐桌的选择,餐桌在家庭生活中也起着很重要的作用。餐桌存在于我们的生活中,家中有老人小孩的话可以采用圆桌,因为它不是有角的,可以避免我们磕碰到。
空间中餐桌精致美观,别致的挂画,充满材质感的灯饰,用简美来诉说主人对生活的美好追求。
餐厅小巧而精致,追求功能和形式的完美统一。做了简单的背景墙设计。
根据业主的需求,设计师将小次卧设计成一个多功能房间,平时可以做书房,沙发也可以折叠。
厨房是我们每天煮饭炒菜时都需要使用到的区域,它的使用频率高,所以装修一定要重视,厨房的电路单独走一路,冰箱不管在不在厨房,一定要单独走线,这样如果有长期外出时,可以单独留下冰箱电源,其他全断,更加安全。
厨房选用白色整体橱柜搭配黑色的台面,干净利落。旁边做了隔板和餐椅布局,非常实用。
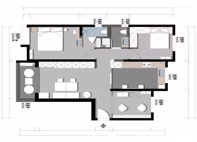
【户型图】本案例格局是三室一厅一厨一卫一阳台,空间整体方正,各项功能配置齐全。
推荐阅读
- 现代风|168㎡现代风,带着浓郁的归属感与愉悦感
- 饱和度|173㎡轻奢新中式,古典和现代的碰撞,唯美浪漫!
- 背景墙|97㎡现代风,以时尚打造空间,以新颖突出特点
- 卫生间|129平现代美式三居室,打造出一个舒适又温馨的美式家
- 三居室|118平现代风三居室,一个简单而纯粹还原生活色彩的家
- 郑州|买房月供曝光!郑州最新平均工资8694元,撑得起房贷么?
- 石家庄|144平的面积,无人值守棋牌室,这是如何做到的?
- 简单感|现实的平衡取舍,才是生活之道!143平现代风格设计欣赏!
- 她家148平米,进门就被玄关迷住,不做吊顶跟背景墙,阳台超漂亮
- 修建|精选10套三层户型图纸,占地面积均不足百平,尤其适合新农村修建
