墙地砖|50平现代风二居室,设计师侧重生活,以简约的手法勾勒空间
装修想要不留遗憾,就得多参考别人的案例,扬长避短。今天小编给大家推荐一套设计特别成功的案例,室内面积为50平米,户型为二居室,设计风格为现代。接下来,我们一起看看这套房子是怎么设计的!
客厅的装修很考验设计者的功底,现代风格虽然并不传统,但是也是比较有特点的装修了,区域处理的不好就很容易让装修变得本末倒置,分不清室内的重点。这个客厅的设计非常成功,将每一个角落都运用得合理,而且非常实用。
入门玄关区域置入了一个温润的木盒子,进门区域的玄关与内部空间形成了鲜明的对比
客厅的设计围绕生活展开,地面采用实木地板与深灰色砖结合,接近生活的朴质营造家庭氛围
卧室是除了客厅以外咱们在家中呆的时间最长的地方了,而且卧室又是一个休息并且相对来说比较私密的空间。所以装修的时候不用太繁琐,也无需太多的装饰。床可以选择宽大舒适的,门和吊顶可以选择质量好一点隔音效果强一点的。
主卧以浅灰和白色为基调,自然清新,跳跃而复古的黄色床靠背,没有多余的繁复造型。纯白色的床品搭配表达温婉闲适的现代都市生活质感,
设计师侧重生活,以简约的手法勾勒空间,没有繁冗多余的色调和修饰,简单大方。格局上更讲究人性化与思维化,呈现出一种规则美。
卫生间地面装饰应符合四个方面的要求:第一,要有较好的防水性;第二,要有较好的排水性;第三,要有较好的防滑性;第四,还要整洁、美观。卫生间装饰材料较多采用墙地砖、PVC或铝制扣板吊顶。应先应把握住整体空间的色调,再考虑选用什么花样的墙地砖及天花吊顶材料。
在卫生间空间功能分布上,把洗手台外置,利用置顶的黑色透明玻璃将厨房洗菜盆与洗手盆隔开,形成两块不同区域,节省空间之余也互不干扰。
【 墙地砖|50平现代风二居室,设计师侧重生活,以简约的手法勾勒空间】干湿分离把空间合理的利用起来互不干扰,通透大方
餐厅设计在家庭装修中变得越来越重要,能有一间温馨舒适的餐厅,会使用餐变得更加美好。细想,坐在装修一新的温暖空间,与家人同享美食,该是多么细腻享受的贴心时刻。
餐厅作为厨房与客厅的连接,在色调和材料的使用上,保持了空间的连贯性,同时,吊灯与餐椅恰到好处的相呼应,变化中不失统一。
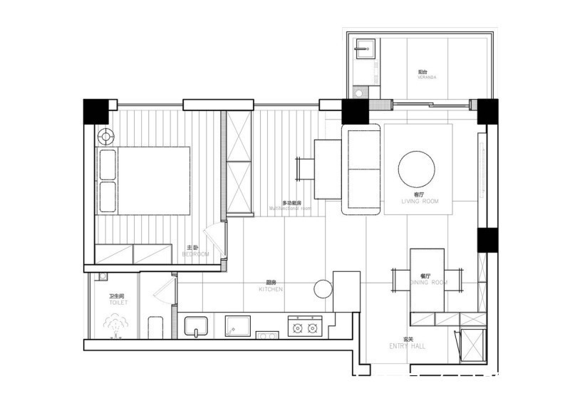
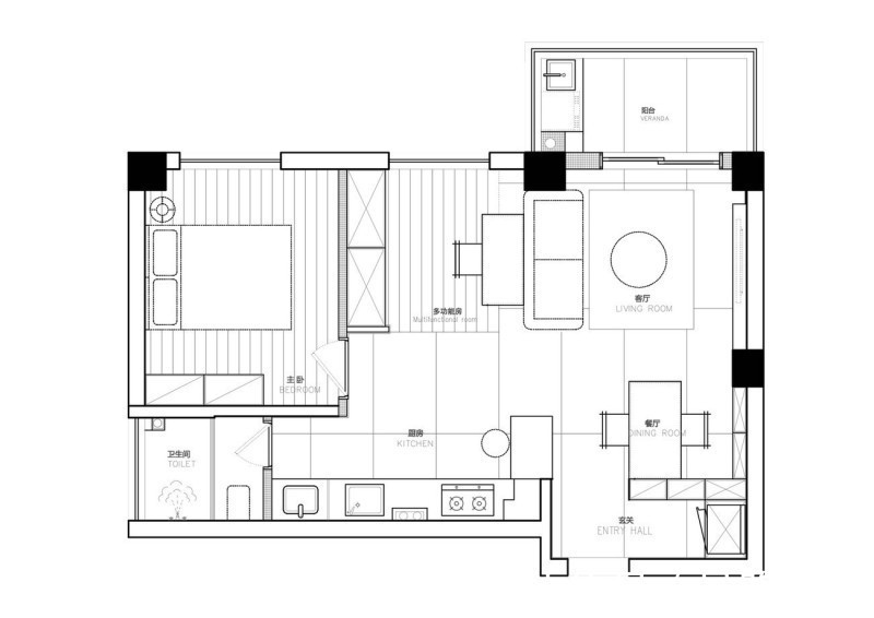
【户型图】户型主要是单面采光,设计师将公共区域打开,做成LDK式全开放空间,一点都没有浪费穿过窗户的阳光,将卫生间与厨房的位置进行了调整
关于家中现代风格的50平米的二居室房屋装修设计,小编就为大家详细的介绍到这里了,如果您也正在为家里的装修问题困扰,希望小编分享的这套案例能为您带去帮助,这些装修小窍门一定能帮助你装好自己的房子。
推荐阅读
- 现代风|168㎡现代风,带着浓郁的归属感与愉悦感
- 饱和度|173㎡轻奢新中式,古典和现代的碰撞,唯美浪漫!
- 背景墙|97㎡现代风,以时尚打造空间,以新颖突出特点
- 卫生间|129平现代美式三居室,打造出一个舒适又温馨的美式家
- 三居室|118平现代风三居室,一个简单而纯粹还原生活色彩的家
- 郑州|买房月供曝光!郑州最新平均工资8694元,撑得起房贷么?
- 石家庄|144平的面积,无人值守棋牌室,这是如何做到的?
- 简单感|现实的平衡取舍,才是生活之道!143平现代风格设计欣赏!
- 她家148平米,进门就被玄关迷住,不做吊顶跟背景墙,阳台超漂亮
- 修建|精选10套三层户型图纸,占地面积均不足百平,尤其适合新农村修建
