主卧室|夫妻两装修第二套房,尽量从简摒弃繁杂,全屋清爽大方看着就舒服
今天跟大家来分享一对夫妻装修的第二套房案例,他们总结了第一次的装修经验,第二次装修,他们两个选择尽量从简,摒弃繁杂,室内用了纯现代简约风格,轻装修重装饰,出来的效果落落大方,整体配色清爽怡人,看着就很舒服。
▲
房子结构虽然合理,但客餐厅的采光不太理想,这是硬伤。将厨房的面积扩大占用卧室十几公分,这样厨房功能布局更加合理。下面跟随我一起来看看他们是如何装修第二套房的。 (图源:yiyun78)
▲原户型
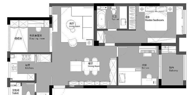
▲平面布局
室内全景
推门进入客厅,给人的感觉就很清爽。客厅两面墙用了牛油果绿色,没办法,作为去年夏天最火的颜色,牛油果绿确实好美,它有着温柔的质感,将室内氛围变得落落大方而且清爽怡人。来到客厅,没有感觉到采光暗吧。原来他们夫妻两人将电视背景墙去掉了一大块,也就是次卧室的墙体。除了预留放电视区域,其它墙面采用了玻璃推拉门,黑色窄框推拉门质感十足,立即解决了客厅的光线问题。
▲客厅

▲客餐厅全景
客厅里硬装上没有多做造型,大平顶上两条黑缝,让空间显得非常简约。但在软装搭配上两人没有少下功夫,黑色皮质沙发上配条黑白格子相间的搭巾,简约感十足。在墙面上的装饰挂画,也流露出时尚美,我最喜欢的竟然是沙发背景墙上这个大挂钟,简单的造型就很有质感,将室内的档次给提升。
▲客厅
镜头再转向餐厅区域,整体的配色简约大方。利用墙面做了两大排的收纳柜,要不说第二次装修有经验,知道收纳的重要性。衣柜的造型简单大方,双色拼接,撞出强大的火花,这个区域真的是太美了,连地面的鱼骨木地板也显得更加的有质感。餐桌边还增加了一个黑白两色的中岛台,可别小看这个中岛台,在这里的装饰效果也很强,还很实用,方便存取东西。等我有了第二套房子,装修时,我也要加个这样中岛台。
▲餐厅
拉近餐桌镜头,餐桌椅造型超现代简约,特别是餐椅,线条流畅,很吸晴,有木有。
▲餐桌
餐厅正对的便是厨房,厨房里的配色也是干净清爽,白色墙砖地砖,配上白色橱柜门,让原本不大的厨房变得大了起来。顶上没有采用传统的集成吊顶,用了防水式石膏板,平顶更加的简约大气。
▲厨房
【 主卧室|夫妻两装修第二套房,尽量从简摒弃繁杂,全屋清爽大方看着就舒服】再来看看他们家的卧室
推荐阅读
- 屋主|56㎡小户型老房改造,小而美的设计!
- 地板|160㎡四居室,玄关比我家卧室都大,这才是真正的低调奢华有内涵
- 床头柜|95后姑娘的“穷装”卧室火了,环保又精致,软装的力量真强大
- 小房间|参观140㎡大婚房,朋友都夸餐边柜有档次,我却更喜欢主卧的飘窗
- 买房|二手房指导价意义非凡,主要有这4点,想购房的来看看
- 宋智雅|不只穿假货!宋智雅豪宅全是租的,公主风奢华住所都是TA在出钱供
- |龙吟师傅教你在卧室找到自己的桃花位
- 垃圾桶|家庭主妇:厨房地柜不要全打满,空一格更实用!后悔我家装太早了
- |73㎡复古风两居室,年轻夫妻的高品质生活
- 银行|如果出现大规模的房贷断供现象,银行和业主将两败俱伤
