实用|农村最漂亮的三层别墅图片,大气又实用,第三套最洋气
许多农村出去打工的人,辛苦拼搏中午攒下了一定的积蓄,也在城市里安了家立了业,但是他们到了一定的年纪,总是想着恬静舒适的乡村生活。如今农村发展的越来越好,空气清新、环境优美,所以越来越多的人都选择再回村建一栋房子。今天给大家推荐三款农村三层别墅图片,看看有没有适合你的建房想法。
别墅图纸一:欧式大气三层小别墅设计图纸图纸介绍:欧式大气三层小别墅设计图纸,外观、造型大方,色彩明快,整体平面布局紧凑、功能分区合理,房间尺度设计适宜,空间利用率高,富有时代气息。
别墅效果图展示
占地面积:11.6m*13.2m,一层占地138平方米左右;
建筑层高:三层;
【 实用|农村最漂亮的三层别墅图片,大气又实用,第三套最洋气】建筑高度:12.5米(含屋顶);
设计功能:
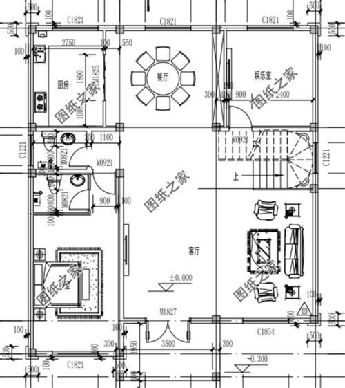
一 层:客厅、厨房、餐厅、卧室(带卫生间)、娱乐室、卫生间;
二 层:休息区、卧室(带卫生间)×3、阳台;
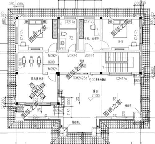
三 层:休闲区、卧室(带卫生间)x3、大露台;
别墅一层户型图展示
别墅二层户型图展示
别墅三层户型图展示
别墅图纸二:高端豪华二层别墅住宅设计方案图图纸介绍:本户型为高端豪华三层别墅住宅设计方案图,欧式外观风格,外观设计的非常高端、大气,如果是农村自建,不管是外观还是格局都会令人羡慕。
别墅效果图展示
占地面积:13.74m*12.67m,170平方米左右;
建筑层高:三层;
建筑高度:12.10米(含屋顶);
设计功能:
一层户型:大厅、客厅、餐厅、厨房、卧室x2、卫生间、储藏间;
二层户型:客厅、主卧(带书房、卫生间、衣帽间)、卧室(带衣帽间)、卧室、卫生间、阳台;
三层户型:卧室(带衣帽间)、卧室、娱乐健身房、卫生间、大露台;
别墅一层户型图展示
别墅二层户型图展示
别墅三层户型图展示
别墅图纸三:140平三层别墅房屋设计图图纸介绍:本户型为140平三层别墅房屋设计图,含外观效果图,外观现代时尚,户型经典实用,三层施工时可以根据需求自行隔断,满足更多客户需求。
别墅效果图展示
占地面积:13.0m*11.0m,140平方米左右;
建筑层高:三层;
建筑高度:11.41米(含屋顶);
设计功能:
一 层:客厅、厨房、餐厅、卫生间、卧室x2;
二 层:客厅(可以去掉隔断)、卧室x4、棋牌室、卫生间、阳台;
三 层:根据需求自行隔断;
推荐阅读
- 装修|淋浴房还可以坐着洗澡,一开始很不理解,装修后才发现太实用了!
- 灰尘|家中阳台不要装推拉门了,装这种更实用个性,不得不感叹太聪明了
- 餐边柜要做成什么样子才实用又好看看看这几款餐边柜设计
- 建房子|面宽11米, 进深16.5米的农村三层别墅, 前后有花院还带车库, 完美!
- 别墅|参观亲戚上海的豪宅,别墅硬是住成农村房,真是糟蹋了好房子
- 薄荷蓝|走进她家,才知什么叫美观与实用并存,全屋温暖又清爽,太舒服了
- 购房置业|今年起,农村老家的老房子,统统按照“新规”处理,子女提前知晓
- 修建|精选10套三层户型图纸,占地面积均不足百平,尤其适合新农村修建
- 上海市|2022年农村人要“享福了”?实行按户补贴,跟村民们的房子有关
- 洗衣房|这三款农村四合院设计图让不少城里人羡慕,父母看了也欢喜
