x2|最新农村三层楼房外观图,小编精心挑选了3款,不看你会后悔的
许多农村出来城市打工的年轻人,都努力赚钱,想在城市扎根、安家生活,也依旧会想着在农村老家建一栋自己的别墅,不仅是给老家的父母提供舒适的居住环境,也圆了少年时期的别墅梦。今天小编给大家分享了几款农村三层楼房外观图片,带平面图,非常适合在农村盖,喜欢的小伙伴快收藏吧。
款式一:占地70平米的三层独栋别墅设计图,小户型自建房屋效果图
占地70平方米的三层独栋设计图,小户型别墅效果图,外观造型十分有特色,不对称拼凑设计,时尚感十足,以欧式风格为主,掺了些许田园元素,让整体更有设计感。
别墅效果图展示
占地面积:8.1m*10.5m,73平方米左右;
建筑层高:三层;
建筑高度:10米(含屋顶);
【 x2|最新农村三层楼房外观图,小编精心挑选了3款,不看你会后悔的】
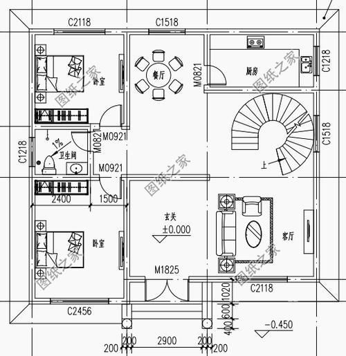
别墅一层户型图展示
别墅二层户型图展示
别墅三层户型图展示
设计功能:
一层户型:客厅、杂物间、餐厅、厨房、卧室、卫生间;
二层户型:书房、卧室x2、卫生间、露台;
三层户型:卫生间、露台;
款式二:农村三层楼房设计图
农村三层楼房设计图,占地113平米,小平米大格局,阳光可以晒到每一个角落,还有大大的院子,养养花,种种菜。
别墅效果图展示
占地面积:10.3m*11.0m,一层占地113平方米左右;
建筑层高:三层;
建筑高度:12.3米(含屋顶);
别墅一层户型图展示
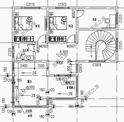
别墅二层户型图展示
别墅三层户型图展示
设计功能:
一 层:客厅、厨房、餐厅、卧室×2、卫生间;
二 层:起居室、卧室x3、书房、卫生间、露台;
三 层:起居室、卧室(带卫生间、衣帽间)、大露台;
款式三:农村三层小别墅设计图片
本户型为农村双露台小别墅设计图,双露台设计满足主人各种需求,室内布局合理,功能齐全,贴合农村居住习惯,简单、实用,蓝色屋顶加上宽阔的大玻璃格外显眼,农村自建实用,又有面子。
别墅效果图展示
占地面积:11.65m*11.20m,130平方米左右;
建筑层高:三层;
建筑高度:12.34米(含屋顶);
别墅一层户型图展示
别墅二层户型图展示
别墅三层户型图展示
设计功能:
一层户型设计:客厅、餐厅、厨房、卫生间、卧室x2;
二层户型设计:客厅、书房、主卧、卧室x2、卫生间、露台;
推荐阅读
- 郑州|买房月供曝光!郑州最新平均工资8694元,撑得起房贷么?
- 建房子|面宽11米, 进深16.5米的农村三层别墅, 前后有花院还带车库, 完美!
- 别墅|参观亲戚上海的豪宅,别墅硬是住成农村房,真是糟蹋了好房子
- 购房置业|今年起,农村老家的老房子,统统按照“新规”处理,子女提前知晓
- 修建|精选10套三层户型图纸,占地面积均不足百平,尤其适合新农村修建
- 上海市|2022年农村人要“享福了”?实行按户补贴,跟村民们的房子有关
- 洗衣房|这三款农村四合院设计图让不少城里人羡慕,父母看了也欢喜
- 征地补偿|征地补偿有调整!长沙最新征地补偿标准公布
- 购房置业|农村建新房就选这套四层别墅,占地100多平,8间卧室人人都有地睡
- 房价|2楼盘公布入围分!宝山最新入围分75.72
