欧式|谁说中式的比不上欧式的,最美的二层中式小院,17万造价
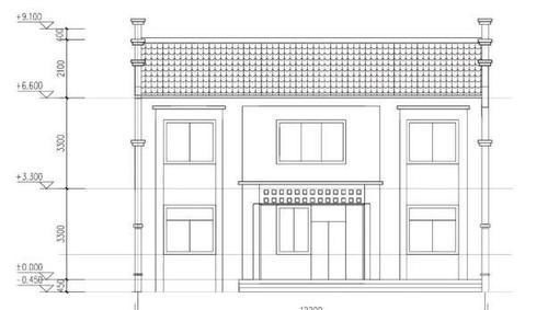
谁说中式的比不上欧式的,看过这款别墅,你一定不会这么认为了。古色古香的中式风格,马头墙,白墙黛瓦,透着浓浓的古典韵味,美的让人沉醉。围上院子,载上几株竹子,邀上好友,在院子里品茶,赏竹,听雪,看梅,最美的生活不过如此,比欧式的不知道美多少倍。


这款户型所需的占地面积不大,基本适合所有的农村建房要求,开间12.2米,院落进深17.4米,建筑进深8.2米,一层建筑面积91.1平方米,二层建筑面积91.1平方米,户型主体造价17万。


平面布局合理实用,空间利用率非常高,一层有三间卧室,客厅、厨房、餐厅和卫生间,可以概据家庭的需求调整,书房改为厨房,厨房用为餐厅,空间大了,更舒适。二层有三室一厅一卫和储藏间。
推荐阅读
- 饱和度|173㎡轻奢新中式,古典和现代的碰撞,唯美浪漫!
- 灵魂深处|全屋定制案例|儒雅新中式,展现灵魂深处的东方情怀
- |中式庭院,这才是最让我们心动的院子
- 传统|189平现移步换景,以景造景打造富有传统韵味的新中式设计
- 搬家公司|乡住免费图纸土建造价参考88万面宽15.5m 进深14.4m 三层新中式别墅
- 造价|乡住土建造价参考81.2万,面宽13.4m×进深11.9m 三层新中式风格别墅
- 案例|玩转庭院:11个“中式庭院”设计案例,院子这样造几十年不落伍
- 装修风|被亲戚嘲讽的中式装修风,装修完工后,亲戚:可以常去你家看看么
- 农村|农村盖小院,我只服这5套中式别墅,最低20万你盖不
- 大宅|精选15套中式大宅,农村就该建这样的房子,太美了
