茱莉娅|52岁阿姨的新居,全屋装修“一尘不染”的奢华,让人觉得很是羡慕
作者:小李说装修漂亮的东西看久了不见得耐看,简练干净的空间反而与人的互动是最舒服的。现在市面上越来越流行以简约的主题为架构,在简约中体现出装修的精致,装修的品味,和装修的价值所在。本案介绍的是一套260平米的复式楼,上面所描述的正是业主喜欢的,也是本案设计的主题-现代简约风格。用简约的手法,用不复杂的工艺,精美的软装进行搭配,呈现出一股让人喜爱的装修风出来。
设计概括:装修风格:现代简约风格实际面积:260㎡空间格局:二层复式设计师:茱莉娅设计师项目位置:韶关市·左岸府小区装修造价:半包价格45.28W01户型图

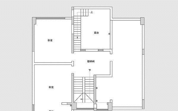
虽然只有两张图,但是这是一个三层的复式楼,因为从二楼上面还有一个露台,空间是错开的。这个户型在复式楼格局里面算很好的了,整体中规中矩,每个空间也较为方正。在大小面积分配上也比较均衡,没有有些空间分配面积多一些,有些空间面积分配小一些的情况,如果要说有,勉强也只能说厨房空间了,对比这么大面积的户型来说算小了一点。02平面图

房子面积大,又只有五口之家,所以整体格局规划得很舒服,每个空间都能满足大气、宽敞、舒适的要求。为了解决厨房小的问题,取消了餐厅旁边的阳台空间,把它改成了西厨,这样就增加了橱柜台面。一楼设计规划了三间卧室,有一间老人房,留有一间客房,另外就是茶室兼书房了;二楼保留三间卧室,一个主卧室和小孩房,还有一个多功能房间。03玄关


玄关只在左右两边各做了一组柜子,靠窗做矮柜,实墙就做得到顶柜子;打开房门引入眼帘的是前面“一片”开阔的空间,玄关是家里面连接室内外的空间,也是给客人的第一印象,它的装修好坏,也直接性或间接性的决定了整体装修风格的好坏。地面通铺的瓷砖,把玄关、客厅、餐厅和过道连成了一体,视觉效果更好了。04客厅


客厅空间并不大,受玄关和过道的影响,电视墙和沙发墙都显得不完整,所以也就凸显不出大气的感觉了。不过好在我们运用了比较简洁奢华的装饰“语言”,来尽量地保持这个复式楼客厅的效果,完整它敞亮和宽敞的舒适氛围。05餐厅


餐厅和厨房连成一片,所以采光效果很好,也比较宽敞和舒适,酒柜和冰箱浑然一体,刚好把冰箱嵌入进去,让酒柜显得整体;酒柜实现了玻璃柜门加实木柜门的设计,在保证精致感的同时,让它也能保证储物的功能。06西厨
推荐阅读
- 逃税|薇娅逃税被罚13.41亿元!购房者最好别触碰这5种逃税行为,切记
- 上城区|直播电商大本营:「薇娅们」的兴衰与杭州上城楼市起落
- 薇娅|2次卖房填窟窿,一年工作330天的她,还有再回来的希望吗?
- 薇娅|薇娅偷税被罚,什么样的个人收入需要缴税,你知道吗?
- 住房公积金|薇娅的13.41亿是什么概念?
- 设计师|房企要卖多少房才能凑齐薇娅被罚的13.41亿?
- 绿地控股|房企要卖多少房才能凑齐薇娅被罚的13.41亿?
- 公积金贷款|薇娅逃税被罚13.41亿元!购房者最好别触碰这5种逃税行为,切记!
- 公租房|从42岁等到52岁,她获批贵阳公租房10年为何迟迟领不到房?
- 繁星点点|52岁阿姨的新居,全屋装修“一尘不染”的奢华,让人觉得很是羡慕
