造价|3套秀美大气的二层农村自建房别墅,其中第2套盖的人“最多”
金窝银窝不如自己的小窝,城市里的房子再好,不如自己的故乡好!
回老家盖房是当下越来越多朋友们的选择,当你在外打拼多年后,你回过头会发现还是自己的故乡好!这里是你熟悉的土地,有你熟悉的人,有你熟悉的味道。倒不是说家里的房子要多大,幸福指数就会有多高,而是全家人整整齐齐在一起就是最幸福的事情。接下来给大家带来3套适合农村生活习惯的自建房别墅户型图纸:
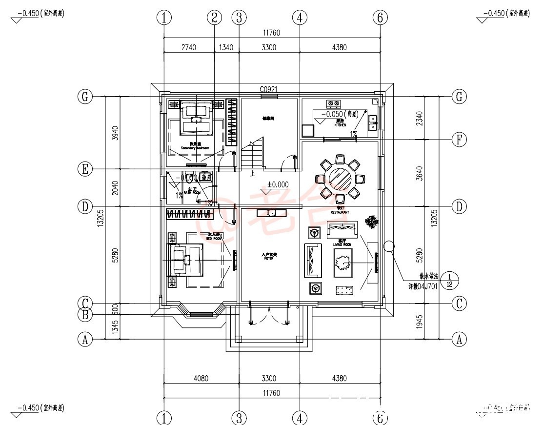
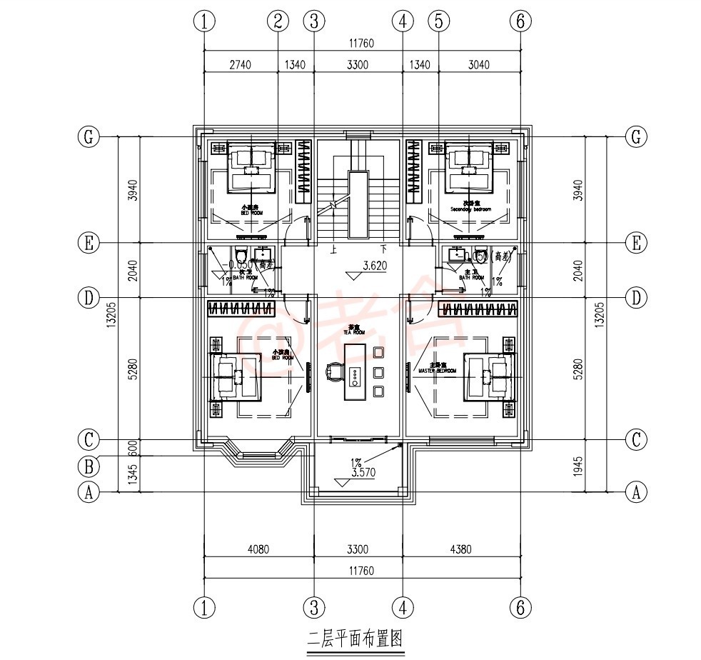
第1套:二层新中式住宅+户外露台,造价预算15万
开间进深:11*9米
占地面积:90平
结构类型:砖混结构
参考造价:15W
一层:
二层:
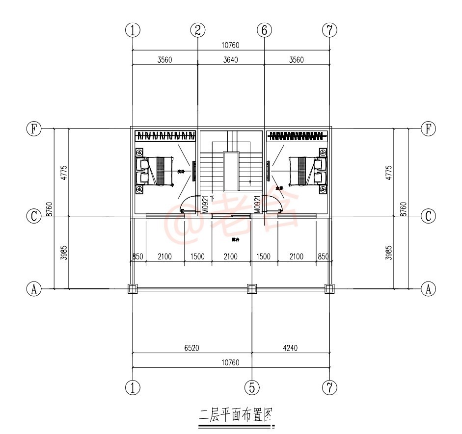
第2套:二层田园美式洋房+老虎窗,造价预算15万
开间进深:12*11.6米
占地面积:130平
结构类型:砖混结构
参考造价:15万
一层:
二层:
第3套:二层现代风别墅+私人车库,造价预算15万
开间进深:11*9.2米
占地面积:102平
结构类型:砖混结构
参考造价:15万
一层:
二层:
【 造价|3套秀美大气的二层农村自建房别墅,其中第2套盖的人“最多”】这3套农村自建房的性价比都比较高,适合大部分家庭可以盖,后续会根据不同情况持续分享不同的别墅设计图纸!
建房小常识:
1、什么是开间和进深?
答:开间:从大门入口看,左右距离尺寸为开间。进深:是房屋的的前后距离即深度。简单来说就是长和宽。
2、占地面积和建筑面积分别是什么?有什么区别?
答:占地面积为第一层建筑物所占面积,建筑面积指所有层面建筑外墙包围的面积和。(建筑面积不包括不带屋顶的露台)
推荐阅读
- 疯狂|1月20日广州新房网签210套,增城以43套再次蝉联榜首!势头强劲!
- 施工|面宽均为12米的两栋自建房,简单施工易,造价25万上下
- 购房置业|豪横!熊磊手握3套房,仍不知足,疑购入新房,网友:楷楷的婚房
- 搬家公司|乡住免费图纸土建造价参考88万面宽15.5m 进深14.4m 三层新中式别墅
- 造价|乡住土建造价参考81.2万,面宽13.4m×进深11.9m 三层新中式风格别墅
- 断房|有人手握3套房却卖不掉,还有157万人选择“断供”,楼市怎么了?
- 防潮|造价预算(土建、安装)容易遗漏99项
- 郑州|163套房屋被查封 购买蓝光天娇城二区要慎重!
- 银川2022年第1批商品住房价格公示,共863套!|一房一价| 住房
- 房地产行业|2022年回农村建房,怎能没有柴火灶?看看这3套图纸,美观又实用
