别墅|超赞这款占地130平三层新中式别墅,豪华至极,村里有钱人都抢着盖
现在农村,漂亮的别墅真是层出不穷,家家户户建别墅,农村真是越来越漂亮了。总有一些户型,能让您一眼就心动,不盖一栋心里总觉得可惜。
今天这款新中式三层别墅,外观极美,配色大方,中式韵味十足。村里有钱人都抢着盖,盖一栋就是享受。
图纸编号:YG1052
开间:12.4米
进深:10.6米
占地面积:131平方米
建筑面积:384平方米
建筑结构:砖混结构
主体造价:65万元
建筑整体采用风格偏现代化的新中式设计手法,造型简洁,线条干练。门厅与二层阳台浑然一体,与三层露台呼应,层层相叠的效果丰富了整体的立面层次。

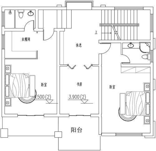
建筑整体采用三开间形式,一层公共空间采用开放式设计,餐厅客厅及堂屋空间未作明确分隔,其中客厅采用挑空设计,设计为一层半的高度;楼梯下方作为公卫使用,充分利用室内的每一寸角落空间。
二层结合一层客厅层高变化,采用局部错层设计,东西两侧分别设置一间卧室,中部开间设置书房,连接南侧的大面积开放式阳台,良好的采光和视野使建筑的景观功能更佳。
三层空间设置两间卧室,中部开间则搭配茶室,闲暇时可品茶静憩,也可与亲友坐下漫谈。此外,设计师还在三层南侧设置开阔的露台空间,丰富建筑的室外活动功能。
相比于墙体装饰的丰富性,立面中窗框造型则简练了很多。细线条的开窗纹理使得建筑的通透感更佳,同时与立面层次起伏配合,强调造型与材质带来的灵动质感。
【 别墅|超赞这款占地130平三层新中式别墅,豪华至极,村里有钱人都抢着盖】建筑前院采用影壁设计保证宅院私密性,同时搭配室外地坪、家具等,创造更多室外休闲的活动区域;后院则完全注重于景观的体验,水景围绕的亭台彰显业主非凡的生活品味。
推荐阅读
- 建房子|面宽11米, 进深16.5米的农村三层别墅, 前后有花院还带车库, 完美!
- 别墅|参观亲戚上海的豪宅,别墅硬是住成农村房,真是糟蹋了好房子
- 鞋柜|我家无玄关的玄关设计超赞!左邻右舍来参观,看完都要回家照着装
- 购房置业|农村建新房就选这套四层别墅,占地100多平,8间卧室人人都有地睡
- 别墅|土豪农村盖大别墅,人人羡慕,如今却成为全村人眼中的大笑料
- 别墅|买不起别墅,买了一楼带30㎡院子的房子,入住两年多,后悔了吗?
- 贵州|利落挺括,12×11米现代二层别墅,4卧2厅好格局开启全新生活
- 北碚|重庆北碚高端别墅群,数量众多依山而建,满目疮痍好比世界末日
- x2|三层现代风格别墅 140平米,清新脱俗,是当下年轻人最喜欢的设计
- 搬家公司|乡住免费图纸土建造价参考88万面宽15.5m 进深14.4m 三层新中式别墅
