承重墙|打通阳台和客厅,100平的房子竟秒杀了200平的大宅!
清新素雅的原木风,对于长期生活在都市中的人们而言,它所营造出的自然休闲、轻松舒适的生活境界,也正是人们所追求的。
质朴的线条,淡淡的色调,现代空间里处处洋溢着的原木香气,它给人带来的何止是温暖的感动,还有一份回归自然的淡泊心境。
三口之家成都有一个110㎡的房子,里面住着幸福的一家三口。父母已经50多了,女儿也已长大成人,为了提高一家人的居住品质,他们邀请了一位设计师,为整个家进行改头换面。
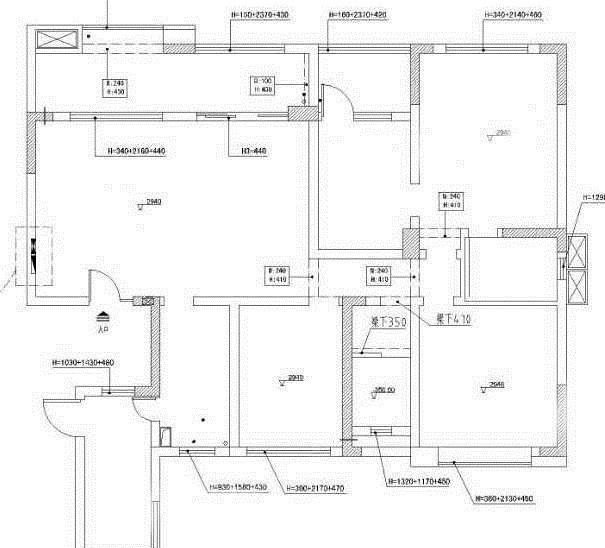
照理说,这个110㎡的户型,在面积上已经足够一家三口享用了,但由于原始户型结构设计的不合理,好好的“大户型”,竟然显得相当局促:内开的入户门,外加3个户外阳台,不但压缩了起居室和餐厨区的空间,而且在层层遮挡之下还影响了通风和采光。
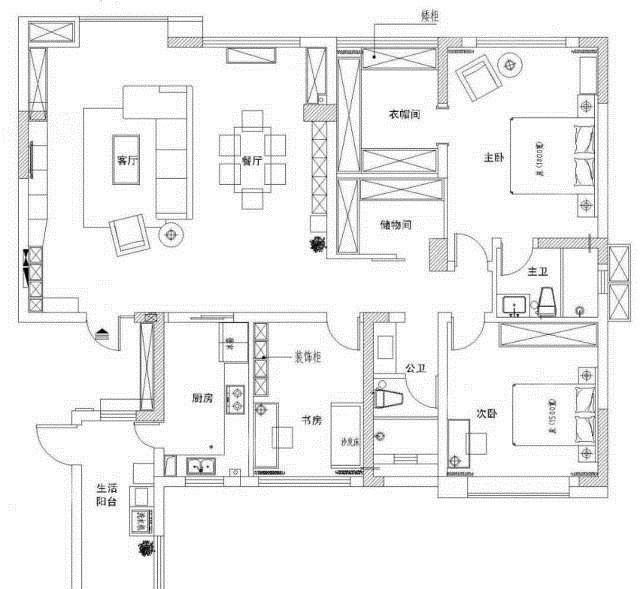
原始户型图从提高一家三口的储物需求出发,设计师把入户门从内开变成了外开,餐厅、客厅区域进行调换,厨房空间变得比原来更大了,与之相邻的便是一个静谧的书房。
改造后户型图整个改造最为亮眼的部分,就是打通后的阳台与客厅融为了一体。这样一来,不但大大拓宽了室内空间,而且在视觉上给人开阔之感。
虽然时下流行的装修风格种类繁多,但随着人们生活节奏的加快,追求简洁利落的现代美学受到了更多的欢迎,像MUJI般原木风的设计,可以让人们从繁忙的工作中暂时解脱出来,回到家里,就能感受别样的自然气息。客厅将户外阳台打通之后,开放式客厅与餐厅融为一体,视野更加宽敞明亮,自然光线也得以毫无保留地洒落进来。
原木框的吸顶灯,钟表,大小茶几,配套桌椅,以及用来过滤光线的百叶窗,全部与地板保持了统一的调性,将原木风进行到底。

电视机区域因为受到承重墙的限制,不能做较大的改动,所以让全封闭柜体和开放式柜体分居两侧,既实用又美观。
这个家的所有木制家具,几乎都是按照尺寸和比例交给厂家定制的,统一的颜色和材质,奠定了整个空间自然、和谐的基调。餐厅注意到餐厅天花板上的吊扇了吗?它其实是一盏灯哦,既能用来照明,又可以通过风扇的微风来流通空气。
餐厅的布置不需要繁琐的装饰,只要简简单单的功能性家具,就能营造出一个温馨舒适的就餐区。
厨房厨房依旧是清新自然的原木风格吊柜和地柜成了整个厨房的重要组成部分,不仅使厨房看上去干净美观,更承载着强大的收纳功能。
冰箱采用了内嵌式设计,基本上与橱柜齐平,为行走距离留出了很大的空间。
推荐阅读
- 背景墙|97㎡现代风,以时尚打造空间,以新颖突出特点
- 装修|空调外机万万不能这样挂墙,若不是师傅提醒,我家都装错了!
- |外墙内保温如何施工?现场示例!萌新必看!
- 她家148平米,进门就被玄关迷住,不做吊顶跟背景墙,阳台超漂亮
- 墙面|过道能''挤''出空间 5种方式帮你充分利用每一寸,档次蹭蹭上涨
- 马桶|把洗手台埋到墙里,卫生间一下变大了很多,美观又实用,好处多多
- 乳胶漆|看她家装修,比样板房还漂亮,电视墙特别实用,值得做参考!晒晒!
- 餐厅|这套新房真有创意,客厅改主卧,电视背景墙后面设吧台!
- 交易|开发商送的大露台,沿墙砌20米长花池,种花种菜,不要还能拆掉!
- 乳胶漆|等买了房,就照他家这么装,全屋不吊顶,不做背景墙,越看越耐看
