户型|一层自建房图纸,最后一款养老房的首选,图纸看完快收藏
现在我们的生活越来越好了,在外打工多多少少也挣下了点钱,有了点小存款,想着回农村老家盖一栋属于自己的好房子,将来老了有个归宿。今天小编分享三款一层自建房图纸,结构简单,造型时尚,造价经济实惠,很适合作为农村养老房居住。这样的好户型在农村不多见,看上了就赶快收藏起来。
款式一:农村一层别墅设计图,占地100平米,外观时尚
图纸介绍:这款一层别墅占地100平左右,外观时尚,室内布局也很实用,造价经济,施工简单,三间卧室够老人家住,偶尔来个客人也有地方住。
占地面积:10.76m*10m,100平方米左右;
建筑层高:一层;
建筑高度:5.98米(含屋顶);
设计功能:
一层户型:神位、客厅、餐厅、厨房、卧室x3、卫生间;



一层别墅设计图
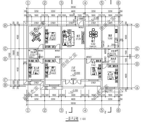
款式二:农村一层自建房设计图,占地210平米左右
图纸介绍:这款乡下建房一层户型占地210平米左右,房子户型方正,门前设计有罗马柱,非常美观。别墅前后四窗通透,便于采阳通风。
占地面积:18.1m*12.1m,210平方米左右;
建筑层高:一层;
建筑高度:6.6米(含屋顶);
设计功能:客厅、餐厅、厨房、卧室×2、老人房×2、卫生间×2、洗衣房、棋牌室;

【 户型|一层自建房图纸,最后一款养老房的首选,图纸看完快收藏】

一层别墅设计图
款式三:一层平房设计图,带院子设计,造价经济
图纸介绍:这款别墅占地144平米左右,户型方正,带院子设计。别墅外观是以灰色为主,搭配蓝色坡屋顶,整体大气沉稳,精致美观,内部布局合理,院子里可以放松休息。
占地面积:11.83m*12.5m,144.819平方米;
建筑层高:一层;
建筑高度:6.741米(含屋顶);
设计功能:
一层户型:客厅、厨房、餐厅、卧室X3、卧室(带卫生间)、储藏室、卫生间;

一层平房设计图
这三款房子是多少人理想的房子,喜欢哪一款千万不要错过。
推荐阅读
- 房产证|婚前财产婚内可以自行处理吗
- 屋主|56㎡小户型老房改造,小而美的设计!
- 中间商|出租房屋可以不用中介,打造自助门店,同样收租金
- 武汉市自然资源和规划局|确定了!白沙洲将新添一所高中
- 施工|面宽均为12米的两栋自建房,简单施工易,造价25万上下
- 小户型|发现丈夫赠人房产 妻子怒讨买房款
- 卫生间|什么才叫好户型?来看看这5个标准,你家房子符不符合?
- 修建|精选10套三层户型图纸,占地面积均不足百平,尤其适合新农村修建
- 住房公积金|什么才叫好户型?来看看这5个标准,你家房子符不符合?
- |龙吟师傅教你在卧室找到自己的桃花位
