占地面积|回农村给父母盖养老房,我只推荐一层户型,舒适比豪华更重要
落叶归根,这是我国自古以来的传统。所以很多朋友即便已经在城里站稳了脚,也会选择回农村给父母盖房养老。但回农村给父母盖养老房,舒适比豪华更重要!给大家推荐3套一层户型,图纸快快收藏好。第1套:庭院+厢房+影壁墙,17×16米一层中式三合院,主体预算40万占地尺寸:17.6m×16.7m占地面积:190㎡建筑面积:190㎡建筑高度:6m建筑情况:设4卧 2厅3卫 1厨 1棋牌室
大红灯笼高高挂,喜气洋洋搬新家!门外是世界,门里是家。中式小院永远是国人心中最理想的住宅。推开院门,首先见到一个影壁墙,然后就是一个内庭院,可以用来养花种草。也可以摆个桌子、弄个凉亭,用来喝茶聊天最适合不过了。东厢房为厨餐空间,并设计了一间棋牌室用来娱乐交友。西厢房为两间小次卧,可以用作客房。主房客厅居中,两侧是房主与老人休息的主卧,带独立卫生间方便家人生活。
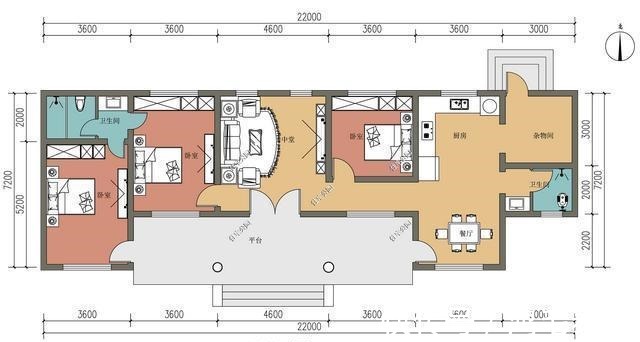
第2套:22×7米中式一层美宅,三间卧室均朝南,舒适布局好养老,主体预算25万占地尺寸:22×7.2m占地面积:174㎡建筑面积:146.1㎡建筑高度:6.65m建筑情况:3室 2卫 1中堂 1厨 1餐厅 1杂物间
住宅外观采用中式风格,经典的白墙灰瓦素雅装潢,大红灯笼高高悬挂,为建筑增添了几分喜庆气息。这样的房子,最适合农村修建。而且室内布局也非常好,卧室均为南向设计,充分保障了居住体验。
第3套:双入户门+多边形采光窗+副房设计,17×9米一层养老美宅,主体预算20万占地尺寸:17.6×9.9m占地面积:179.63㎡(不含副房)建筑面积:179.63㎡(不含副房)建筑高度:3.6m建筑情况:5卧 2厅 2卫 1厨 1仓库
采用蓝色坡屋顶搭配素色真石漆,这套一层别墅外观没有太繁杂的装饰,只以简约为设计准则,进行家居美学的延伸与发展。户型设计更是舒适实用,入户便是接待空间,餐厅客厅一体化设计,面积十分宽敞。一共设计5间卧室,足以满足日常使用需求。并且单独设立了一个副房,可以根据自身需要改成餐厨、车库、储藏间等用途。
这3套图纸都非常适合作为养老房修建。如果是你,你会选择哪一套呢?
推荐阅读
- 房价|房地产要变回支柱产业,你知道吗?
- |最高暴涨70万!宁波二手房市场即将回暖?
- 安置|上城区紫阳街道加速回迁安置 焕新美好家园
- |“最惨购房者”相关话题登热搜榜首,到底是怎么一回事?
- 中海珑悦府|中海珑悦府好不好?置业顾问从项目现场发回新组图
- 融创中国|融创手握1600亿现金,回笼资金超300亿元,孙宏斌有牌可打了?
- 建房子|面宽11米, 进深16.5米的农村三层别墅, 前后有花院还带车库, 完美!
- 别墅|参观亲戚上海的豪宅,别墅硬是住成农村房,真是糟蹋了好房子
- 购房置业|今年起,农村老家的老房子,统统按照“新规”处理,子女提前知晓
- 修建|精选10套三层户型图纸,占地面积均不足百平,尤其适合新农村修建
