氛围感|LDK一体化,凭什么笼络人心?宽敞明亮,提高每1㎡利用率,绝了
如何在有限的空间中,装修出超高的空间使用率呢?今天小编给大家分享的一套拥有两条长跑道的大横厅户型案例,看看女主@Bro.Bean是如何利用LDK与双跑道,装修出大平层既视感的家。
户型分析
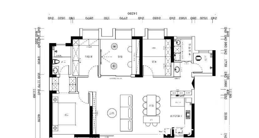
原始户型图
1. 房屋面积110.4㎡;
2. 大横厅户型;
3. 三个房间的门口对着横厅,隐私性不佳;
4. 阳台很大,但是不好利用。
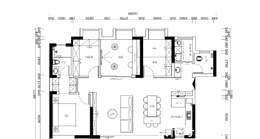
业主需求+设计图
设计图
1. 常住人口有两人+猫咪;
2. 想要开放大厨房;
3. 全屋通透温馨;
4. 一切以实用为主。
LDK客厅+餐厅+厨房
敲掉了客厅与阳台之间5m的推拉门,将两个空间打通,6.8m的阳台进行了封窗,整屋更加宽敞、通透,通铺木地板,脚感舒适,可以降低对楼板的噪声,居室更加安宁,同时木地板纹理自然天成,相对要环保,美观又耐用。
LDK的设计将传统户型中的厨房、客厅和餐厅空间的隔墙拆除,让各个空间融合在一起,没有了隔墙的视觉、行动阻碍,各个空间的通透感和整体性变得更加强烈了。
LDK设计的开放式做法,还可以很好地提高空间的利用率与实用性,让空间高度融合,更加有利解决空间功能分区的不足,让空间的利用率得到很好的提升。

浅色的沙发百搭又耐看,软硬合适,工作一天回到家,瘫躺在上面,整个身心都放松下来,色系相搭配的地毯,提升了客厅颜值,改变家居氛围,瞬间就上升好几个档次,软乎乎的触感,非常温柔,让空间更加温馨。
电视背景墙设计定制了一整面的顶天立地电视柜,超大的储物功能使用起来非常方便,白色的柜门简洁大气,靠墙几乎没有存在感,视觉上更显空间大,无把手设计让立面更加有整体感,上方内嵌了投影幕布,柜体下方留空处,预留了电源插孔,同时放置音响等物件,非常实用。
柜内根据屋主的生活习惯和爱好,合理利用柜内空间设计规划了隔板,整个收纳空间非常大。
左边的柜体在合理的规划下,用于日常囤货、收纳人类零食、猫咪用品、啤酒罐的收藏、咖啡相关物件的收藏,小玩具的收藏,常用工具的收纳,使用非常方便,也非常实用。
右边现在还有很多空余,目前用于酒瓶的收藏、Switch纸盒的收藏、日常常备的家居药物的收纳、家里文件的收纳、瑜伽垫。晾衣架的收纳,整体来说非常实用,且收纳空间绰绰有余。
电柜上上方将幕布放下,就成为家庭影院,投影非常清晰,两人两猫,非常温暖的场景,也是非常温馨的氛围。
推荐阅读
- 现代风|168㎡现代风,带着浓郁的归属感与愉悦感
- 施工者|不管家多大,装修时做好这12处细节,美观与舒适并存,幸福感提升
- 混淆感|146㎡北欧经典白色三居室,诠释令人心醉的优雅
- 灰尘|家中阳台不要装推拉门了,装这种更实用个性,不得不感叹太聪明了
- 简单感|现实的平衡取舍,才是生活之道!143平现代风格设计欣赏!
- 木纹板|装修案例欣赏:小北欧风格的居家设计,简洁的同时又不失温馨感!
- 香港|好住 全新体验!住在景区里是什么样的感受?
- 全屋|164m2现代简约全屋简洁大方,有质感!
- |远嫁3000公里,看到农村婆家给我准备的婚房,我感觉我快要哭了
- 楼层|为何劝一楼带院的高层住宅不要住过来人说出真实感受!太实用
