占地面积|20万起就能盖的中式小院,第1套适合南方,第3套适合北方
对于未来的新家的模样,我相信每一位朋友都有自己的想象。但对于中国农村人来说,一栋简单的房子,一座宽敞的小院,这样的居住之所才是真正适合我们、符合我们生活习惯的。今天农村更美建筑师就给大家带来了3套这样的户型,看看哪套最符合你的需求呢?
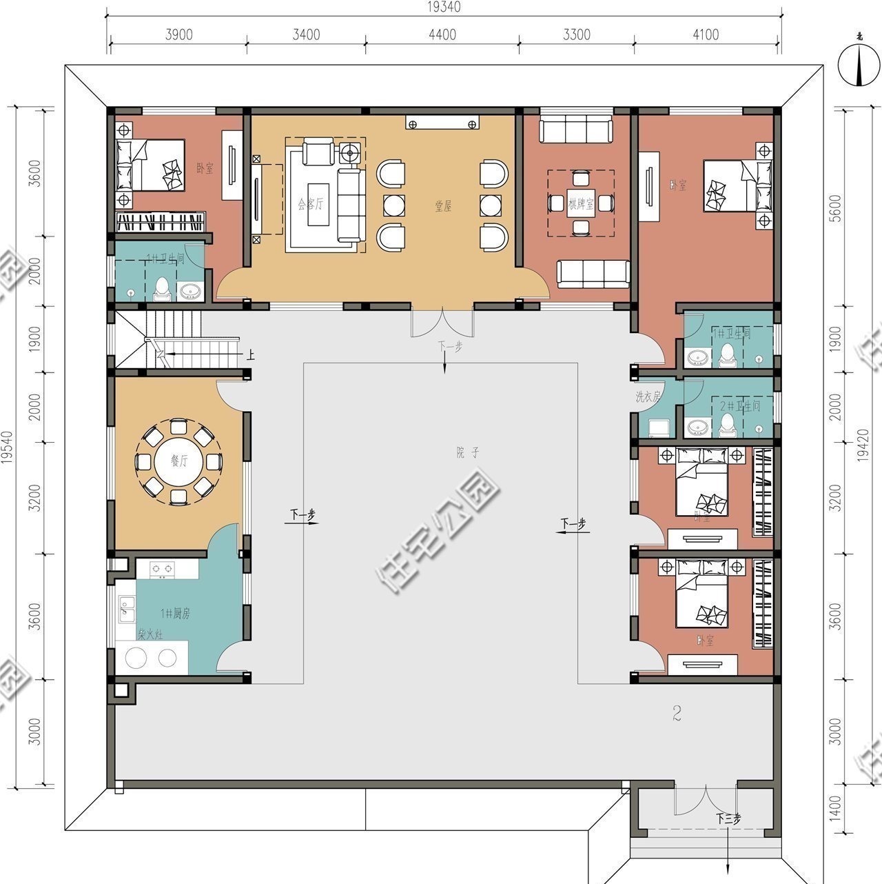
户型1:古朴中式四合院,洁污分离、动静分区,带大堂屋,适合南方地区,毛坯25万起
占地尺寸:19.34m×19.54m
占地面积:235.81㎡(不含庭院)
建筑面积:235.81㎡(不含庭院)
建筑高度:7.2m
建筑情况:4卧 3卫 1堂屋 1餐厅 1厨房 1棋牌室
户型2:宜居养老小院,无障碍坡道、火炕房设计,适合北方农村,毛坯20万起
占地尺寸:14.9m×24m
占地面积:361㎡
建筑面积:172㎡
建筑高度:5.4m
建筑情况:1厨 1餐 2卫 1洗澡间 1玄关 1锅炉房 3卧室
户型3:坐东朝西户型,双庭院、独立居室设计,男女老少都喜欢,毛坯25万起
占地尺寸:20.24×16.74m
占地面积:204.75㎡
建筑面积:204.75㎡
建筑高度:5.5m
建筑情况:5室 2厅 2卫 1厨 1茶室 1储物间 1玄关 
毛坯20万起就能盖的中式小院,你更喜欢哪套?
【 占地面积|20万起就能盖的中式小院,第1套适合南方,第3套适合北方】关注农村更美建筑师,1500套图纸等着你。
推荐阅读
- 修建|精选10套三层户型图纸,占地面积均不足百平,尤其适合新农村修建
- 购房置业|王炸!最低2.1万起,高新天地源丹轩坊、中国铁建·西派国樾来了
- 房子|如果我国房价暴跌70%,老百姓真的就能买得起房了吗?
- 占地面积|1月藁城首场土拍来袭!藁城区2宗6.04亩商服用地成功出让
- 房屋|打破房屋的原始结构,让家人坐在沙发上就能晒太阳,好温暖
- 板块|总价320万起买地铁盘 城东汇通路怎么选?
- 占地面积|农村建二层毛坯房多少钱?合理规划好,没有你想象中的那么贵
- 回乡|6款三层农村别墅,带车库30万起,回乡建房有面子有里子
- 日不落|地产是"日不落"行业,碧桂园就能安枕无忧吗?
- 楼间距|刚需如何选房?内行人:只要遵循“三点”原则,就能买到好房子!
