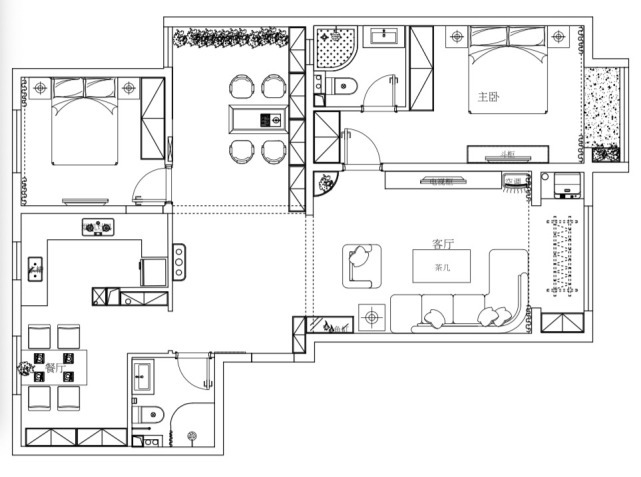
隔断|125平简约风三居室,厨房和小客厅中间以一个简单的小餐厅隔断
客厅和厨房统一设计是小户型保持视觉透亮和节省空间的最佳选择。设计师还细心地在厨房和小客厅中间以一个简单的小餐厅隔断,简单又方便。宜家买来的灰色布艺沙发很是百搭,放在小客厅里填充了家的休闲温馨气息,家具以现代简约的风格为主,比较节省空间,视觉上看着也更为简单利落
客厅也叫起居室,是主人与客人会面的地方,也是房子的门面。客厅的摆设、颜色都能反映主人的性格、特点、眼光、个性等。客厅宜用浅色,让客人有耳目一新的感觉。
【 隔断|125平简约风三居室,厨房和小客厅中间以一个简单的小餐厅隔断】客厅布置得小巧精致,墙面粉刷为简单的白色,搭配上轻盈的木色、灰色,给人的感觉轻松舒适。苹果绿是所有色彩中的点睛之笔,苹果绿的窗帘、抱枕点缀其中,营造出生机勃勃的感觉
卧室装修中很多人都习惯把衣物放在衣柜里,房间就会变得空荡荡的。如果卧室空间比较大的话,可以在卧室角落布置一个小型衣帽间,用来存放一些不需要立刻收起来的衣物,这样不仅能分门别类地整理好衣物,也对于卧室的空间进行了合理利用。
卧室连接一个南向阳台,大块的落地玻璃窗设计,满足了采用需求,在阳台处,一桌一椅便可轻松享受午后的休闲时光。
我们的生活离不开食物,而食物的烹饪离不开厨房。它是使用频率最高的场所之一,当然要以实用为主。一款精美实用的厨房,能够激发你下厨的兴趣。
厨房为狭长型空间,墙体、橱柜和地板都是白色设计,从视觉上让空间更加开阔,同时给人明亮干净的空间质感。
洁白的砖块堆砌形状的沙发背墙,既属于客厅的一道装饰设计,又是区分客厅与餐厅空间机能的分界线。
设计师还细心地在厨房和小客厅中间以一个简单的小餐厅隔断,简单又方便
推荐阅读
- 卫生间|129平现代美式三居室,打造出一个舒适又温馨的美式家
- 三居室|118平现代风三居室,一个简单而纯粹还原生活色彩的家
- 限购|哈市125家房企将列入重点监管范围,详细名单→
- 郑州|买房月供曝光!郑州最新平均工资8694元,撑得起房贷么?
- 石家庄|144平的面积,无人值守棋牌室,这是如何做到的?
- 简单感|现实的平衡取舍,才是生活之道!143平现代风格设计欣赏!
- 她家148平米,进门就被玄关迷住,不做吊顶跟背景墙,阳台超漂亮
- 修建|精选10套三层户型图纸,占地面积均不足百平,尤其适合新农村修建
- 南通|拍卖成功!江苏南通一处197平住宅192万成交!
- 烤漆面|老公坚持餐厅不做柜子,原来用吊兰做隔断可以这么漂亮,学到了
