小院|又想住楼上, 又想有院子, 还要中式风格, 这间农村小院做到了!
如今农村生活富裕了,人们对住房的要求和品味也提高了。有人想住欧式别墅,有人喜欢中式平房,还有人既想住楼房别墅,也想楼下有个小院……总之生活变好了,人们也敢于追求美好幸福的生活了,而且这一切也并不难实现,只要在农村老家有块宅基地,再到自己喜欢的设计户型,花几十万元就能建起来。今天,我们来看一间有二层小楼的中式小院。
如下图所示,这间中式小院,白墙黑瓦,院内廊檐下挂着红灯笼,虽然没有正规四合院那么大,却也符合人们对大宅院的理想,何况还有二层楼补充了地面不足的面积,一般人家都可以建一栋,既可以住楼下接地气,也可住楼上安安静静。
【 小院|又想住楼上, 又想有院子, 还要中式风格, 这间农村小院做到了!】
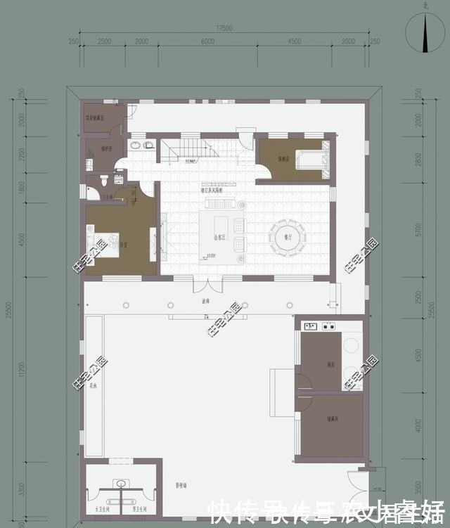
从一层平面图来看,院子进门右手边是厨房和储藏间,院子把角是男女分开的卫生间,符合农村的传统习惯。进入室内,可能你更惊讶了,会客厅、餐厅除外,还有带独立卫生间的卧室,以及锅炉房和煤炭储藏室,有个这个,冬天再也不怕冷了。而且,还留了一间照顾老人生活起居的保姆室,真是大户人家呀。
二层设计很简单,除了会客厅外,就是三个卧室和两个卫生间,早上绝对不会为上厕所打架。
从整 个小院设计来看,整体都很简单,可能就是设计师专为家里需要照顾老人的家庭设计的。总之,生活好了,人们的生活会越来越舒适的。
推荐阅读
- 大悦城|家里这两个地方别漏了贴瓷砖,许多人为了省钱,入住就后悔了
- 住宅|现在买房,选“高层”还是“低层”好专家20年后差别很大
- 情形|速看!武汉住房公积金贷款信用审核新标准发布
- 文商旅|碧桂园文商旅长租公寓持续发展,为城市青年带来更舒适居住体验
- 购房置业|上海女子拍下对楼住户家无敌露台,超大空间网友酸了:买房送操场
- 客厅|参观向华强和陈岚的豪宅,房子层高太矮了,住着不压抑吗
- 缴存基数|@长春人 2022住房公积金缴存基数有调整 详解全在这
- 住房公积金|疫情之下,打破唯价格论 预见天津楼市未来趋势
- 大门|房子大门万万不能朝这地方开,师傅看了摇头,怪不得我家越住越穷
- 购房置业|这个城市住房补贴都涨到600万了!
