主卧|mc:吊打正版的盗版MC?超真实物理引擎,拒绝浮空树
对于三代四口之家来说,房子既要满足相互陪伴,成员们也要拥有各自独立的生活空间。小户型想要实现大团圆,应该如何取舍?来,本期案例给你答案!
本期,甜茶为大家分享的家装案例,面积约89㎡。屋主一家三代四口人,有老人和孩子,所以对功能的需求会更多一些。在设计师的帮助下,89㎡的房子完美变身“隔代生活”的舒适家。
▲装修实拍图
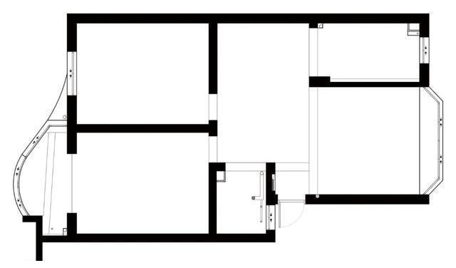
原始户型
这套户型的格局方正,主卧和客厅都有阳台,保证了整体的采光和通透性。美中不足的是,原始户型是两居室,但是屋主一家三代人,至少需要三个房间,所以整体格局需要调整。
▲原始户型图
设计亮点
①将厨房改为老人房,增加一间卧室;
②借助儿童房和餐厅空间,做开放式厨房;
③客厅阳台做地台设计,增加休闲区;
④卧室阳台做清洗区,洗衣晾晒一步到位;
⑤主卧增加独立卫生间,方便日常使用。
▲装修平面图
||玄关:入户做玄关柜,兼顾私密性和收纳性
在原户型中,其实是没有玄关的,打开入门将一眼看尽屋内景象。为了提升全屋的私密性,设计师在入户门的右侧做了一组“顶天立地”的玄关柜,从视觉上隔开客厅区域,同时又提升了收纳空间。
▲玄关实拍图
||客厅:电视书墙 地台飘窗,实用性更强
在传统客厅中,你一定会看到电视、沙发和茶几,它们带来的功能也比较单一。而在本期案例中,设计师解锁了客厅的新玩法,赋予了它休闲区和图书室两个新功能,好看又实用。
▲客厅实拍图
设计师用整面书墙,代替电视背景墙,把“图书馆”搬进家中。书墙的设计也十分巧妙,白色的柜体搭配原木色滑动柜门,关上柜门的时候简洁清新;想要看电视的时候,可以把柜门打开,也不会影响整体观感。
▲客厅实拍图
客厅的阳台,被设计师改成了“地台 飘窗柜”的组合,兼具功能性和收纳性。平时,父母可以和孩子一起,坐在地台上一起看书、玩游戏,享受惬意的亲子时光。
▲客厅实拍图
地台的一侧,与书墙巧妙衔接,方便屋主随手拿取书籍。
▲客厅实拍图
设计师取消了客厅的茶几,腾出留白空间,营造出更加通透的视觉感。
▲客厅实拍图
客厅内浅灰色的豆腐沙发,搭配木质休闲椅,轻盈灵动,屋主可根据需求随意调整家居摆放。
▲客厅实拍图
||餐厅:简单小巧,氛围感满分
由于原餐厅一半的空间给了厨房,所以现在的餐厅面积比较小,刚好放下四人位餐桌椅,可满足一家人的用餐需求。
推荐阅读
- 小房间|参观140㎡大婚房,朋友都夸餐边柜有档次,我却更喜欢主卧的飘窗
- 主卧室|为了20㎡小院子,老公坚持买一楼,完工进屋就被迷住了,晒晒
- 餐厅|这套新房真有创意,客厅改主卧,电视背景墙后面设吧台!
- 柜子|入住一个月的新房,全屋漂亮极了,头一次见主卧这么打柜子
- 无锡|晒晒我的农村别墅婚房!主卧50平,还有家庭影院和地下游泳池
- 主卧|买房子选“客厅阳台”还是“主卧阳台”?售楼经理吐真言
- 卫生间|70㎡一居,把客厅当主卧,把主卧做儿童房,这才是真正的亲子宅
- 卫生|很多人不愿买主卧带卫生间的房子住久了才知道5大缺点难忍受
- 主卧|82平楼中楼,一进屋就被迷住了!楼梯做个大改造!等于多出一间房
- 主卧室|她一家3口,住110㎡客厅坚持不买沙发,2个衣帽间!太舒服了!
