气派|盖房子要有“样”,有面子,要省钱,这套10米面宽二层别墅做到了
如今农村建房,富裕的人家盖得豪华,气派,中等收入的也盖得差不多,这让很多人着急,虽然家里经济相对拮据,但是自家盖的房子也得说得过去,不说要多么华丽,但也得有个房子的“样子”,能够拿得出手,将来孩子找对象结婚起码说起来家里有套像样的房子。今天我们给大家介绍一套农村自建二层别墅,3室1厅,造价不高,却有别墅的气势。
如下图所示,这套农村二层别墅看起来不大,但是有模有样,家里建一套,很是说得过去。其实它的面宽只有10.1米,进深更小些,才9.32米,户型非常方正,因为面积不大,建造成本也不会太高,这样一栋二层小楼,在自家宅基地上建起来,有个20、30万元也就差不多了。
一层平面图,门前有个小走廊,向阳的客厅和主卧,屋里很亮堂。厨房、餐厅和大客厅,不比那些豪华的别墅差到哪里去,生活也会很舒适。
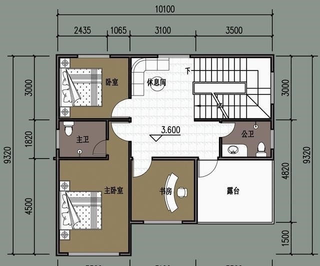
二层平面图上是带卫生间的主卧和一间次卧,还有书房。休息区做成个吧台也可以,生活很有情调。室外的大露台可以种葡萄,乘凉,甚至晾晒粮食。
今天介绍的这套农村二层自建别墅,户型方正风水好,模样气派有面子,建造成本不太高,居住生活很舒适。你觉得怎么样呢?欢迎在评论里留言。
推荐阅读
- 买房|二手房指导价意义非凡,主要有这4点,想购房的来看看
- 开阳|房价下跌势头强劲,炒房客为何不积极抛房?主要有这5个原因
- 万科|为什么要有房地产调控政策,难道不调控不行吗?
- 娱乐室|农村4层别墅就是这么高大上,10间卧室爽到爆,这样的设计超气派
- |高层住宅,弊端实在太多,主要有这4个
- 小户型|小家越住越大——小户型也要有序收纳!收纳储物家具别错过!
- 农村|带柴火灶的农村别墅,外观气派十足,整体造型别致美观。
- 屋面处|漂亮气派的简欧别墅,多阳台+挑空客厅+堂屋,不可能不爱
- |新手买房时,可以去售楼处这样问,主要有以下3点
- 烟台|买房只是第一步,接下来要考虑这些事,主要有以下3点
