进门处|装修就学她家,舍弃电视柜后,不仅空间感增加了,还非常大气
虽说新房的户型问题,可以通过装修来做改造,但像一些基础结构是没有办法改造的。比如客厅的开间就是一个固定的尺寸。当然,有的朋友会说,可以通过电视墙的改造,来增加开间尺寸,但这也是要在电视墙是非承重墙的情况下,才能做改造处理。况且,对电视墙进行改造,还会影响到另一个房间。因此,这个方法并不适合于所用的家庭。
那么针对客厅开间问题该怎么解决呢?本期案例中的屋主针对这个问题,二话没说就直接舍弃了客厅的电视柜,以此来预留出足够的开间尺寸。同时,通过最后的效果来说,也完全不影响生活影响,可以说是非常实用的布局设计了,很值得我们来学习。
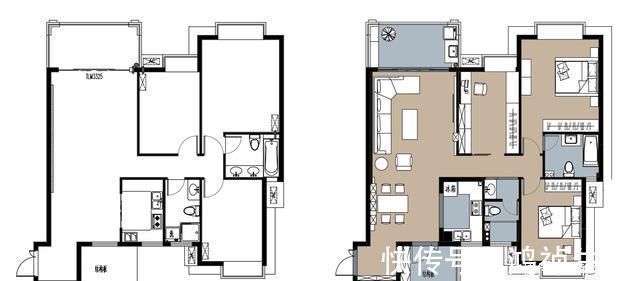
平面结构及方案图
新房位于贵阳,建筑面积有118㎡,从原户型上来看,由于进门处赠送了一个小房间,可以算是四室两厅的结构了。虽说原户型很不错,且每个房间也都比较工整,但让人非常可惜的是,客厅的开间只有3.9米宽,所以若按常规来布局的话,肯定会感觉很拥挤的。
通过布局方案设计,整体结构这块基本上还是保留了原有的结构。只不过为了保证小过道的采光率,是将南边小卧室的门改成了移门结构,以此来增加补光率。而在房间分配上,则是以两间卧室一间书房一间储物间为主的,也算是三口之家常见的分配方式了。
进门玄关
原户型进门处就有一个独立的玄关,侧面及正对面做满柜子,不仅很好的将空间利用了起来,在结构设计上也非常实用。比如正对面的柜子做上全柜门设计后,可以当作衣柜来使用,而旁边鞋柜的中间位置,则采用了留空设计,以方便进门后随手放一些东西,同时角落处的灰镜设计,也代替了仪容镜的作用。
当然,两组柜子底部留空设计,也是比较常见且实用的做法了。而在色调搭配上,由于是以现代风为主的,所以用经典的黑白来搭,也很有视觉感,并且白色的柜门也弥补了进门采光不足的问题。
【 进门处|装修就学她家,舍弃电视柜后,不仅空间感增加了,还非常大气】餐厅
餐厅的设计比较常规,一组四人桌椅以及酒柜的配置,也满足了屋主一家基本的生活需求。地面选择木地板来铺设,也在整个黑白调中,衬托出了一份温馨感。
客厅
客厅最大的亮点,就是电视墙以及无电视柜的处理了。首先放弃电视柜这个做法,直接最大的化的保留了活动及通道空间,即便原开间有限,也表现出了一种很不错的视觉感。
考虑到舍弃电视柜后的收纳储物功能,电视墙这里则是利用墙体,掏了一块空间出来做了个小柜子,来满足一些小东西的收纳。同时,选择石材与木材搭配装饰,效果上也显得非常大气。
沙发这里则放弃了常规的L形转角沙发,选择半弧形结构的沙发来做配置,则再一次提高了整个空间的视觉感。搭配上墙面上的一幅装饰画后,看起来既简洁又非常饱满。
推荐阅读
- 房产证|婚前财产婚内可以自行处理吗
- 装修|乔迁新房3月以泪洗面!当初的不理智,连犯15个极品装修坑!作孽
- 装修|淋浴房还可以坐着洗澡,一开始很不理解,装修后才发现太实用了!
- 施工者|不管家多大,装修时做好这12处细节,美观与舒适并存,幸福感提升
- 心塞|5个月装修一套房,硬装让我喜出望外,结果家具一上全废了!心塞
- 装修|空调外机万万不能这样挂墙,若不是师傅提醒,我家都装错了!
- 洗头|崩溃现场:装修的10条坑,我都替你踩扁了,请你一定要避开
- 抽油烟机|婆婆抠出新境界,5万装修婚房还带家电,如此寒酸真让人不想嫁了
- 公示|一处体育中心项目、一处小型口袋公园!市北两项目规划公示,配套升级
- 她家148平米,进门就被玄关迷住,不做吊顶跟背景墙,阳台超漂亮
