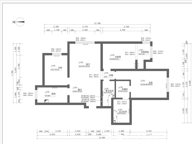
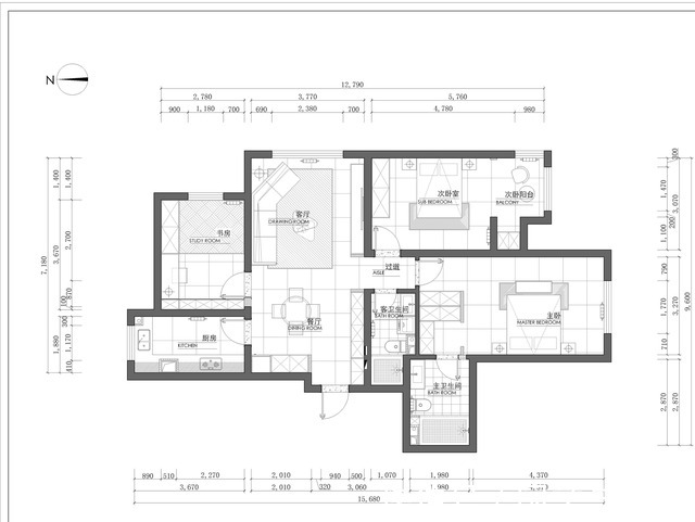
静气|国投肖邦 130㎡ 新中式!



设计师用更时尚东方的设计手法将多元化的材质带入,看似不经意间的古今碰撞,俯仰间皆能感受到空间的雅奢氛围。
中式设计风格往往自成一股静气,安静的材质、素雅的色调、去繁从简的空间陈设方式,将一切简约到了极致,却能沉淀浮躁的心性,给人一个诗意存在的空间。中式设计风格往往自成一股静气,安静的材质、素雅的色调、去繁从简的空间陈设方式,将一切简约到了极致,却能沉淀浮躁的心性,给人一个诗意存在的空间。

采用现代简约的风格,温馨大气舒适,色彩明亮,配以局部软装点缀各个空间。
推荐阅读
- 曼哈顿|身处曼哈顿,250亿房产项目要烂尾?2500名中国投资人的绿卡成疑
- 房地产|加拿大住房部部长:房子是用来住的,不是给外国投资的
- 国投开发公司|金牛国投开发公司成功竞得宗地!
- 契税|房价创新高炒房成公敌,加拿大:房子是用来住的不是给外国投资的
- 烂尾楼|金牛国投开发公司成功竞得宗地!
- 楼盘|买房不用愁,评测帮你忙!莆田国投新涵首府热搜楼盘信息新鲜出炉
- 深圳市投资控股有限公司|贵阳万科、华润深国投信托退出宁波一投资管理公司
- 美通社|报告显示:美国投资者购房量创纪录,超过疫情前水平 | 住房
- 伊兹密尔|土耳其房产销售数据:6月份外国投资者大量增加
- 天津|旭辉控股集团(00884)与恒基中国投资成立合营企业以开发天津房地产项目
