衣帽间|他家两室改三室,还能拥有衣帽间、大卫生间,小户型改造的典范!

#百度家居大师团#
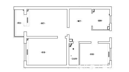
户型分析
从原始户型图中可以看到,这是一个非常典型的两居室格局,动静分区,一侧是厨房、餐厅、客厅,另一侧是两间卧室以及卫生间。
改造后,只拆除了部分卫生间和厨房的墙体,将客厅改为主卧室并增加衣帽间,餐厅改为客厅,厨房空间打开以便充分引入自然光线。整合入户一侧的卫生间和小卧室格局,扩大实用性更强的卫浴空间。
一进门的左手边便是一整墙的收纳柜,最外侧的两扇对开门可作为鞋柜使用。除此以外,房屋没有做吊顶,上排增加吊柜设计,尽可能给这个家增加收纳空间。
电视墙位置采用了对称的处理方式,将次卧门和卫生间门做隐形门设计,这样做让房屋立面看起来更加平整。
客厅
开放式厨房的最大好处就是解决了客厅的采光问题,可以将厨房窗外的光充分引入。
简单的双人沙发、圆形茶几,再加上一部投影仪,客厅不需要太大,够用就好。墙面还加入了黄色色块点缀,取代了装饰画的效果,非常有趣。
餐厨
简洁实用的小厨房,经典的原木+白的配色设计,非常适合小户型实用。增加的中岛台可以作为屋主二人吃饭的位置,后期随着家庭成员的增加,在客厅增加可折叠的餐桌即可。
在沙发旁边添置一个置物架,用来放置小家电和零食,紧挨中岛台也是很方便,平时可以热饭菜、煮咖啡。
卧室1
卧室1
低饱和度的淡绿色奠定了整体清新自然的风格,特意根据户型特点,设计了设计为L型衣柜,依旧采用了平板门的形式,再加上白色调,营造干净利落的视觉效果。
卧室2
卧室2
这家卧室将收纳做到了极致,除了一侧的衣柜,床尾也规划了一整面的到顶高柜,中部留空摆放电视,侧面开放格可作为展示区。
推荐阅读
- 乳胶漆|等买了房,就照他家这么装,全屋不吊顶,不做背景墙,越看越耐看
- 衣帽间|180㎡大平层装成北欧风,不光过道打了整体柜子,独立水吧给力
- 衣帽间|退休阿姨晒出自己的新家装修全屋大面积护墙板造型,温馨有个性
- 衣帽间如何装修?设计师推荐5大黄金布局|小小屋装修网| u型
- 衣帽间|建议大家:不论多节俭,这30件东西该扔就扔,一点都不用心疼
- 衣帽间|130㎡现代法式风改造案例,静静地享受生活的美好
- Loft公寓|45平现代简约风Loft公寓,衣帽间茶室书房一个不少,一人住好惬意
- 物品|越来越多人将床底加高1m左右,做成衣帽间,省空间又能“装”!
- 主卧室|她一家3口,住110㎡客厅坚持不买沙发,2个衣帽间!太舒服了!
- 衣帽间|单身女青年的家,客厅选择超大电视机,让客厅瞬间变成影音室
