原木|看了她家才发现,简装才是最好的治愈风格,全屋窗明几净羡煞旁人
一直觉得日式和北欧,以及白墙配原木的效果,只要做到简洁大方,那么就有种温馨治愈的氛围,特别适合居家过日子。直到后来看了本案位于上海,建面175㎡的复式住宅,才发现根本不需要讲究什么风格,因为简装就是最好的治愈效果,不需要你堆砌造型,也不需要刻意搭配,哪怕背景墙刮白,只要采光好,经由漫反射,照样能做到全屋窗明几净,且羡煞旁人,不信我们一起来看看她家这套,以实用主义至上为理念的装修效果吧。平面图
一楼原始结构图
一楼平面布置图一楼为四室两厅、南北通透的格局。改动的话不多,但还是有的,比如位于客厅的楼梯实在太碍事,就挪到了老人房的左侧;其次,儿童房为了提高利用率,向左挤出了一个衣帽间;最后便是客卫,为了满足三代同堂的使用需求提高效率,就布局为三分离的结构,且坐拥洗漱、如厕、沐浴、更衣(室),和清洗贴身衣物的壁挂式洗衣机,共五大功能区。
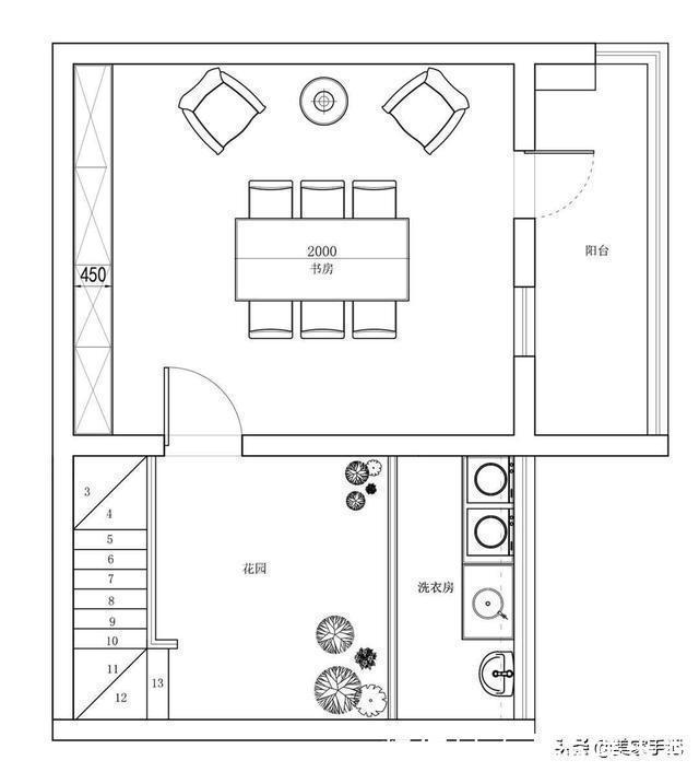
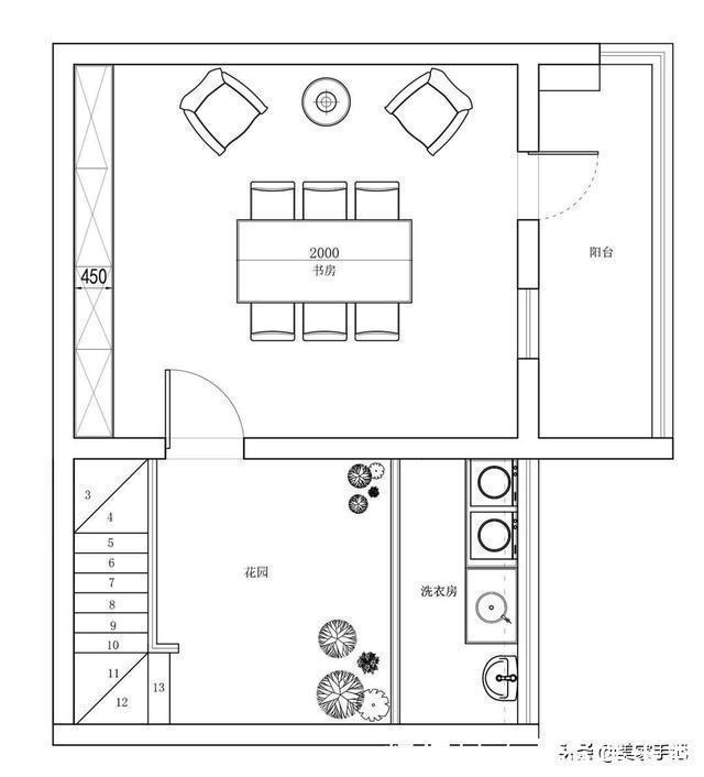
二楼原始结构图
二楼平面布置图二楼作为书房主要用于休闲办公,另外附带了一个露台作为花园和洗衣房。入户
屋主家没有独立玄关,就在进门右侧,也就是图左,定制了一款兼具换鞋凳和挂钩区功能的多功能白色鞋柜。储物空间虽然不大,但收纳一些常用的鞋子,以及进出门需要用到的杂物还是没有问题的。
鞋柜侧面,还做了一排开放式的储物区,无论收纳饰品摆件用于展示,还是放置孩子的玩具以及生活中的杂物都可以。客厅
客厅完完全全的简装效果,虽然不豪华,但还是一进门就把我迷住,无它,优渥的采光经由阳台洒向室内,再通过木地板以及白色背景墙的漫反射,使得整个家充斥着一股温馨治愈的氛围,令人感觉到特别的放松与解压。
电视墙的话,屋主直接舍弃,改定制整墙的柜子,一方面,白色的免拉手柜门并不会显得压抑,反而美观大方,另一方面可以为客厅增添更多的收纳机能,毕竟家有小孩,屋主希望客厅可以作为其活动的地方,那么书籍读物以及玩具这些东西都是必不可少的,而只有做好收纳,才能保持干净整洁的居家效果。
柜子内部结构示意图
看到这,有些人纳闷,影音方面的需求该如何解决?答案是顶部的投影仪幕布,需要时,降下来,全家人聚坐在一起观影,家的感情能得到无限升温,不需要时收起,看着也干净利落。
补充一下沙发墙,如前所述,直接刷白,并在光线的映衬下,柔和温馨,看着非常舒适,搭配原木骨架的布艺沙发和座椅,就更是如此了。其它是隔板上的照片,用来保存记录过去的美好瞬间,加上右侧的圣诞树,以及搁板上的儿童绘本和读物,简单装修的效果也能温情满满,羡煞旁人。餐厅
推荐阅读
- 大门|房子大门万万不能朝这地方开,师傅看了摇头,怪不得我家越住越穷
- 她家148平米,进门就被玄关迷住,不做吊顶跟背景墙,阳台超漂亮
- 薄荷蓝|走进她家,才知什么叫美观与实用并存,全屋温暖又清爽,太舒服了
- 洗衣房|这三款农村四合院设计图让不少城里人羡慕,父母看了也欢喜
- 万科|看了塔吊安装和拆卸的费用,难怪烂尾房开发商直接跑路啥都不管了
- 乳胶漆|看她家装修,比样板房还漂亮,电视墙特别实用,值得做参考!晒晒!
- 罐罐|听我一句劝:厨房别再摆瓶瓶罐罐,学她家这样做,美观方便还不贵
- 装置物|卫生间别再傻傻装置物架了,聪明人都这样做,老师傅看了点头夸好
- 纸袋|她家房子不大,但全屋“隐形”收纳确实惊艳,真是美观与实用兼具
- 户型|通过后期户型改造可以大大地提高生活品质,看了她家方案,学习了
