卫生间|坚持简装不乱买,96㎡清爽明亮客厅打一排地柜,看完忍不住夸赞
现在家庭装修,不再盲目追求造型和装饰,越来越注重居住体验。将自己的居住习惯融入到装修中,打造舒适流畅的居住场所。今天分享的是一套96㎡两房改造案例,房屋位于台北中山区,拥有近30年的屋龄,屋主一家特别重视居住体验,除了满足基础功能外,更希望空间流畅开放,达成毫无隔阂的亲子互动。装修上坚持简装不乱买原则,整体空间清爽明亮,看完忍不住夸赞一番。(设计:都市居所设计)
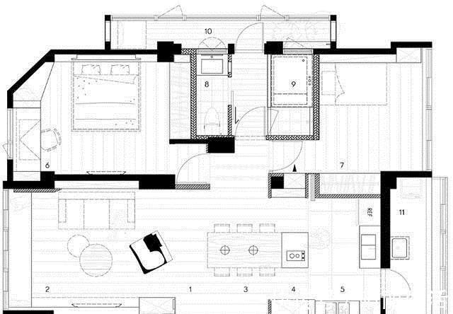
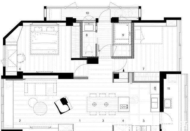
装修平面图,96㎡两房两厅一厨一卫,常住人口两大一小,女主希望拥有宽敞的厨房与开阔视野,男主希望拥有厕浴分离的卫生间规划,经过改造都实现了。
客厅改造前后对比,截然不同的两种体验。改造前略带老气压抑,改造后清爽明亮。
推开入户门,映入眼帘的是纯净简明的调性。浅灰色墙壁,白色柜体、浅色木质地板,延长光线触角,让室内更加清爽明亮。入户没有独立玄关区,靠近客厅设计一组通高储物柜,改善进门一览无余的局面。另一侧镜面鞋柜设计,提高收纳还延展视觉空间。
【 卫生间|坚持简装不乱买,96㎡清爽明亮客厅打一排地柜,看完忍不住夸赞】
客厅简洁清爽,舍弃茶几和电视柜腾出更多的空间给孩子玩耍。浅色调的运用,带动清新宽敞的流动感。升降窗帘简洁实用与整体风格更搭,同时避免了布艺窗帘的臃肿视觉感。靠窗一排地柜设计,可坐可躺可收纳,又是休闲阅读的好去处。沙发墙沿着屋梁深度设计一组烤漆吊柜,吊柜下方深灰色墙面与一道灯条,营造氛围与空间层次感。
磐多磨勾绘电视墙,简洁内敛有质感。下方黑色木质地台设计,赋予了空间层次。所有的电器线路隐藏在侧面白色格栅机柜中,让空间更加整洁有序。
餐厅改造前后对比,拆除厨房与餐厅隔墙,让原本紧凑拥挤的空间,变得宽敞通透。

拆除餐厅与厨房隔墙,空间打通让更多的阳台光线进入室内,改善整体通透氛围,白色餐柜与木质展柜收齐畸零空间。一道铁制拉门隔阻油烟,透明玻璃与长虹玻璃结合,区分上方视线区和下方隔断功能。
餐厅线条利落的木质餐桌,搭配颜色多样的椅子和灯具,勾勒出温馨活泼的用餐氛围。中岛台延展餐厨关系,岛台的加入让厨房形成三角动线,拥有更宽敞的烹饪空间。白色雾面烤漆橱柜围塑清爽视觉,中间墙面采用灰色铁道砖,方便日常清洁。
卫生间改造前后对比,拥挤凌乱的空间,变得井然有序,同时实现厕浴分离。

推荐阅读
- 卫生间|129平现代美式三居室,打造出一个舒适又温馨的美式家
- 收纳|去邻居家参观才知道,卫生间不装柜子这样设计,防潮耐脏好清洁
- 卫生间|什么才叫好户型?来看看这5个标准,你家房子符不符合?
- 卫生间|房屋装修6大暗坑,哪个踩了都会导致返工,希望你没踩到。
- 家庭成员|卫生间进门洗漱台,中间马桶,里面淋浴,怎么装?有哪些设计方案?
- 马桶|把洗手台埋到墙里,卫生间一下变大了很多,美观又实用,好处多多
- 烤漆面|老公坚持餐厅不做柜子,原来用吊兰做隔断可以这么漂亮,学到了
- 购房置业|夫妻俩大胆改造老房,坚持把3房改为1房,过于舒适了
- 主卧室|为了20㎡小院子,老公坚持买一楼,完工进屋就被迷住了,晒晒
- 淋浴房|越来越多人卫生间不装马桶了,如今流行这样设计,实在太聪明了
