四居室|让人一见钟情的现代简约风,低调奢华有内涵,鉴赏130平四居室!
在人生的路上,有一条路,每一个人非走不可,那就是年轻时候的弯路,而装修上也是同样如此,第一次装修没什么经验,踩了很多坑,第二次装修就会少走很多弯路。今天给大家推荐一套130平现代简约风格,户型结构是一个四室的大房子,因为是婚房,暂时没有孩子 ,所以,四房改了三房,业主希望家里是干净整洁的,最喜欢烹饪,所以厨房设计最为重要。一起和小编去欣赏一下吧!
沙发背景墙以简约为主,墙面刷浅浅的米色,灰色地砖铺上地毯,打破单调的同时增加温暖,中间再摆上金属支架+大理石纹台面的小圆几,整个空间显得轻奢有质感,还有白色纱帘,增添朦胧美感,金属吊灯特别有味道。小区名称:公园道一号项目性质:四室两厅项目面积:130平装修风格:现代简约风格
电视背景墙采用大理石装饰,大气又时尚,底部搭配黑色台面,平时放一些小物件好看又实用。
玄关做了一组柜子,开放式格子用来摆放书籍和装饰品,为空间增添一份艺术之美,柜子右侧留出几个挂钩,随手挂上包包或雨伞,方便取用,家里的冰箱也放在这里刚刚好。
白色的空间搭配暖灰色的餐椅,辅以金属材质点缀,餐厅空间显得格外的唯美浪漫。紧邻餐厅与厨房直接做了吧台,大理石台面搭配木质材料简约又大气,加上优美的吊灯造型,让空间显得更加时尚。
紧邻餐厅厨房是开放式设计,白色作为主色调,地面延续客厅的灰色地砖大面积铺设,整个设计简约不简单。
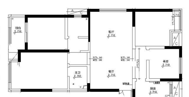
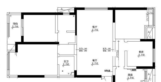
户型上没有过多改变,在原有基础上增加储物收纳功能,争取将空间利用到极致。
客厅虽然没有阳台,但采光一样很好,整体设计简约舒适又大方,白色沙发搭配灰蓝色抱枕和窗帘,有一种温柔的高级质感!
推荐阅读
- 混淆感|146㎡北欧经典白色三居室,诠释令人心醉的优雅
- 厨房|一居室也能如此精彩,展现单身人士的高端生活,享受生活的乐趣
- 地板|160㎡四居室,玄关比我家卧室都大,这才是真正的低调奢华有内涵
- 卫生间|129平现代美式三居室,打造出一个舒适又温馨的美式家
- 三居室|118平现代风三居室,一个简单而纯粹还原生活色彩的家
- 抽油烟机|婆婆抠出新境界,5万装修婚房还带家电,如此寒酸真让人不想嫁了
- 攀枝花|2.75亿元!四川攀枝花拍卖了两块土地使用权
- 购房置业|呼市人为什么这么期待第四代万达广场—城南万达广场
- 限购|没钱买洋房,只好买两梯四户带连廊房的,该如何选择呢?
- 洗衣房|这三款农村四合院设计图让不少城里人羡慕,父母看了也欢喜
