院子|看了她家,才知道中式元素有多美,一进门就很安静,还有个院子
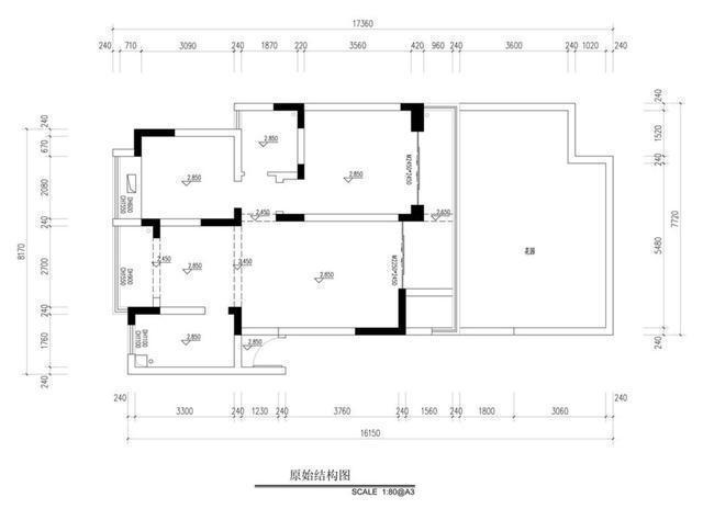
随着混搭风格的流行,很多人在给新房设计时,都喜欢在原空间风格的基础上,再穿插一些其它风格元素,从而让空间表现得更加丰富,增加视觉美感。比如在现代风的基础上穿插中式元素,就是一种很常见的处理手法。相较于单一的现代风,中式元素的存在,可以让空间显得更加有韵味,且在无形中透露出一丝质朴感。比如本期带来的这套案例,就是采用这样的处理方式来定位空间的,虽说新房的面积不大,但由于是在一楼,且外面还有一个院子,所以当新房装修好之后,不仅在空间在简约中带来一丝安静,空间感还很不错,不得不说中式元素的存在,真的是太美了。平面结构图
【 院子|看了她家,才知道中式元素有多美,一进门就很安静,还有个院子】
新房面积79㎡,两室两厅的户型,屋主一家四口,有两个儿子。从原户型上来,除了部分区域存在问题,整体还算是挺不错的。尤其是阳台外面的这个院子,更是极大提高了新房的性价比。因此,在方案设计上,也仅仅是对局部区域做了调整,并采用了双进门的方式来做规划的。 平面方案图
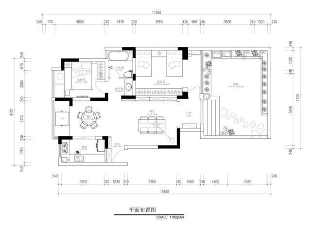
空间布局改造如下1、将入户门对面的厨房墙体给拆掉,并采用柜子来隔断,解决入户收纳需求。2、北阳台采用整体抬高的方式来设计,为餐厅延伸出一块休闲区。3、大卧室向南阳台延伸合并,作为儿童房来使用,解决两个孩子的居住需求。同时,将门洞改从阳台进,在缓解空间动线的前提下,使卫生间形成干湿分离结构。4、客厅以书房功能来定位,并在院子里开一个入户门,将阳台当作门厅来使用,使新房形成双进门结构。门厅
南阳台改成门厅之后,起到了连接客厅与院子的作用,从而让入户有一个合理的缓冲区。而极具质朴的装饰柜,以及墙面的梅花妆装饰画配置,也突显出了一抹素雅之美,看起来颇具江南庭院的画面感。玄关
借用厨房墙体空间规划出的玄关柜,采用了上下分体的结构来设计,方便让收纳做到分类。而灰色的柜门,以及复古的陶罐装饰,也再次表现出了中式元素之美。同时,玄关柜中间的白色灯光设计,也起到了气氛烘托作用,让视觉备显层次感。客厅
放弃客厅原有的沙发,并选择大尺寸的书桌来配置,则为空间赋予了多种功能。比如办公、阅读、休闲、接待、多人用餐等等,非常实用。当然,在生活使用上,或许没有配置沙发要舒适,但却能给人一种十分安静的空间感,以便卸下内心的疲惫,尽享生活的悠闲与惬意。
电视墙没有配置常规的视听设备,选择用整面墙柜子来设计,以便将生活的琐碎统统收纳进去,保证空间的整洁度。而与玄关选择同样的柜门,也让两者做到了呼应。同时,各种旧物装饰品,也在空间中起到了渲染情绪的作用。餐厅
由于餐厅面积小,选择圆形的餐桌,可以让空间显得更加圆润平滑,避开了突兀感。同时,也非常符合中式元素的定位,古朴又温馨。而外面的北阳台,则是采用整体抬高的方式,做成了一个休闲区。不管是与友人煮一壶茶谈笑风声,还是阅读小憩,都十分的慵懒。
推荐阅读
- 大门|房子大门万万不能朝这地方开,师傅看了摇头,怪不得我家越住越穷
- 她家148平米,进门就被玄关迷住,不做吊顶跟背景墙,阳台超漂亮
- 薄荷蓝|走进她家,才知什么叫美观与实用并存,全屋温暖又清爽,太舒服了
- 洗衣房|这三款农村四合院设计图让不少城里人羡慕,父母看了也欢喜
- 万科|看了塔吊安装和拆卸的费用,难怪烂尾房开发商直接跑路啥都不管了
- |中式庭院,这才是最让我们心动的院子
- 别墅|买不起别墅,买了一楼带30㎡院子的房子,入住两年多,后悔了吗?
- 主卧室|为了20㎡小院子,老公坚持买一楼,完工进屋就被迷住了,晒晒
- 乳胶漆|看她家装修,比样板房还漂亮,电视墙特别实用,值得做参考!晒晒!
- 阳光房|越来越多农村人把露天院子封闭成阳光房,农村又一景,美观又实用
