隔断|32岁单身女士的精致生活:一个人住56㎡公寓,生活充满仪式感

这是一套二手房,原始布局中有两个卧室和两个卫生间,一个面积不大的厨房和餐厅,以及一个小的阳台。业主是一位年轻的女性,自己创业开了一家公司,一个比较成功的女性,32岁,单身。业主需求:①宽敞舒适且独立的卧室②衣帽间③大浴室④宽敞明亮的客餐厅⑤功能齐全的现代化厨房⑥现代风格设计⑦尽可能多地使用天然的材料
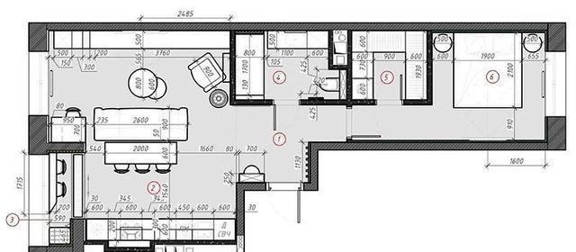
设计师根据客户的需求,对空间进行了重新规划,设计出了上图的平面布置:1.拆除了小卫生间,扩大了厨房操作台的面积。2.舍弃了一间卧室,厨房、餐厅、客厅一体化设计,通透明亮又宽敞。3.扩大了卫生间面积,重新规划布局,移除了洗衣机位置摆放马桶,满足业主需要一个大浴室的需求。4.卧室装上门,形成一个私密空间,在卧室内隔出了一个步入式衣帽间。下面来看看完成后的实景效果吧。
入户门厅开放式设计,没有设计鞋柜或者隔断,入户门左侧墙上设计了一个梳妆柜作为梳妆台,下方摆放软凳作为梳妆凳和换鞋凳使用。另一侧墙面上用原木板硬包设计,弱电箱嵌入墙中。这里重点说一下入户门正对卫生间门的问题,这是一个国外的案例,他们不信风水,所以没有进行错开或者遮挡,大家装修的时候可以设计一个隔断,就能解决入户门正对卫生间门的问题。
化妆台对面卫生间门旁边墙面上设计了一面全身镜,方便出门的时候整理着装。厨房、餐厅客厅一体化设计,让整个空间宽敞通透。沙发和餐桌作为功能区隔断,各个功能区的顶面设计也不同。
厨房橱柜靠墙一字型设计,两侧立柜中嵌入冰箱、微波炉、烤箱等厨房电器。整体白色的柜门中点缀了原木色的吊柜和黑色的大理石,整体给人一种简约大气的感觉。
挨着沙发摆放的神色大理石餐桌和深色的沙发颜色呼应,简约大气。餐桌顶面上的几个黑白色的圆形吊灯,给空间增添了一抹高级感。电视背景墙以原木色搭配黑色设计,大气感十足。
客厅深色的布艺沙发搭配黑色台面的茶几,为了让空间不过于冷淡,用了黄色和黄铜色进行点缀。客厅顶面白色的吊顶中间用原木色的木条作为装饰,别致温馨又大气。客厅另一侧墙面以灰色为主色调,上面点缀了几个白色山石状的石膏造型,简约而不简单。
客厅靠窗还设计了一张书桌,和沙发之间用木质栅栏隔开,既呼应顶面造型,又作为功能区隔断。墙面上用了一幅装饰画作为点缀,让墙面不会显得那么单调。造型别致的台灯给人眼前一亮的感觉。
厨房外的小阳台被设计成了休闲区,靠墙设计了一个卡座,卡座后方到顶上设计原木线条背景,从视觉上放大空间。窗台上铺贴了大理石台面,可以作为吧台使用。
推荐阅读
- 厨房|一居室也能如此精彩,展现单身人士的高端生活,享受生活的乐趣
- 烤漆面|老公坚持餐厅不做柜子,原来用吊兰做隔断可以这么漂亮,学到了
- 隔断|112㎡清新北欧风,客厅砌个半墙隔出一间书房,2居变3居真实用
- 摄像师|日本单身宅男9㎡小家,厕所巴掌大却有浴缸,玄关晾衣服格外整洁
- 住房公积金|要想家里采光好,玻璃隔断少不了!
- 自然之风|不怕房子小就怕你瞎搞!42㎡单身公寓,装出大户型的既视感!
- 鞋子|入户没有玄关?这样设计真大气,储物隔断两不误,小户型设计典范
- |老公执意阳台不装隔断,拦都拦不住,完工后效果出乎意料
- 餐边柜|装修时,硬是在餐厅挤出“隔断”邻居不解,完工后悔自家没效仿
- 隔断|为什么很少有人买复式房了?5大弊端太糟心,刚需千万别再入坑了!
