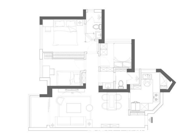
洗碗柜|118平现代风三居室,一个简单而纯粹还原生活色彩的家
这是一个简单而纯粹的家还原生活原本色彩,目之所及无一繁杂的装饰,只通过必要家具的合理设计,使家中的生活气息不断酝酿。但仔细推敲也能发现,在这个精致的空间里,不仅有生活的诗意,还有烟火。在这个家中,凸显了现代人化繁为简的生活方式,享受生活只是一件再平常不过的事情。
客厅几乎就是家具、背景墙简单的组合就可以了。墙面装饰的种类很多,比如有壁纸、硅藻泥、乳胶漆等等,每个人喜欢的风格不同,所以在选择上可以根据个人喜好决定。
客厅布局简单大方,硬装和软装的设计相互结合,恰到好处,凸显了现代人化繁为简的生活方式。
卧室是我们休息的地方,所以小编建议最好不要放太多的电器,这样会产生辐射影响着我们的身体,所以小编是不建议大家在卧室放电视的,有一台空调和其他小型家电就可以了!卧室的插座和空调孔一定要提前留好,以备我们需要。
【 洗碗柜|118平现代风三居室,一个简单而纯粹还原生活色彩的家】儿童房的墙面特意设计成两种对比色,打破常规理念,通过合理的色相及面积选取,创造性地实现了空间的协调氛围,整体呈现清新活泼、童话式的奇妙意境,这是属于孩子的创想乐园!可爱的小摆件,有趣至极,在这里学习、生活都可以变得轻松又好玩。
卧室以暖色调为主,灵活运用木色、暖灰和蓝色的搭配,打造了一个温馨助眠的空间
卫生间是家中比较隐秘的地方,一个好的卫生间可以为自己和家人带来健康与舒适。卫生间装修不能小觑,卫生间的陈设是否科学合理,标志着你生活质量的高下。
卫生间规划合理,整体规整和谐,镜柜处更是内置光源,使用十分方便。
餐厅在装修的时候可以选择一些装饰来丰富整个空间,一些屏风和小挂饰都是很好地选择,但是注意餐厅的地面不要使用地毯进行装饰,以免食物掉落后难以清理。
客厅和餐厅相通,整体空间更通透,家人之间的互动也不受阻碍,活动区域更宽敞。
餐桌上的些许绿植,自然灵动,还原生活本色
厨房装修可以选择简洁一点,主要空间足够大,做饭时候能发挥开就可以了。另外厨房要做好相应的安全防护措施,煤气罐等要放在干燥的地方,建议安装一个警报器,随时监控。当然了油烟机是必不可少的,也可以适当地添加消毒柜洗碗柜之类的。
厨房空间格局特殊,经设计师优化后就特别实用了!壁砖和小方块地砖,简单低调却不乏细节感,让做饭也成为一种享受。
简单而纯粹的家还原生活原本色彩,目之所及无一繁杂的装饰,只通过必要家具的合理设计,使家中的生活气息不断酝酿
推荐阅读
- 装修|乔迁新房3月以泪洗面!当初的不理智,连犯15个极品装修坑!作孽
- 装修|淋浴房还可以坐着洗澡,一开始很不理解,装修后才发现太实用了!
- 洗头|崩溃现场:装修的10条坑,我都替你踩扁了,请你一定要避开
- 三居室|118平现代风三居室,一个简单而纯粹还原生活色彩的家
- 家庭成员|卫生间进门洗漱台,中间马桶,里面淋浴,怎么装?有哪些设计方案?
- 洗衣房|这三款农村四合院设计图让不少城里人羡慕,父母看了也欢喜
- 马桶|把洗手台埋到墙里,卫生间一下变大了很多,美观又实用,好处多多
- 洗碗机|厨房装修不要买这两种电器,入住后就知道有多不实用了
- 组合柜|在阳台打了一组洗衣机组合柜,邻居们看到了,表示非常羡慕
- 拖把|等我有房了,厕所坚决不装马桶,洗手台也不要,学下面布置!牛
