屋主|合肥华然装饰设计师王苏梅:宜居住宅,享受生活
大咖有话说
每个人都有自己独特的生活方式,依自己所需所想,创造属于自己的家。
结识华然
家的基本目的是居住,再升华即是享受。选择华然的客户大多是二次或多次装修,我们在注重实用舒适,更注重提升生活的质感。本套享受型住宅,除了实用舒适之外,更能享受到生活的乐趣。这是屋主第二次装修,第一套房子防水性不够好,阴雨天会漏水,给屋主一家带来很不好的居住体验。所以,华然更加关注业主的需求。
客户需求
程女士家之前的房子是简欧风格,整体装修感觉很繁琐,所以这套房子程女士明确要求:
①整体设计追求简约风格,空间要开阔;
②准备一个书房,方便孩子学习和先生回家办公;
③程女士有养花的爱好,所以还需要有足够的、保证可以接受到阳光的空间,来放置程女士的花花草草;
④除此之外,程女士每天还需要准备一家人的餐食,原户型厨房面积太小不好操作,所以厨房空间也需要扩大;
⑤主卧的空间比较大,程女士希望可以利用多余的空间做衣帽间。在和设计师沟通之后,设计师对程女士需求的回答体现在设计方案上。
设计解析
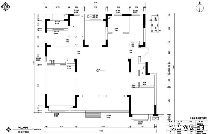
合肥华润桃源里原始结构图
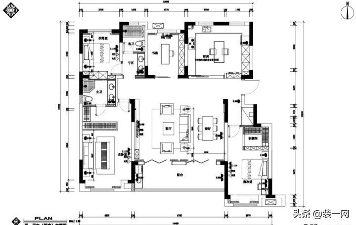
合肥华润桃源里平面布置图
改造亮点:
①入户门一侧的小次卧和厨房打通,餐厨合并做中西厨,沿东面墙体做橱柜,冰箱、蒸烤箱做成嵌入式,美观的同时增加收纳;②儿童房利用走廊外扩,多出来面积做衣帽间;③将厨房隔壁的房间用作书房,采用全玻璃推门保证充足采光;④客厅面积比较大,又是横厅布局,所有这里采用客餐厅一体式设计;⑤客厅和阳台打通,扩大客厅空间,采光充足,可放置女主人的花草,洗衣机和烘干机也安放于此;⑥利用主卧多余的空间做衣帽间隔断,避免主卫直冲卧室床;⑦客卫借北次卧门的位置改成干区,做干湿分离,使用起来互不打扰;⑧将设备平台扩进北次卧,增大空间面积,在入门处靠墙做衣柜增加收纳。
过 道
现代简约风格客厅过道装修示意图
入门即见一条长长的过道,这里是到所有空间的必经之路,亮面大理石瓷砖通铺整个过道和客厅,简洁明亮,一眼望去可以看见过道尽头的挂画,体现出屋主的品味,挂画和客厅内其他软装的色调相统一,并不会让人感觉到突兀,反而有一种清新感。
客厅
客厅空间比较大,设计时按照原户型布局为横厅,因为是客餐厅一体式设计,客厅的沙发没有采用传统靠墙的方式摆放,而是放在客厅中间,这样可以作为隔断将客餐厅区分开来,两边不同功能区使用时不会冲突。
现代简约风格客厅装修示意图
为保证客厅的宽敞,在设计的时候取消阳台门的使用,用窗帘代替移门做隔断,保证客厅活动区域的宽敞,也不会影响客厅空间的采光。阳台采光超级好,程女士的花草可以放在这里沐浴阳光,为室内增添一抹新鲜的绿意,另一边放了洗衣机烘干机,阳台中间还摆了一个小茶几,有个大阳台真的超幸福!
现代简约风格客厅装修示意图
棕色沙发与阳台的窗帘色调一致,橙色的休闲椅和沙发上的抱枕与墙画色彩协调,给人一种视觉上的享受。客厅活动区域程女士采购了羊毛地毯,光着脚踩上去也不用担心着凉,是小朋友最爱的地方。白色台面的小茶几摆放在沙发前,可以摆放果盘或者其他小物件。
推荐阅读
- 屋主|56㎡小户型老房改造,小而美的设计!
- 棚户区改造|开盘预告|合肥又有6盘要加推,均价1.39-2.54万/㎡全都有
- 武汉|合肥楼市新房火热的原因找到了
- 济南|官宣!合肥经开区物业最新排名出炉
- 股票板块-化工|合肥弘盛商业广场进度如何?官方回复来了
- 玉溪|周末逛合肥万科广场
- 合肥|开盘快讯|合肥上周8盘897套房入市,整体开盘去化70%
- 华润|合肥1月第三周楼市成交榜出炉!包河中海观园居首位
- |网传合肥阳光城项目被包河区接手 工作人员:假消息
- 合肥|盐城房价触底反弹,盐城楼市还会上涨吗?
