高低床|佩服!她把仅55㎡的家重新改造,有“4室”两卫,老破小逆袭成功( 二 )
就连侧面也不放过,定制出一块黑板墙,用来绘画与涂鸦,这里俨然成为儿童乐园,满足儿童的各种需求。
主卧室

“主卧室”连着高低床,形成休息区在一排的设计,里面仅仅就是一张床的摆放,虽然看起来十分有限,但我强烈感觉到幸福的家庭生活。
两个主人在里面放上舒适的床品,甚至在床头还有个小衣柜,用来收纳贴身衣物,可以说把实用性做到了极致。

尽管卧室之间离得很近,私密性不怎么好,但对他们而言,这是最优的解决方案,如今的卧室规划可以容纳7到8人休息,而且并不觉得很挤,甚至全利用PVC折叠门隔开,墙上挖洞造窗,让光线自由引入。
完美的起居室

这里是一家人最大的活动区,把原来的阳台和厨房全打开,形成开放式设计,整个空间豁然开朗,在中间位置摆放大长桌,以它为“C”位,四周形成无障碍的洄游动线,让居家生活更加便利。
比起传统客厅的布置,长桌替代沙发和电视更加实用,它既是一家人的用餐区,还是阅读的书房,甚至还是亲子互动与辅导作业的地方,他们更愿望称之为这是起居室,比起客厅一板一眼,起居室更加温馨,更有人性味。
就像他们说的,没有必要把家里的功能固定化,只要合理实用,贴合自己的生活习惯,舒适度并不亚于大豪宅。
但他们还是靠窗定制了小卡座式沙发,人多的时候还是很方便的,虽然没有电视功能,但坐在这里玩手机也很惬意。
卡座沙发边上就是大高柜,家里的收纳集中统一,把一些零散的生活物品存在里面,干净整洁。

灰色大高柜对着的就是多彩的书架,两个小孩小学期间,有大量的书,而这里就是最会好的收纳空间,加上玄关处的多功能房,家里的收纳十分充足。
无敌采光的厨房
打通后的厨房,台面有6米,在这里洗菜做饭,还能看见外面美丽的风景,因为没有了阳台,他们把洗烘机都嵌入进橱柜里,功能很丰富。再加上选择的集成灶,就算是小空间的开放式设计,油烟也不会到处乱飘。
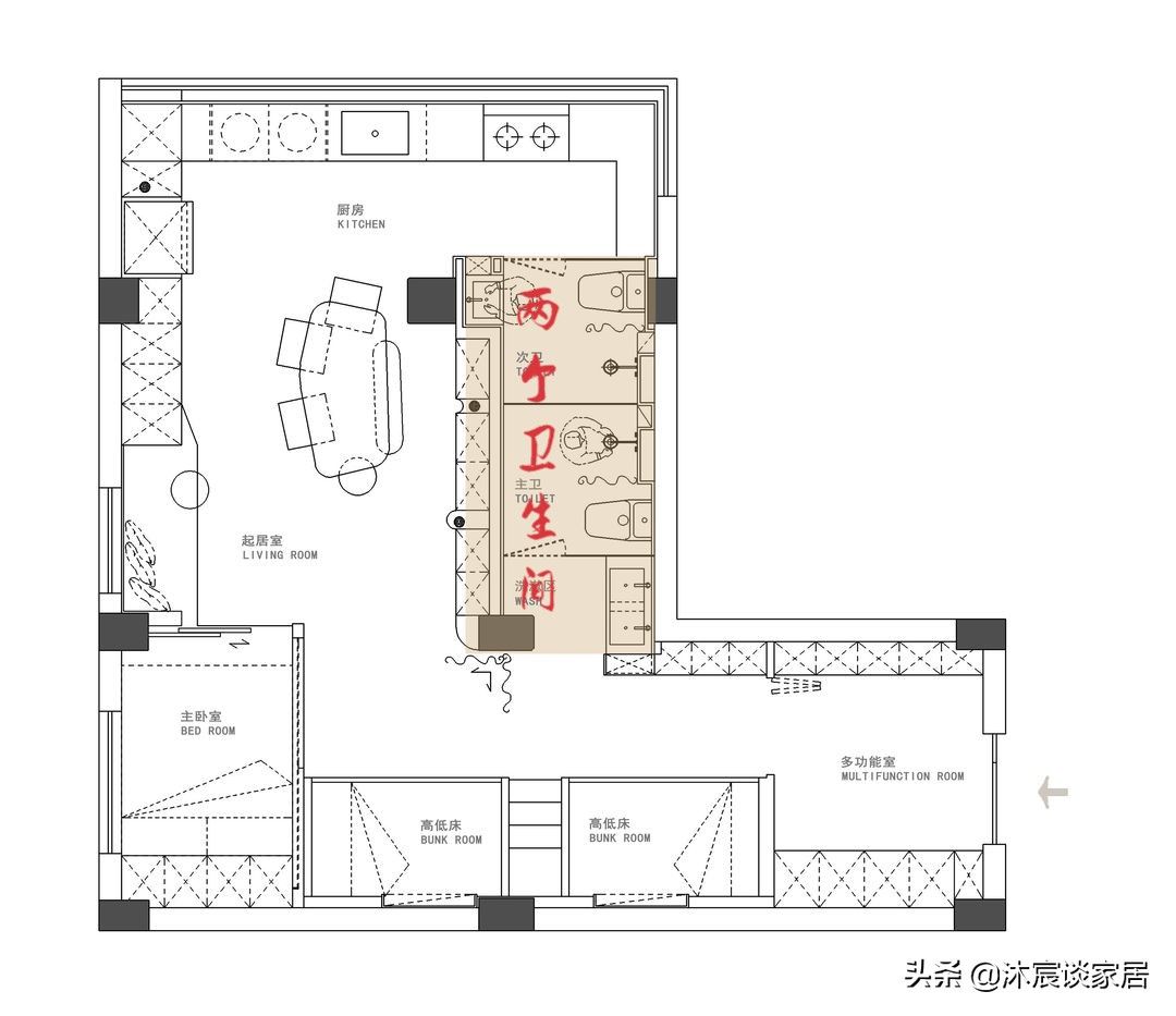
竟然还有两个卫生间


55平方米有“4居室”,竟然还有两个卫生间,不得不说他们太牛了。为了孩子定制了双盆双龙头,台面定制的人造石一体盆,非常好打理。

推荐阅读
- 床头柜|95后姑娘的“穷装”卧室火了,环保又精致,软装的力量真强大
- 胡润|窗边空荡荡有些浪费,找俩床头柜拼个卡座,“凹”字形挺舒服!
- 全屋|次卧空间小,老婆灵机一动不装“床”,孩子一眼就喜欢上了晒晒
- 床屏|芝华仕沙发质量真的不好吗?是误解?还是真理?大家可以进来讨论讨论这个品牌
- 收纳|床尾墙这个小地方,装修时容易忽视,到底该如何设计呢?
- 海绵|新年新气象,装点美丽新生活!顾家卧室床推荐,建议收藏!
- 迷你|26㎡的迷你复式公寓,一楼装榻榻米房,二楼装地台床,够时尚!
- 租赁|不限楼层高低,共享茶室可以开在大多数地方,写字楼和公寓都可以
- 竹炭|换了新的床垫后,深睡时间竟然翻了将近3倍,这床垫换值了
- 床头|越来越多人卧室不放床头柜,瞧瞧人家这么“弄”,比床头柜实用
