餐厨|现代两居,仅以黑灰两色,就打造出十足的高级感!
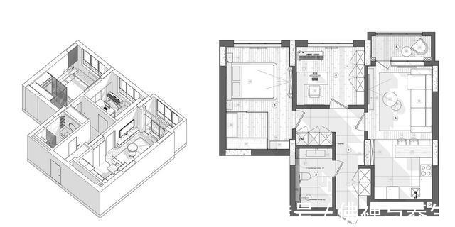
在现代设计风格中,如果要说哪个颜色最受欢迎,无疑是高级灰和高级黑了。那么,这两种颜色组合在一起,会为小户型住宅带来什么样的视觉体验呢?今天秀巢网小编就为大家分享一个来自国外设计师的作品,现代简约风格,两居,从平面图和3D图,到实景图,看看这所小宅的高级感是如何得到体现的。(全文共26张图)平面布置图&3D图
客厅&餐厨区









▲ 公共空间包括了客厅和餐厨区,二者以地面材料和吊顶高度做区分。客厅选择灰色调地毯、沙发和沙发墙护墙板,电视机、电视柜和茶几选择黑色调;餐厨区地面铺设灰色大理石瓷砖,橱柜门板也选择了灰木色,黑色吧台椅与黑色开关面板以及烤箱,与整个公共空间的黑色形成呼应。主卧





▲ 高级灰和高级黑色调继续在主卧延伸,床头背景墙与电视背景墙一黑一灰形成对比,衣帽间的玻璃门也选择了黑色,天花板的照明轨道与电视背景墙的线条全部以黑色勾勒,整个卧室空间简约而硬朗。书房



▲ 书房也没有引入别的色彩,依旧是高级灰和高级黑的天下,书房的一面背景墙,选择了半墙灰色和白色进行组合,并在护墙板顶端内嵌一根LED灯带,将书房的高级感也渲染了起来。卫生间




▲ 与其它空间相比,卫生间的用色要明亮一些,原因是暗卫,强烈的黑白对比色为这个空间带来了极强的视觉扩张力,从而也显得更为简洁利索。本案例仅以黑灰两色,就打造出十足的高级感,恰到好处地营造出了小宅的现代感、时尚感和个性感,彰显出了业主独特的审美与品位。
推荐阅读
- 现代风|168㎡现代风,带着浓郁的归属感与愉悦感
- 饱和度|173㎡轻奢新中式,古典和现代的碰撞,唯美浪漫!
- 背景墙|97㎡现代风,以时尚打造空间,以新颖突出特点
- 卫生间|129平现代美式三居室,打造出一个舒适又温馨的美式家
- 三居室|118平现代风三居室,一个简单而纯粹还原生活色彩的家
- 简单感|现实的平衡取舍,才是生活之道!143平现代风格设计欣赏!
- |73㎡复古风两居室,年轻夫妻的高品质生活
- 轻奢风|什么样的生活空间,才算得上是美好现代轻奢风,大道至简
- 楼盘|现代·森林国际城|仙北新拍现场图片,实时了解楼盘新动态
- 贵州|利落挺括,12×11米现代二层别墅,4卧2厅好格局开启全新生活
