屋主|67平北欧风小户型二居室,舍弃茶几用餐桌代替,更加清新舒适
齐家小菜今天分享的是一套建筑面积67平米的北欧风小户型二居室案例,房子的格局并不算很好,入户就是厨房,屋主为了给孩子留出一个娱乐区,只好把客餐厅给结合起来,用餐桌来代替茶几。北欧风的各种元素让这个家看起来更加清新、舒适。
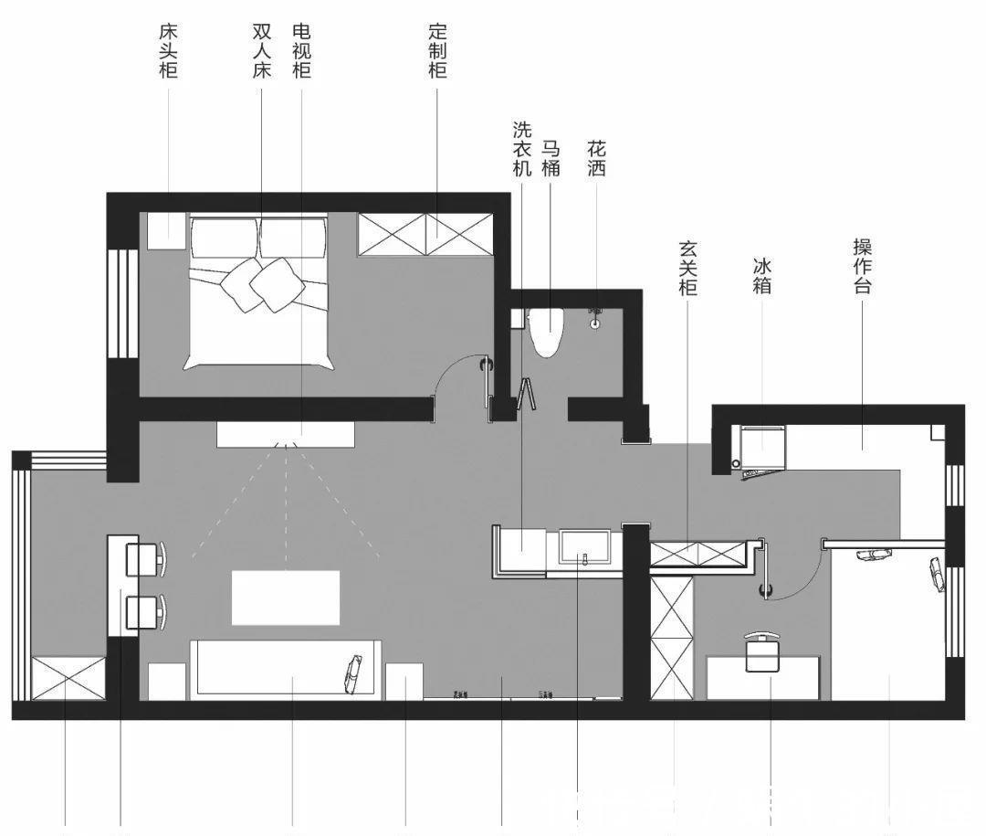
平面布置图
入户门正对着的墙面空间处做了嵌入式的鞋柜,还留了部分的空间做换鞋的。在鞋柜和换鞋凳的底部做了留空和藏光的处理,让日常使用更加方便。
入户的这个走廊空间被屋主作为厨房来使用,L形的橱柜布局方案更适合狭长的空间,黑白灰的六边砖结合青色的墙面带来了北欧风的文艺感。
在玄关和客餐厅之间是卫生间的干区,把洗手台给放在了门外,洗衣机也嵌入洗手台当中,上方刷成深蓝色的墙面让整体配色更有格调感。
餐厅的空间被改成了这样一个娱乐区,墙面充分利用起来做上创意的装饰。餐桌是选择了折叠款的,这样平时收起来放在侧边更省空间。
为了避免餐桌没地方摆放,设计师选择了客厅无茶几的设计。鱼骨拼的木地板让客厅看起来更宽敞。文化砖的电视背景墙和青色的沙发背景墙带来清新、文艺感。
客厅和阳台之间也没有做隔断门,屋主在这里摆放一个轻便的小吧台,增添了家里的情调感。阳台处做上升降式的晾衣杆,避免衣服没地方晾晒。
主卧室的床头背景墙铺贴了壁纸,壁纸的图案是不同颜色的几何图形,搭配粉色和灰色的软装,让整个卧室看起来更加浪漫和优雅。
儿童房的墙面是做了拼色墙的设计,让人感觉更有层次感。儿童房的空间比较小,把床也做成收纳款的,再加上一个小书桌,使用起来非常方便。
卫生间的内部没有做干湿分离的设计,毕竟这个空间太小了一些。白色为主的卫生间搭配一些花砖作为点缀,这样的卫生间看起来简洁又时尚。
【 屋主|67平北欧风小户型二居室,舍弃茶几用餐桌代替,更加清新舒适】齐家栗子提供更多装修资讯,喜欢我的朋友记得收藏和关注哦!(素材来源网络,无法核实真实出处,如有侵权,请直接联系齐家栗子删除。谢谢!)
推荐阅读
- 屋主|56㎡小户型老房改造,小而美的设计!
- 木纹板|装修案例欣赏:小北欧风格的居家设计,简洁的同时又不失温馨感!
- 隔断|112㎡清新北欧风,客厅砌个半墙隔出一间书房,2居变3居真实用
- 衣帽间|180㎡大平层装成北欧风,不光过道打了整体柜子,独立水吧给力
- 转角处|106㎡舒适北欧风,干净清新,舒适温馨!
- 储物空间|53平的北欧风小户型公寓,简单的色彩营造出清新感,轻松惬意!
- 木色|89 ㎡北欧风装修,低调灰+白色+木色,温情满满!
- 屋主家|人生第一套140平新房,没请设计师,效果很漂亮,女儿特别开心!
- 小户型|92平的北欧风小户型案例,大飘窗把客餐厅都连在一起
- 三居室|90平北欧三居室,自带一丝返璞归真的自然美感
