衣帽间|我家有女初长成,幸福满屋爱意足,如果可以,我想保护你一辈子!
本期案例
本案是一套简单的三口之家。业主原先想装成北欧风,在跟设计师的相互深入了解后,经过多方面考究后最终敲定美式风格。业主特地将居所定义为【睿初】,“『睿』是女儿的名字,牵系着我们的爱,『初』是不忘初心,方得始终的美好愿望”。可以看出业主对于女儿爱的深沉,也将房屋重新真正定义为家。

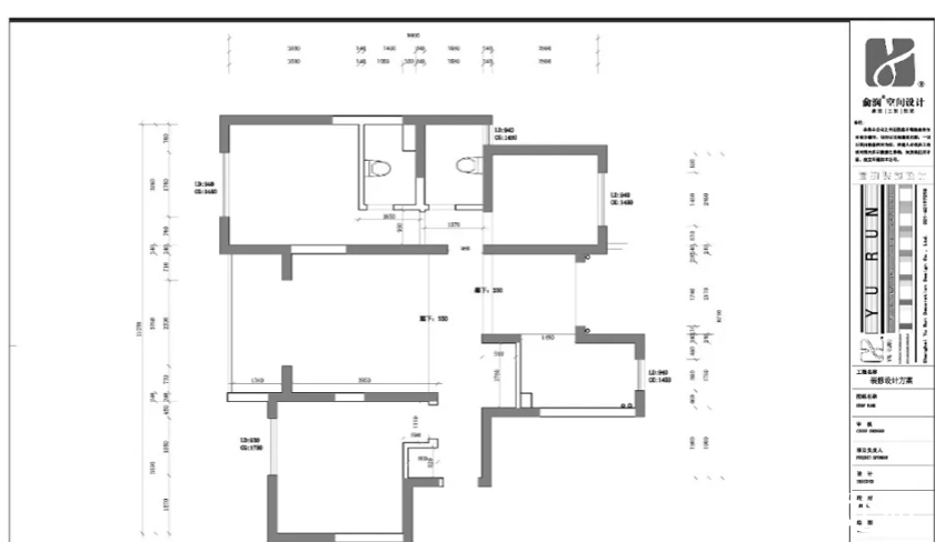
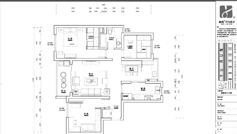
面积:90㎡
风格:美式
户型:三房两厅
预算:全包24万
装修团队:俞润空间设计
姚奇
首席设计师
(擅长风格:北欧,简约美式,新中式,日式,地中海, 现代简约)
持之以恒的学习是设计的来源,责任感是设计的原则,而灵感是设计的升华、以人为本,一切围绕着人的生活、生产活动创造美好的家。
设计亮点
1、出于一个家长对于孩子的爱,方便照顾,故将儿童房设在离主卧近的朝北次卧,放弃靠近门口的朝南次卧,改成书房;
2、朝南次卧内家具都设计成可活动式,方便孩子大了搬去独立;
3、2卫变1卫,主卫改成衣帽间。
玄关
进门玄关处打造了内嵌式的收纳鞋柜,加入壁龛可以放些日常的钥匙等物件。内嵌式的设计在保留功能的情况下也不占用过道空间。
入门处的墙壁上的各类挂式画框不仅可以成为女儿的作品墙,也能记录家庭生活的点滴,入门吊顶的镂空设计让入户空间更具层次感。
客厅
客厅的整体色调沉稳端庄,有岁月的味道。简约的设计感,米白色沙发与深色的茶几及电视柜,独具美式风格,墙上的挂画与花草摆件,无处不透露着清新的自然气息。
设计师将门洞拓宽,让客厅连接着大大的阳台,融为一体。大晴天晒个太阳,再惬意不过。原木色的吊顶与墙面的墙砖遥相呼应。
餐厅
餐厅保持着融入整个客餐厅的美式风格,设计小巧卡座和西橱的柜体,都是节约空间,收纳物品的好帮手。走廊尽头的繁花装饰画作,推门入户即映入眼帘,为全屋淡雅清新色调带来芬芳甜美的写意装点。
打造西厨式的小吧台,在有限的空间里,享受无限的乐趣。
厨房
黑白灰三色的相互融合,让整个厨房更具现代气息。L型厨房,在保证功能性的条件下最大优化活动空间。另外,设计师在朝客厅面的墙上开了一扇窗,解决了厨房的布局遮盖了客厅的光线,让整个空间更加透亮。
主卧
采光通透的主卧,深色调的家具,营造出质感的空间氛围,精选出少量的装饰物进行点缀,让每处空间都拥有着对美学的追求。
原先的主卫被设计师改成衣帽间。主卧进门位置借用卫生间的一点空间打造了内嵌式的柜体与壁龛,摆上绿植,为卧室增添了自然的气息,也增添了收纳空间。
次卧
儿童房不同于主卧,更多以白色、粉色为主色调,满满的少女气息。榻榻米加一体式的墙柜,让没有那么大的儿童房也有不俗的收纳空间。
朝南的次卧一直为业主的孩子长大准备着,在此之前可以作为书房或者会客室,安置的沙发成为主客人闲聊的不二场所。
卫生间
【 衣帽间|我家有女初长成,幸福满屋爱意足,如果可以,我想保护你一辈子!】
推荐阅读
- 心塞|5个月装修一套房,硬装让我喜出望外,结果家具一上全废了!心塞
- 地板|160㎡四居室,玄关比我家卧室都大,这才是真正的低调奢华有内涵
- 装修|空调外机万万不能这样挂墙,若不是师傅提醒,我家都装错了!
- 洗头|崩溃现场:装修的10条坑,我都替你踩扁了,请你一定要避开
- 大门|房子大门万万不能朝这地方开,师傅看了摇头,怪不得我家越住越穷
- |你还听售楼员忽悠吗?通过这些参照物,我们也可以判断楼盘情况
- 小房间|参观140㎡大婚房,朋友都夸餐边柜有档次,我却更喜欢主卧的飘窗
- 榻榻米|当初装修太愚蠢接连惨中12个装修坑,老婆天天给我甩脸子气人
- 垃圾桶|家庭主妇:厨房地柜不要全打满,空一格更实用!后悔我家装太早了
- 装修|总结我的新家装修完就后悔的37条防坑经验!记住少走弯路!
