层架|一家三口住在这素雅别致的环境中,真令人羡慕,这是怎么装饰的呢
细微的生活片段,缓缓叙述着每户人家承载的柔软温度,若说空间反映生活,对善于描绘互动场景的设计师而言,人才是日常脉络的本心。
好比以纯白、浅木与灰泥蔓延轻透无压的视野,点缀珊瑚玫粉流泻柔美气息,掺揉温厚手感的原木家具与拼布意象,实现夫妻俩对美好生活的想望,交予自然原木纪录逐渐累积的光阴痕迹,伴随四季变幻的扶疏绿意,造就一家三口的静谧天地。
天然原木具备极大可塑性,基于夫妻各自偏好简朴、柔美生活感,因此活用木质不同型态变化,转移女主人对拼布与日杂的热爱,采以织构、拼接手法,呈现玄关蓝染木纹砖、主卧抽屉格柜,同时精挑手作原木家具,借其温润扎实的手感意象,蔓延内敛温暖的氛围。
粉嫩色彩如何拿捏甜而不腻的比例?
首先会思考空间与人的互动关系拿捏比例,如玄关大多为短暂停留,因而挑选珊瑚粉壁柜与亮蓝地砖,活络入门印象,而客厅主要为交流活动空间,尽可能留白释放明亮无压的空间感,提高软件的参与占比,卧室则选用低彩灰绿、浅蓝,奠定舒眠放松的情境。
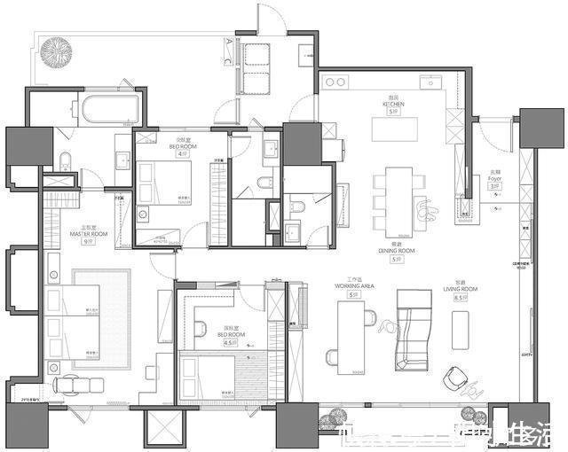
本案是位于高雄的新房,室内面积168平米,格局是3室2厅3卫
空间设计需求
1、男屋主喜爱个性与朴实水泥质感,女主人爱好日杂与柔静氛围
2、讲究建材用料,偏好自然木质的温润质感
3、正值高中的儿子,需要空间充足的作业桌面
4、拥有众多藏书、乐高与游戏卡,期望有展示与收纳空间
分空间设计分析
1.玄关设计:
揉合女主人对拼布手作的热情,玄关铺展意大利蓝染木纹花砖,任由细腻纹理蔓延迎宾之道。
基于玄关紧促且狭长,采用悬吊手法砌筑珊瑚红烤漆鞋柜,预留底层充足顺手的收放鞋履,层柜以立体线框、镂空平台提升律动变化,借以消减量体压迫感,对向纯白面墙则配衬不规则木框镜与圆挂杆,完善整合钥匙小物、梳整仪容性能。
【 层架|一家三口住在这素雅别致的环境中,真令人羡慕,这是怎么装饰的呢】得知男屋主有饲养观鱼的雅趣,悉心调低鱼缸观赏高度,从天花垂降一道双向隔墙嵌合透明水缸,同步贯穿横向木作推展为穿鞋平台,另一侧以折叠式门板隐藏灯管与层架,予以观赏、照料鱼儿的互动小天地,经由纵横有序的量体编排,框构一面波光荡漾的清澈端景。
2.客厅/工作区设计:
随着超耐磨木地板定义出无形界线,线板壁柜功能亦随之替换,柜体利用口框设计敞开一面展示墙,错落交织木质层板、黑色乐高背板,让心爱玩具模型获得妥善置放,后侧巧用10cm深度,以一道隐藏式格框拉柜强化功能,不仅井然有序陈列父子珍藏的专辑、游戏光盘,拉阖之间亦创造极具玩味空间景致。
推荐阅读
- 柳州|柳州又一家企业C位出道,实力曝光!
- 三口之家|打通阳台和客厅,100平的房子竟秒杀了200平的大宅!
- 现代简约|上海58㎡“老破小”逆天改造,一家住三代人绰绰有余
- 设计|40㎡小房也能住一家三口,玄关设计被争相模仿,丝毫不输大户型!
- 简约|90后一家四口住130㎡住宅,轻奢优雅,享受精致慢生活!
- 三口之家|买房时挑多少平米最“吃香”?售楼经理道出行情,听完确实有道理
- 操作台|78㎡3室2厅,住下一家5口,每一平米都是这样被榨干的!
- 中式|晒一家三口的新房子,150㎡中式装修,住的很惬意!
- 主卧室|她一家3口,住110㎡客厅坚持不买沙发,2个衣帽间!太舒服了!
- 家居|这位日本主妇,将一家四口的物品收拾得整齐有序,小家越住越舒心
