耐看|通风一年终于搬新家,墙面只刷乳胶漆,电视墙不造型,越看越耐看
如今比较的常见的就是北欧风和现代简约风格,好看是其中一部分原因,二是因为大多数人都有从众心理,觉得不跟着装同样的风格,好像就跟不上流行趋势一样,完全不考虑其他。今天给大家分享的这套案例屋主家就跟别人家装修不一样,她家79平米,去年完工,通风了一年,今年终于搬进了新家,全屋极简风格,墙面只刷乳胶漆,电视墙不造型,无任何复杂的装饰,显得干净利落,越看越耐看,效果很不错,其实这种极简风格也越来越受到年轻人的喜爱,当厌倦了灯红酒绿的都市生活,每天能回到一个宁静、明朗、舒适的家,谁不爱呢?下面给大家晒晒。
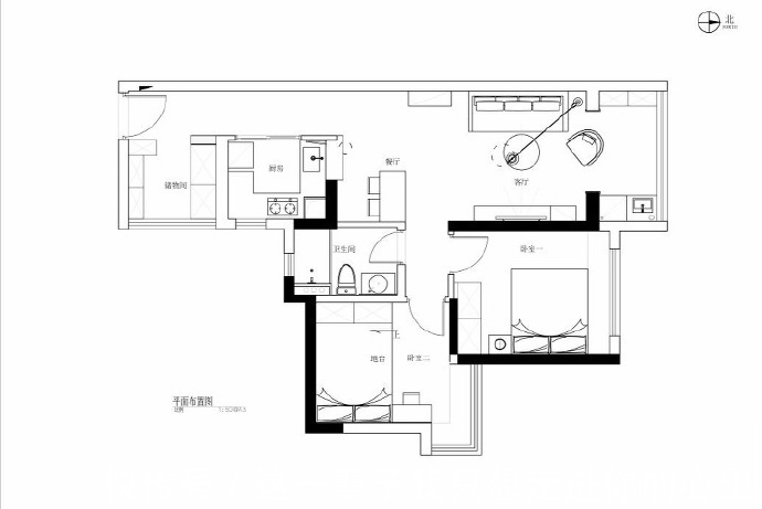
户型图
整体效果我们先看看整体效果,从大门进来依次是玄关、厨房、餐厅和客厅,客餐厅同在一个空间,可以减少面积占用,采用局部吊顶,加上灯带的配合,既不繁琐,又能突出空间层次感和温馨度。极简风格并不是大家想象当中的全屋留白,而是删繁就简,好像整个空间看起来什么都没有,其实却保留着它独有的精致。
入户、工作区入户右手边放了一个鞋柜,能够满足日常鞋子收纳,因为有窗户,所以采光很不错,利用独有的光照条件,刚好可以在窗户边打造一个工作区,方便平时在家工作学习。
黑板墙、过道墙上的黑板墙贴很醒目,上面是一家人的涂鸦,看起来温馨有趣,可以记录下每天的安排,当成备忘录使用,入户正对面有一个狭长的过道通往客厅,顶部装了筒灯辅助照明。

餐厅安排在一个墙角,方形餐桌一点都不占位置,餐桌椅都是高脚细腿结构,造型简单,显得特别轻盈灵活,原木餐桌搭配绒面餐椅和白色吊灯,散发出满满的格调。厨房窗户外还做了一个摆台,方便外面的人把做好的菜直接端到桌子上,减少动线距离。
厨房采用U型布局,储物充足,操作便捷,将空间利得很好,冰箱放置于门口,不占位置,拿取食物也比较方便,白色橱柜搭配原木台面,打造出一个简洁干净的厨房环境。

客厅采用局部吊顶,在灯带的作用下,提升了空间轮廓感,同时又不会感到厚重压抑。沙发墙只刷了灰色墙漆,没有任何造型或者装饰画点缀,搭配同色系沙发,显得十分干净利落,软装就比较个性了,比如地上的针织矮凳,还有沙发旁的藤编茶几,体积轻巧,方便移动,让看似极简的空间多了一些温度和趣味性。
对面电视墙也不做造型,直接保留的大白墙,留出了更多想象的空间和可能性才是极简风的特点,胡桃木电视柜很有质感,在白墙背景下,通过一深一浅的对比,空间层次感更佳,旁边放了一株绿植,让家里看起来更有绿意和生机。
卧室
推荐阅读
- |一年涨了3成!纽约市一卧租金涨幅惊人
- 乳胶漆|等买了房,就照他家这么装,全屋不吊顶,不做背景墙,越看越耐看
- 魔都|调控频出下的魔都中介分化:有人一年不开单,有人年入70万
- 房价|26岁小伙一年卖掉350套房,赚3200万
- 房贷利率|封顶快一年了,鸿通,绿地238米何时能完工
- 住宅|2021这一年!你最关心的12件楼市大事
- 灯源|53岁阿姨独居33㎡公寓,房屋设计让人赏心悦目,高级又耐看!
- 收纳|一年卖30亿!呼和浩特《城市年度成交榜》金地江山风华喜提榜首
- 灰尘|新房住一年遗憾,尤其是这11个地方装错了,要后悔
- 客厅|新的一年开始“断舍离”!我决定扔掉这4种东西,过极简的生活!
