承重墙|跳出风格化的温馨
户型:四居及以上 风格:现代简约 面积:125㎡ 装修方式:全包 装修工期:100天 位置:保利西悦湾 造价:38万元
方案说明
在这个喧嚣的城市里,拥有独属自己的一方净土显得如此奢侈;干净温馨的居家生活,安逸自在的阳台休闲,我和他偶尔下厨的愉悦,这样的生活不失为一种惬意。简单的幸福,成为很多人的追求。本期主人公可以说是幸运的,也可以说有规划的人生让她实现了自己的人生追求,在风华正茂的年纪实现生活与事业的双美满。事业的劳累,使她有过焦虑迷惘,常年的漂泊开始希望有家的稳定,过上有质量的稳定生活,可以安心买自己喜欢的摆设和家具。对家有向往的概念和期望中的生活方式却不知如何实现,因此她找到了XY空间设计成为她的造梦者,满足她对家的所有期待。首先我们确定的一点是,这个家以简约风装扮
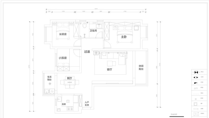
户型图
房屋原始结构:3房2厅2卫2阳台
1、卫生间正对入户门(风水问题);
2、三个房间开间较小,收纳问题突出;
3、但是房屋客厅开间较大,且南北通风;优劣并存的毛坯房,究竟会在设计师手下发生何种变化?
新家改变:
1、虽然业主目前是两口之家,但考虑到家庭生活的长久性,设计师建议保留三房的生活布局;
2、把2个卫生间合并为1个,卫生间大了很多,实现更舒适的干湿分离;同时通过借用两个卫生间的空间,为两侧卧室腾出衣柜空间,解决原本开间较窄难以满足生活储物需求的问题;
3、卫生间墙体重砌,通过门位移的方式,合理避开与入户门正对的尴尬;
4、玄关位置无鞋柜,将厨房墙体往内推进30cm,腾出了鞋柜空间;
5、客厅、餐厅两侧门垛与门洞上方敲到混凝土承重墙位置,让客餐厅采光度更大;
6、客厅空间较大,背景墙就有将近5米,做超大电视背景柜,扩大空间优势还拥有较理想的收纳柜;
7、功能房做榻榻米,加大家里的收纳
【 承重墙|跳出风格化的温馨】玄关
入户第一感觉就是简单温馨,明亮的灯光从天花洒落,旁边矗立到顶的玄关柜散发出原木清新,搭配灯带设计的小细节,提升生活幸福感。
整面到顶、底部与中置留空设计,为生活的琐碎提供归属,柜门与墙面色彩相融,通过黑色把手与原木框架饰条的提亮,凸显精致感。
客厅
得益于南北通透的优势与房子大开间客厅的布局,房子原本采光通风就很好。设计师决定扩大这一空间优势,将客厅、餐厅两侧门垛、与门洞上方敲到混凝土承重墙位置,让客餐厅采光度更大。搭配无主灯设计的自然,800*800仿古地砖的通透,将整个客厅空间感扩到最大。
落地窗拆除,阳台封窗处理,利用生活阳台一侧做柜子,收纳功能再+1。简约的硬装设计,自然环保的桌椅茶几,带上几株富有生命力的绿植,小脚翘到茶几上,陪衬着窗外美景,度过悠闲的周末时光。
客厅空间较大,背景墙就有将近5米,做超大电视背景柜,美观大气还拥有较理想的收纳空间,归纳生活的零零碎碎,清爽干净的生活态度。
推荐阅读
- 背景墙|97㎡现代风,以时尚打造空间,以新颖突出特点
- 装修|空调外机万万不能这样挂墙,若不是师傅提醒,我家都装错了!
- |外墙内保温如何施工?现场示例!萌新必看!
- 她家148平米,进门就被玄关迷住,不做吊顶跟背景墙,阳台超漂亮
- 墙面|过道能''挤''出空间 5种方式帮你充分利用每一寸,档次蹭蹭上涨
- 马桶|把洗手台埋到墙里,卫生间一下变大了很多,美观又实用,好处多多
- 乳胶漆|看她家装修,比样板房还漂亮,电视墙特别实用,值得做参考!晒晒!
- 餐厅|这套新房真有创意,客厅改主卧,电视背景墙后面设吧台!
- 交易|开发商送的大露台,沿墙砌20米长花池,种花种菜,不要还能拆掉!
- 乳胶漆|等买了房,就照他家这么装,全屋不吊顶,不做背景墙,越看越耐看
