插座|越来越多人卫生间不装洗手台了,学别人这样设计,聪明!
越来越多人卫生间不装洗手台了,学别人这样设计,聪明!
说到洗手台,最常规的操作就是装在卫生间里面。但是,大家有没有想过,如果把洗手台移出卫生间,装在其他地方或许更方便一些?
日子过久了发现,一体式的卫生间用起来确实不太方便,把马桶、淋浴和洗手台放在一个空间里面,导致每次只能一个人使用。如果家里人多,早高峰和晚高峰还要排队。另外,卫生间没有干湿分离,一洗完澡,地面全湿了,时间久了就容易出现难以清理的霉斑和水垢。
洗手台并不是想装哪里就装哪里,还是会受到上下水的限制,不能距离太远。其次,生活动线要合理,最好离厕所或者过道近一些。
洗手台装在玄关
她家玄关原本很小,改造之后,将旁边的房间并入玄关,设计成一个带有土间的大玄关,这个土间除了放鞋,还可以将脱下的外套、帽子和包包挂在这里。
那么,她家洗手台之所以能放在玄关,一方面是上下水的位置不成问题,另一方面离厕所和卧室都很近,相比家里其他地方,把洗手台设计在这里是最方便最合适的,一回家就能洗手,避免把外面的细菌带进起居室。
如果想把洗手台安装在玄关附近,台面最好不要堆满东西,否则显得很乱,选择镜柜或者带有抽屉的柜子,把干燥的东西藏进柜子里,牙刷可以放在简易的牙刷架上。
洗手台装在过道旁
如果房子户型像这家一样,从入户门到客厅有一条长走廊,卧室就在走道两侧,可以将洗手台设计在走道旁,距离卧室和卫生间都很近。
在装修的过程中,把洗手台安装在墙体之间的凹处,这样可以遮挡住一部分视线。如果没有隔墙,也可以设计在柜体旁边,效果是一样的。
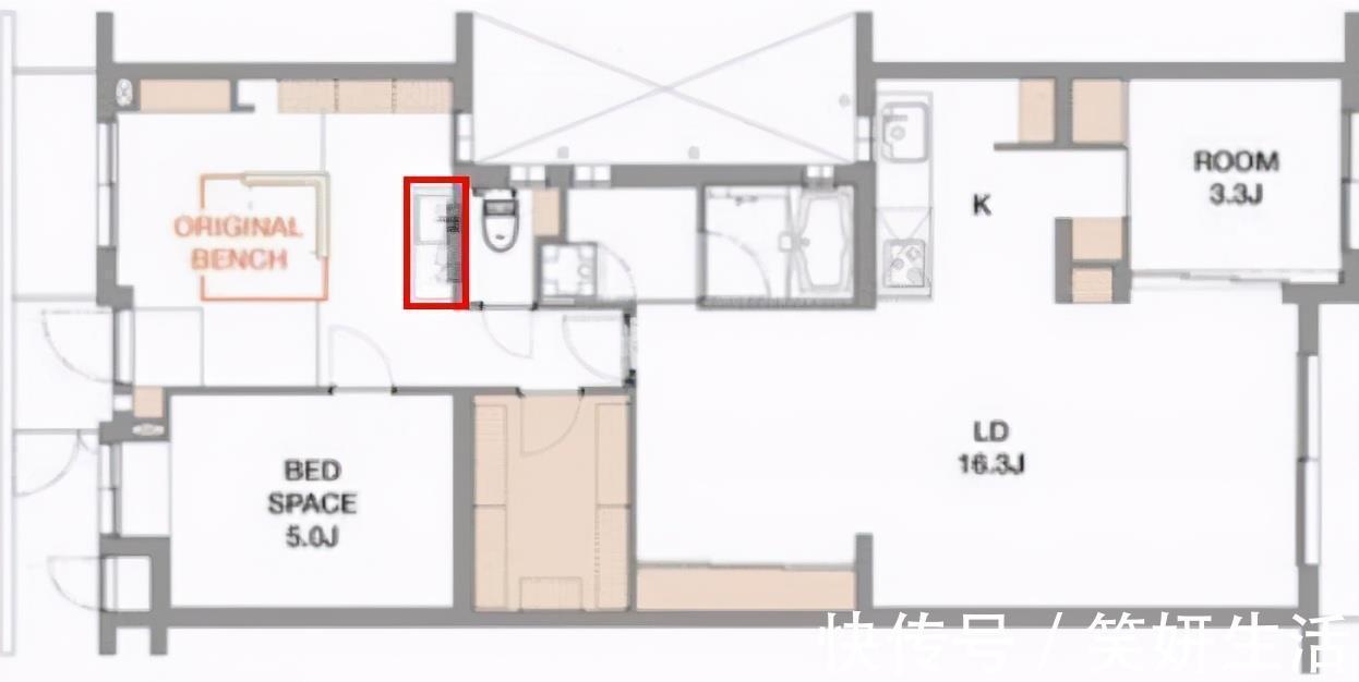
洗手台装在卫生间外面
现在最常见的做法就是把洗手台移到卫生间外面,仅隔着一堵墙。至于卫生间里面,还是把马桶和淋浴放在一起,有的用玻璃隔断,有的用浴帘隔断,还有的不做任何分离。
如果卫生间外面预留的空间比较大,最好把洗衣机安装在洗手台旁,这样洗澡换下来的脏衣服可以直接丢进洗衣机里,比放在阳台上要方便许多。
采光比较好的话,安装一根隐形晾衣架,洗好的衣服就近晾晒,家务效率会更高。
除此之外,洗手台的设计还要注意以下这些方面。
选择带有开放空间的镜柜
镜柜确实很实用,可以把一些护肤品和洗漱用品收进柜子里,整体看起来就比较整洁。
推荐阅读
- 大悦城|家里这两个地方别漏了贴瓷砖,许多人为了省钱,入住就后悔了
- 房子|越来越多人用这“两个方法”装修房子,可升值十几万!
- 插头|老公花了100块钱把家里插座装成这样的,再也不用拔插头了,真是太机智了
- 明贴|房子装修一定要装这几样东西,好多人没听劝,后悔入住才察觉
- 实用|衣柜太占地方?越来越多人这样装衣柜,好看实用还省地!
- 装修|房子装修一定要装这几样东西,好多人没听劝,住进去才知道后悔
- 阳光房|越来越多农村人把露天院子封闭成阳光房,农村又一景,美观又实用
- 家用|家用电线,一根4平方的,一根2.5的做插座可以不?
- 淋浴房|越来越多人卫生间不装马桶了,如今流行这样设计,实在太聪明了
- 装修|越来越多人阳台不装推拉门了,如今流行将阳台包进客厅,太聪明了
