农村别墅|两套双拼农村别墅,造价35万左右,20年后也不会过时的款式
有很多两兄弟打算建双拼别墅的,预算35万左右,又希望房子尽可能的美观和实用,不需要太过复杂,普通的农村施工师傅就能搞定,我想如果你需要建一栋这样的房子的话,下面这两款双拼户型应该很适合你。
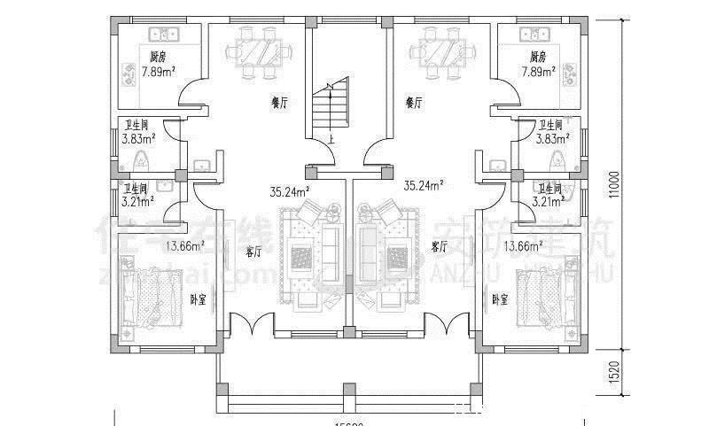
图纸编号:AZ311
开间:15.6米
进深:11米
占地面积:193平方米
建筑面积:387平方米
层数:2层
结构形式:框架结构
主体造价:35万左右
这栋二层欧式别墅美观大方,外立面采用黄色真石漆进行铺设,灵动的人字形屋顶、活泼的蓝色外观、简约的米黄色线条,为我们诠释的便是这自由洒脱的田园之美。
一层:客厅、餐厅、厨房、卧室、2卫生间。
进门宽敞的客厅与餐厅相连,一层的卧室带有独立的卫生间,比较适合腿脚不便的老人居住。厨房单独隔离有效的减少油烟的逸散。客厅到餐厅的布局可以显得屋子非常的空旷。
【 农村别墅|两套双拼农村别墅,造价35万左右,20年后也不会过时的款式】
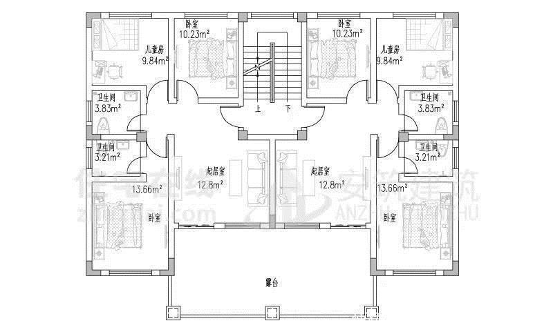
二层:起居室、3间卧室、2间卫生间、露台。
二层三间卧室左下角的那间有独立的卫生间可以设置为主卧,左上角就是儿童房,也比较方便照顾一下小孩子。起居室临近大露台通风、采光比较好。
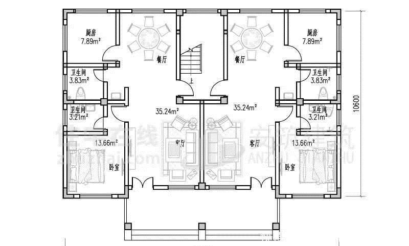
图纸编号:AZ116
开间:15.6米
进深:10.6米
占地面积:187平方米
建筑面积:369平方米
层数:2层
结构形式:框架结构
主体造价:32万左右
此款别墅是中式双拼户型,一层外墙采用灰色面砖,二层用白色真石漆喷饰,屋顶也是用的灰色屋面瓦镶嵌,显现出别墅的整体统一性。斜坡面屋顶的设计是与别墅整体的中式风格相搭,展现出了中式建筑的英气和端庄。正面的棕色木质护栏为别墅的外观增添了一处别致和用心的设计。
一层:客厅、餐厅、厨房、卧室、2卫生间。
一层入户是客厅,客厅一侧是一间带有卫生间的卧室,厨房和餐厅在北侧,餐厅北侧有开设窗户与正门相对,这样使室内南北通透。
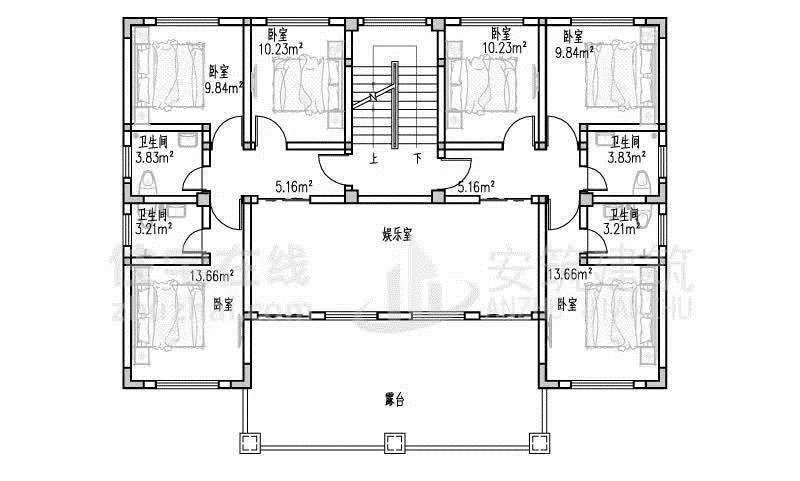
二层:娱乐室、3卧室、2卫生间、露台。
二层设有三间卧室,南面有一个共用的大面积露台,是两家人增进感情的地方,偶尔的相聚更能保障家人之间的感情。
推荐阅读
- 建房子|面宽11米, 进深16.5米的农村三层别墅, 前后有花院还带车库, 完美!
- 别墅|参观亲戚上海的豪宅,别墅硬是住成农村房,真是糟蹋了好房子
- 购房置业|今年起,农村老家的老房子,统统按照“新规”处理,子女提前知晓
- 修建|精选10套三层户型图纸,占地面积均不足百平,尤其适合新农村修建
- 上海市|2022年农村人要“享福了”?实行按户补贴,跟村民们的房子有关
- 洗衣房|这三款农村四合院设计图让不少城里人羡慕,父母看了也欢喜
- 购房置业|农村建新房就选这套四层别墅,占地100多平,8间卧室人人都有地睡
- 别墅|土豪农村盖大别墅,人人羡慕,如今却成为全村人眼中的大笑料
- 别墅|买不起别墅,买了一楼带30㎡院子的房子,入住两年多,后悔了吗?
- 贵州|利落挺括,12×11米现代二层别墅,4卧2厅好格局开启全新生活
