地下车库|武清大规模上新,4期规划预容纳1474人!
近日,武清区开启了大规模上新“活动”,本次规划涉及了4期地块的规划,虽为4期但都是一家房企开启的更新规划模式,相信后期会一起面市。而本次开启的4期规划总建筑面积申报指标为74257.69㎡,总住宅建筑面积申报指标为47645.33㎡,总配套建筑面积申报指标为4855.36㎡,总非经营性建筑面积申报指标为21757㎡。
据百房资讯小编了解,本次规划是由碧桂园开启的项目规划,分别被命名为云河苑、云溪苑、云江苑。其中云河苑开动了两期规划。本次规划的四期项目预计会有526户,预容纳1474人。具体详情我们一起来看看吧。
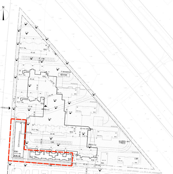
云河苑一期建筑更改设计方案
该项目本次规划主要以7号楼建设为主,以及配建一的建设。其总建筑面积申报指标为6199.96㎡,其中住宅面积申报指标为3772.68㎡,配套建筑面积申报指标为2427.28㎡。从申报指标上可以看出,该项目一期规划主要以住宅+配套建设为主。
该项目容积率本次申报指标为≤1.97,建筑密度为47.06%,绿地率≥22.85%,绿地面积≥719.02㎡。
本次规划的7号楼到顶6楼,以洋房产品为主,预计会有36户,预容纳101人。而配套建设方面主要以配建一为主,会建设文化活动、居委会、社区卫生服务站、邮政所以及商业服务网点等。
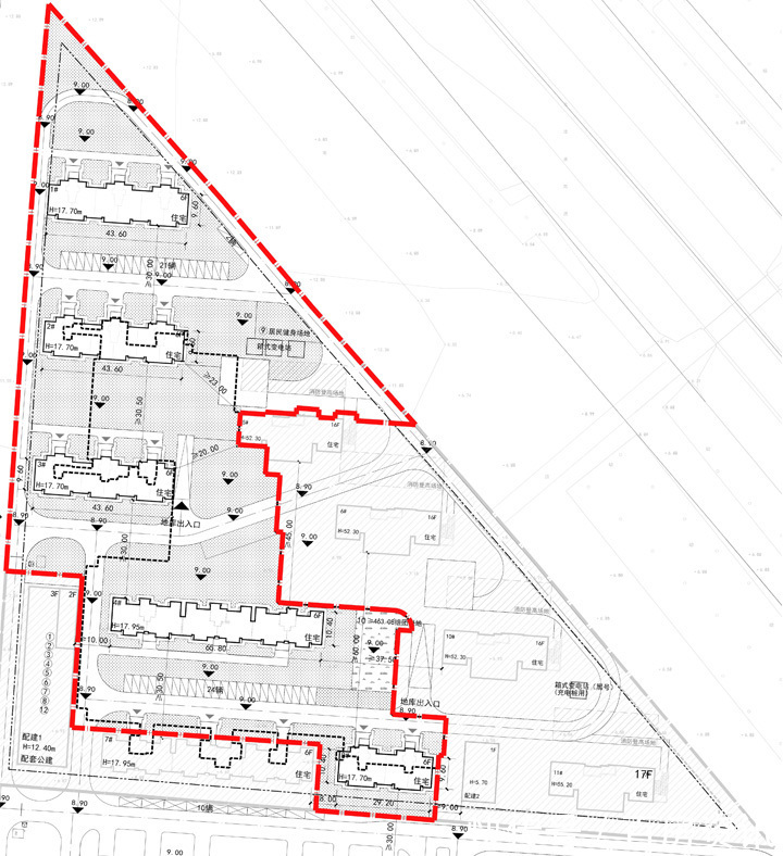
云河苑二期建筑更改设计方案
该项目本次规划主要以1-4号楼、8号楼以及地下车库一的建设为主,总建筑面积申报指标为22349.5㎡,其中住宅面积申报指标为14149.5㎡,非经营性建筑面积申报指标为8200㎡。
该项目容积率本次申报指标为≤0.81,建筑密度为14.41%,绿地率≥49.51%,绿地面积≥8684.59㎡。
【 地下车库|武清大规模上新,4期规划预容纳1474人!】
本次规划的共会建设5栋楼,都以6层到顶的洋房产品为主,预计会有168户,预容纳471人。而非经营性建筑配套会有居民建设场地和组团绿地的建设。
云溪苑一期建筑更改设计方案
本次该项目参与规划的有9号楼、9A号楼和配建一的规划,该规划总建筑面积申报指标为6752.03㎡,其中住宅面积申报指标为4323.95㎡,配套建筑面积申报指标为2428.08㎡。
该项目容积率本次申报指标为≤1.24,建筑密度为30.36%,绿地率≥20.82%,绿地面积≥1138.6㎡。
本次规划的共会建设2栋楼,都以6层到顶的洋房产品为主,预计会有48户,预容纳134人。而非经营性建筑配套会有居民建设场地、组团绿地社区卫生服务、居委会等常规社区配套建设。
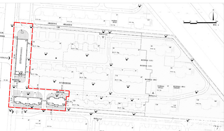
云江苑二期建筑更改设计方案
本次该项目参与规划的有1-4号楼、8号楼、12-14号楼以及地下车库的规划,该规划总建筑面积申报指标为38956.2㎡,其中住宅面积申报指标为25399.2㎡,非经营性建筑面积申报指标为13557㎡。
该项目容积率本次申报指标为≤1.24,建筑密度为30.36%,绿地率≥20.82%,绿地面积≥1138.6㎡。
本次规划的共会建设8栋楼,其中两栋楼7层到顶,六栋楼5层到顶,都是以洋房为主要产品建设的。预计会有274户,预容纳768人。而非经营性建筑配套会有居民建设场地和组团绿地的建设为主。
推荐阅读
- 建房子|面宽11米, 进深16.5米的农村三层别墅, 前后有花院还带车库, 完美!
- 地板|英国夫妇翻新旧屋意外发现地下室,自己动手改造成小型游乐园
- 无锡|晒晒我的农村别墅婚房!主卧50平,还有家庭影院和地下游泳池
- 南京|南京一业主卖了房子留下地下室,买方4年半后才知晓,起诉索要
- 地下车库|开始前期工程!洪星地产新项目——御景华宇最新动态直击
- 地下车库|“限高令”下,廊坊多层、小高层住宅将大热
- 农村|三层农村自建房户型图设计,带车库,一层带多少间卧室才算合适
- 回乡|6款三层农村别墅,带车库30万起,回乡建房有面子有里子
- loft|开发商地下车位出售合法吗
- 别墅|别墅地下室污水排放解决方案
