衣帽间|79平现代风二居室,休闲小阳台+独立衣帽间,一点也不输大户型( 二 )

采用U型的橱柜布局,电器都做嵌入式设计,充分利用空间
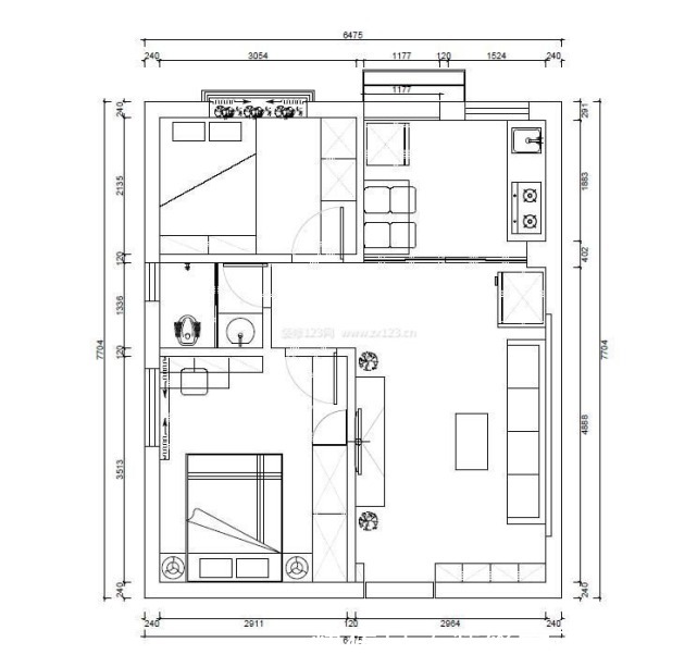
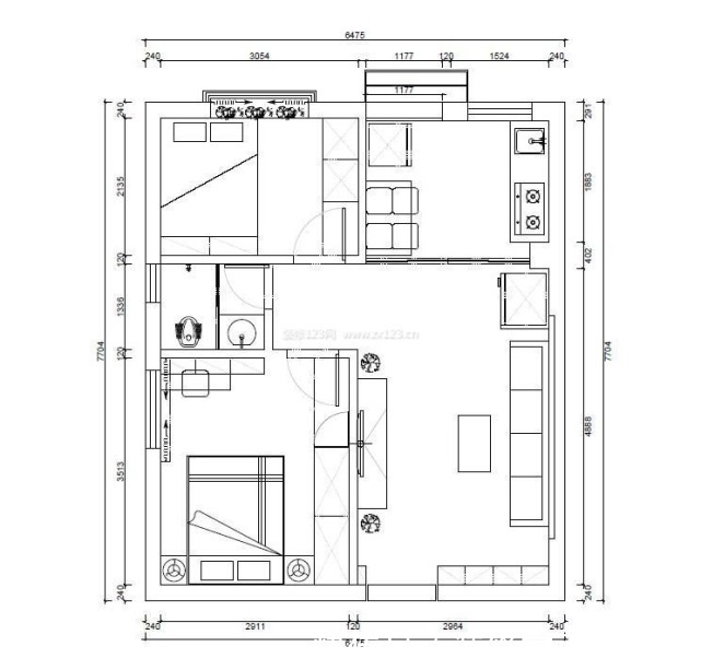
【户型图】一室一厅的格局,整体选择现代简约风格设计,装修完工后不仅宽敞明亮,还有休闲小阳台+独立衣帽间,一点也不输大户型!
推荐阅读
- 现代风|168㎡现代风,带着浓郁的归属感与愉悦感
- 饱和度|173㎡轻奢新中式,古典和现代的碰撞,唯美浪漫!
- 背景墙|97㎡现代风,以时尚打造空间,以新颖突出特点
- 卫生间|129平现代美式三居室,打造出一个舒适又温馨的美式家
- 三居室|118平现代风三居室,一个简单而纯粹还原生活色彩的家
- 郑州|买房月供曝光!郑州最新平均工资8694元,撑得起房贷么?
- 石家庄|144平的面积,无人值守棋牌室,这是如何做到的?
- 简单感|现实的平衡取舍,才是生活之道!143平现代风格设计欣赏!
- 她家148平米,进门就被玄关迷住,不做吊顶跟背景墙,阳台超漂亮
- 修建|精选10套三层户型图纸,占地面积均不足百平,尤其适合新农村修建
