形态|120平现代风三居室,转化为空间形式与生活形态的崭新姿态( 二 )
厨房间以灰色的墙面,白色柜体门板搭配简单层色
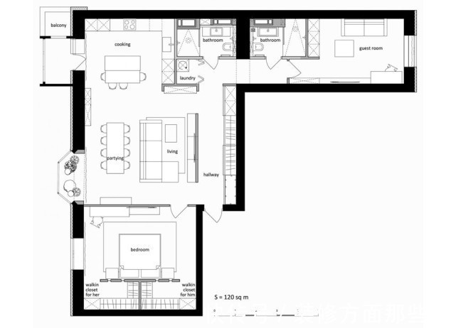
【 形态|120平现代风三居室,转化为空间形式与生活形态的崭新姿态】【户型图】当整个世界都在为了引人注目而变得花枝招展,拥有一颗平常心,保持简单和纯粹,或许反而会成为那个与众不同
推荐阅读
- 卫生间|129平现代美式三居室,打造出一个舒适又温馨的美式家
- 三居室|118平现代风三居室,一个简单而纯粹还原生活色彩的家
- 郑州|买房月供曝光!郑州最新平均工资8694元,撑得起房贷么?
- 石家庄|144平的面积,无人值守棋牌室,这是如何做到的?
- 简单感|现实的平衡取舍,才是生活之道!143平现代风格设计欣赏!
- 她家148平米,进门就被玄关迷住,不做吊顶跟背景墙,阳台超漂亮
- 修建|精选10套三层户型图纸,占地面积均不足百平,尤其适合新农村修建
- 南通|拍卖成功!江苏南通一处197平住宅192万成交!
- 购房置业|农村建新房就选这套四层别墅,占地100多平,8间卧室人人都有地睡
- 现代简约|青岛房价不是低洼地了,房价高达1.6万一平
