面积|80平小跃层的华丽变身,面积虽小功能齐全,让家充满独特的魅力
80平小跃层的华丽变身,面积虽小功能齐全,让家充满独特的魅力
今天和大家分享的这个房屋是一个使用面积只有80平方米的小跃层,目前家里除了业主夫妻两个人以外还有他们养的一只小猫,这个房屋是属于顶楼带有阁楼的跃层,只要利用的好家里的面积还是比较充足的,装修的时候业主也和设计师提出了自己喜欢的设计风格和对于新家的需求了,一个让人满意的家,一定要包含功能性和颜值,通过和业主的沟通,设计师也确定了最后的装修方案,实现了小跃层的华丽变身,面积虽小但功能齐全,让家充满了独特的魅力。
房屋户型:三室
房屋面积:80平方米
装修预算:30到50万元
所在城市:重庆
设计师:李文伟
主要建材:大理石、凿面石、铁件、实木皮、灰镜、喷漆、手刮木地板、灰玻璃、进口磁砖120x60、木纹砖、装饰板
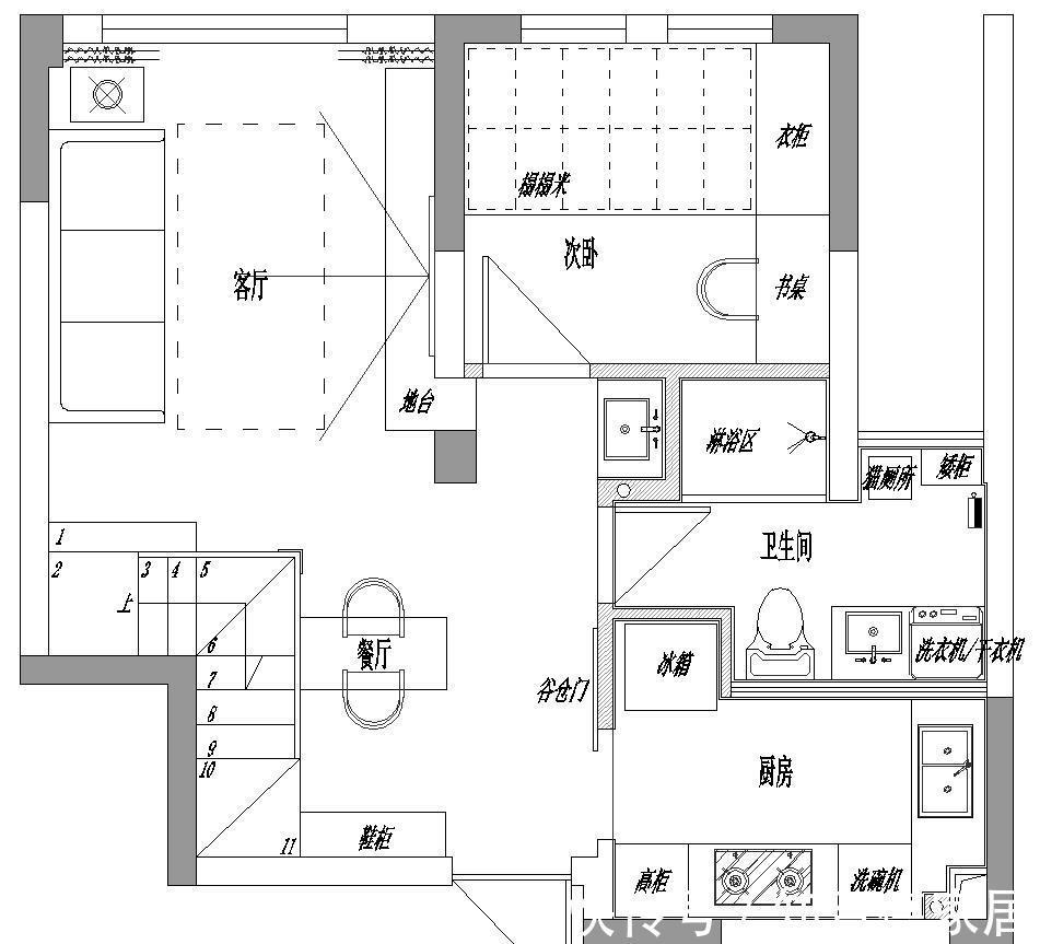
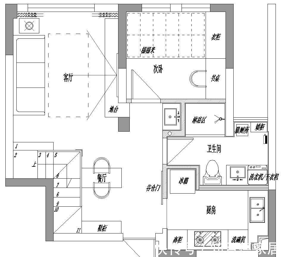
【户型图】
这个房屋属于跃层带有阁楼的结构,只要利用好家里的空间还是很宽敞的,唯一的缺点就是阁楼是斜面的屋顶,在装修的时候需要对屋顶做出一些调整和规划,设计师也是利用了这个斜面屋顶为业主打造了一个私密甜美的休息空间。
【客厅】
设计重点:清新文艺风
客厅设计在了一楼的位置,选择了灰色的地砖和白色的墙壁乳胶漆,简约风的沙发和茶几都是现在年轻人喜欢的款式,简单大方还带着一些文艺的小清新,平时打理和养护家具也会很方便。

墨绿色的窗帘搭配浅色系的抱枕,随意摆放的空调毯也体现出了一种慵懒的舒适感,家里的小猫也很听话,这样两人一猫的生活也是现在很多人喜欢的状态吧。
房屋的女主人也是一个很文艺浪漫的人,家里的绿植和装饰品都是女主人自己买回来的,和整个房间的装修风格很搭配,家里不仅要有颜值,更要有温度和用心。

【餐厅】
设计重点:异形储物柜
餐厅只是在靠近楼梯的位置摆放了一个简单的小餐桌,正好可以满足两个人的三餐需求。
餐桌旁边就是家里的楼梯了,设计师也借助这个位置定制了一个储物柜,增加了家里的收纳空间。
【厨房】
设计重点:浅色系空间
厨房整体都是浅色的设计,干净纯净的颜色让厨房看着更为整洁,做饭的时候心情也会好很多。


【卧室】
设计重点:定制床架
卧室设计在了楼上,因为层高的问题选择了定制的床架,可以更贴合日常的生活习惯,加上温暖的灯光,就构成了一个浪漫温馨的休息空间。
推荐阅读
- 石家庄|144平的面积,无人值守棋牌室,这是如何做到的?
- 修建|精选10套三层户型图纸,占地面积均不足百平,尤其适合新农村修建
- 成都|“房产税”快来了?专家提出“免征标准”,超出面积要交纳1.2万
- 李沧|农村建房不能超过几层?面积是怎么规定的?农村建房的流程及条件一览
- 收纳|这8个位置装修记得装柜子,收纳面积增加20㎡不是问题!
- 户型|北漂夫妻买下24㎡婚房,柱子4米宽,窗台就占户型面积一半
- 衣帽间|退休阿姨晒出自己的新家装修全屋大面积护墙板造型,温馨有个性
- 公摊面积|什么条件有资格说自己是上海中产?
- 租赁|买不起别墅住复式楼也过瘾,买套60㎡跃层LOFT装完比别墅还奢华!
- 开工|统计局:2021年北京房地产开发企业房屋新开工面积1895.9万平
