黑白灰|最高级的装修,不是断舍离,是极简主义,以简驭繁,诠释生活态度( 二 )

不仅各个空间的材质需要和谐统一,设计风格、色彩也要统一,整体空间的连贯性和整体才会更强,才能达到极简的视觉效果。

2.关于极简的生活气息
很多人不愿尝试极简风,是因为觉得极简主义设计太空了,没有生活气息。但相反的是,极简设计中,主张\"藏而不露\"\"先藏后简\",为了整体美观效果,所以多余物件通通都要收纳起来。
顶天立地的无把手柜子,将极简风诠释的淋漓尽致,看似表面空无一物,但实际上是整墙的收纳,只要空间利用好,收纳就不成问题,更不用担心没有生活气息~

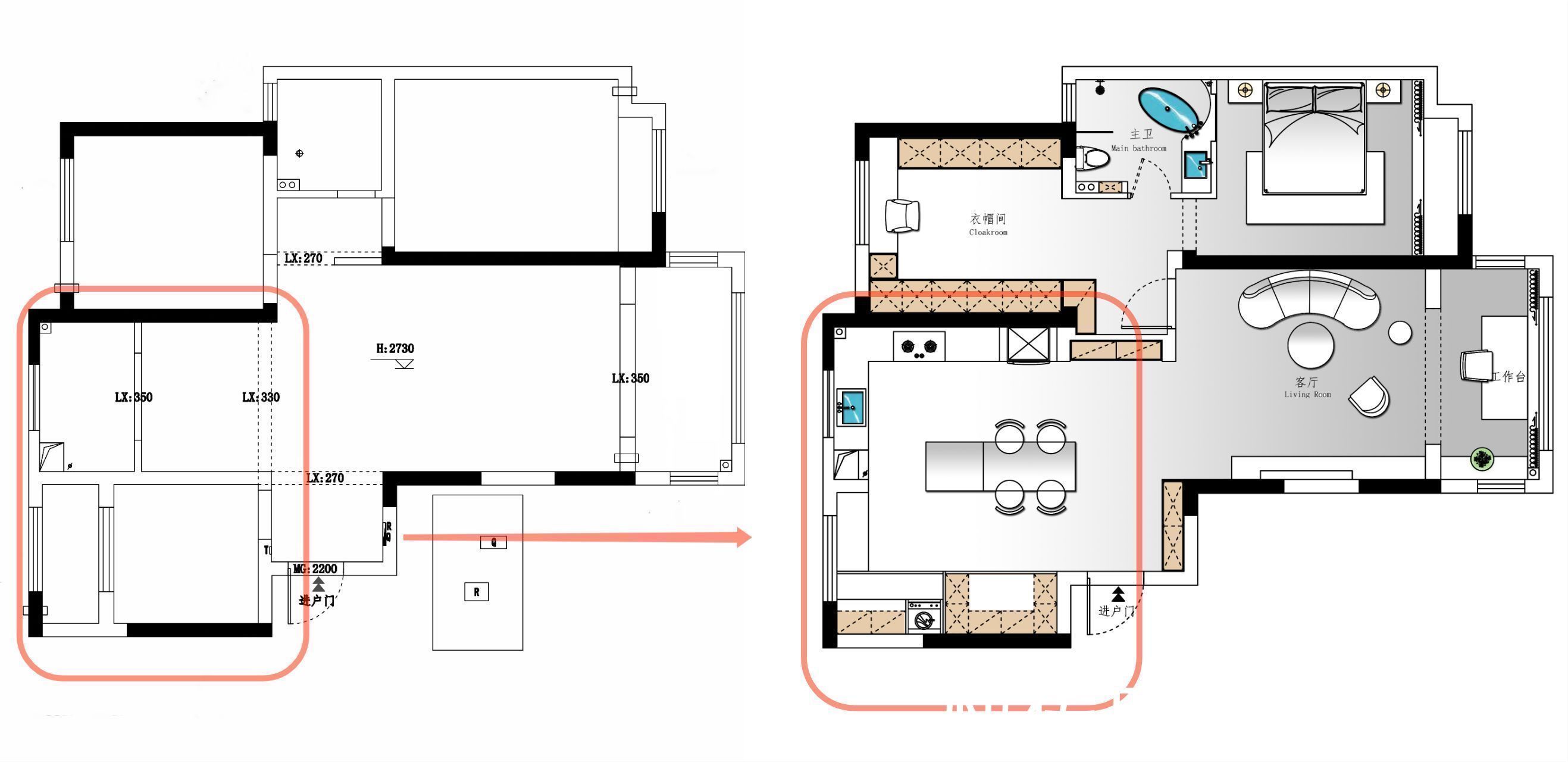
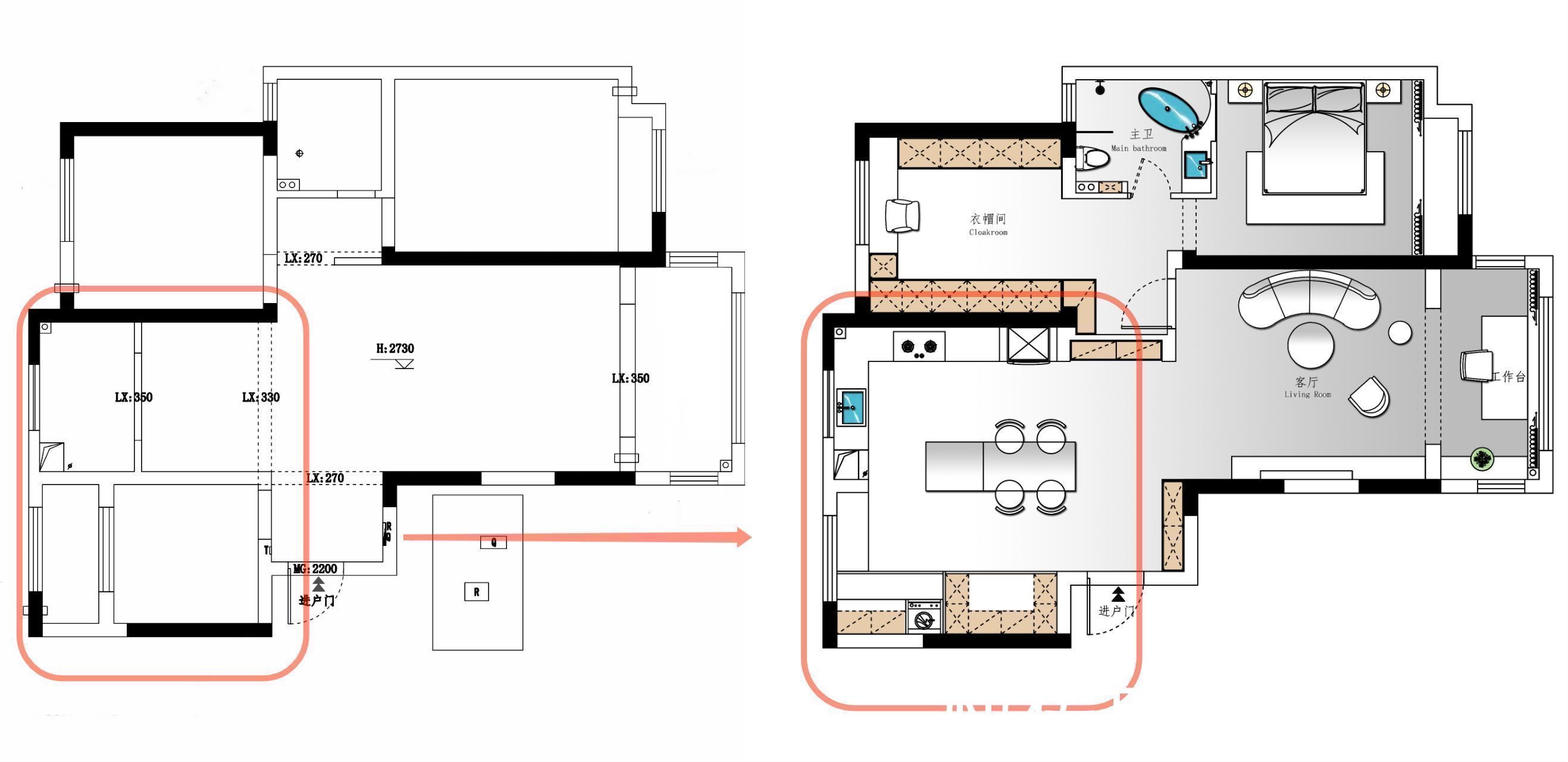
厨房采用吊柜+岛台形式,东西完全够放。深零之前就做过这样的案例,房屋风格为极简侘寂风,设计师打通北次卧墙体,设计开放式厨房,灶台边安置嵌入式冰箱,让空间秩序的重组,餐厨区域更显开阔。另一侧墙面设计隐形洗衣房及储物间,内部一方天地,完美诠释表面极简效果。
▲拆墙改开放式厨房,设计隐形洗衣房和储物

同样卧室,想要有视觉上的极简,但又不缺生活功能,也建议柜子做到顶,不破坏空间的整体性,收纳功能更强,帮助拉伸空间,增加美感。柜门最好采用无把手设计,可以装反弹器、碰珠来开门,也可以做一条凹槽来开门。

在当下这个飞速发展的时代,繁复的工作与社交让人们越来越向往简单自由的居家生活,极度简约不但能做到极度舒适和放松,同时还是一种新的生活方式、生活态度。
推荐阅读
- |最高暴涨70万!宁波二手房市场即将回暖?
- |“最惨购房者”相关话题登热搜榜首,到底是怎么一回事?
- 上海市|上海今日10盘同日摇号,市区4盘日光!最高认购比392%
- 郑州|买房月供曝光!郑州最新平均工资8694元,撑得起房贷么?
- 三栋镇|最高8.48万/亩!要征115亩地!涉及三栋、河南岸!
- 增值税|距离朝鲜最近的民居,歌声都传过去了,看看是啥样?
- 契税|谢逸枫:2021年全国房价次首破万元 销售额创下35年历史最高纪录
- 亮点|等了6个月终于能晒晒新房了,都挺满意的,客厅是最大的亮点
- 征地补偿|征地补偿有调整!长沙最新征地补偿标准公布
- 烂尾楼|有3类房子,未来千万不要购买,内部人士透漏:未来最少贬值20%
