木栈板|将墙壁凿开一半,客厅和书房大变样,家里变得更加通透大气
将墙壁凿开一半,客厅和书房大变样,家里变得更加通透大气
今天和大家分享的这个房屋是合肥业主买来当做婚房的,房屋的建筑面积是123平方米,小夫妻有了孩子之后也不会觉得太拥挤,因为是作为婚房,所以设计师在装修之前和屋主沟通了好几次,希望能够打造一个让屋主和妻子都满意的新家,毕竟婚房对于两个人也是很有意义的,也不想让他们的婚房留有遗憾。通过沟通业主选择了简单的北欧风,并希望将书房和客厅联系起来,这样就算在家工作也可以看到客厅,经过半年多的装修,也是打造出了一个让业主夫妻满意的婚房。
房屋户型:
三室
房屋面积
:123平方米
装修预算
:20到30万元
所在城市
:合肥
设计师
:王一飞
主要材料
:ICI喷漆、大理石、实木、线板、橡木地板、老铁件、木栈板等
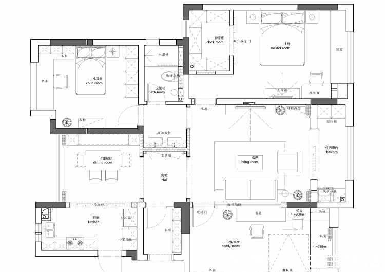
【户型图】
这个房屋的建筑面积是123平方米,不过这个房屋有一个好处是属于一个小洋房,整栋楼一共6层业主买的这个房子位于4楼,所以房屋的公摊面积很少使用率要比高层住宅楼高出很多,两个人结婚之后一两年之内没有打算要孩子看,所以最近几年家里就只有夫妻两个人居住,不过还是要为以后的孩子预留一个房间。

【玄关】
设计亮点:六角地砖
进门的玄关位置选择了灰白和黄色拼接的六角形地砖,地砖也成为了玄关和客厅之间的一个隔断,另外这里还添加了艺术画和摆件,让人回到家就感觉心情很好,有一种清新的感觉扑面而来。

【客厅】
【 木栈板|将墙壁凿开一半,客厅和书房大变样,家里变得更加通透大气】设计亮点:拆除书房和客厅之间的部分墙体
业主希望家里的书房和客厅之间能够有一个联系,这两个空间位于同一个房间又会有一些不方便,所以装修的时候去除了书房和客厅之间的部分墙体,换成了钢化玻璃,达成了业主对于新家的构想,同时也增强了房间的采光。
客厅选择了灰色和粉色的搭配,沉稳的灰色和浪漫的粉色形成对比,打造了一个舒适又清新的客厅空间。

设计亮点:添加黑板墙
黑板墙的设计方便两个人平时留言沟通,有了孩子之后也可以当做小孩子随意涂画的一个地方。

【厨房】
设计亮点:花朵地砖
厨房选择了花朵造型的地砖,让厨房也变得很有生机,做饭的时候心情也会变得更好一些。

推荐阅读
- |最高暴涨70万!宁波二手房市场即将回暖?
- 地板|160㎡四居室,玄关比我家卧室都大,这才是真正的低调奢华有内涵
- 武汉市自然资源和规划局|确定了!白沙洲将新添一所高中
- 限购|哈市125家房企将列入重点监管范围,详细名单→
- 木纹板|装修案例欣赏:小北欧风格的居家设计,简洁的同时又不失温馨感!
- 物业管理|瞄准高估值,2000亿房企将分拆物业赴港上市!物管行业遇冷,这一"新物种"能否打破寒冬?
- 银行|如果出现大规模的房贷断供现象,银行和业主将两败俱伤
- 棚户区改造|预制板楼房成危房?旧改政策实施,预制板楼房还会被拆除吗?
- 学区房|对于开发商,一旦你不懂这5大“潜规则”,买房成本将会增加20%!
- 购房置业|造纸业在北海铁山港区将再征地1405.2亩
