粉色调|125平三居室,入户和餐厅的收纳柜好能装,蓝色背景墙也超惊艳
今天分享一套建筑面积125平米的现代三居室案例,设计师在现代简洁的硬装基础上,加入了优雅、精致的软装,构造出了一个轻奢风的居住空间。还把入户的玄关和餐厅、厨房给连通,让整个空间显得更为宽敞明亮。
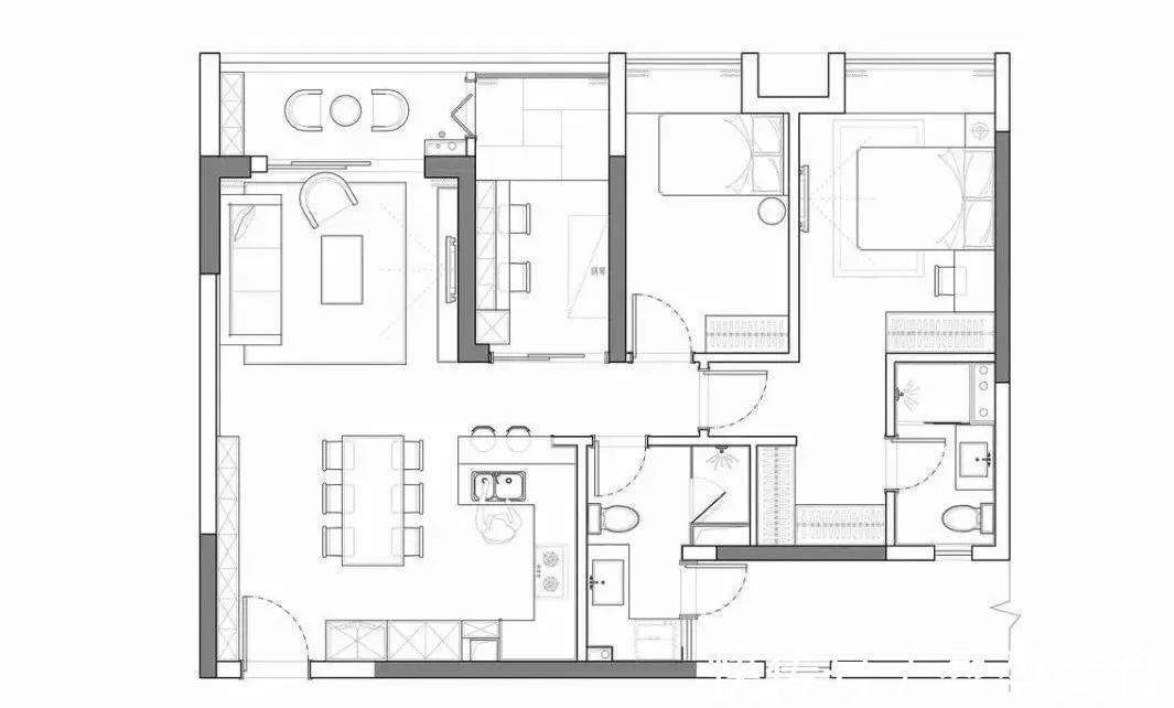
平面布置图
入户&餐厅
入户门的左右两侧都被设计师利用起来做个柜子,一侧是到顶的鞋柜,另一侧是餐边柜,冰箱也被整合进了柜子当中。
厨房
在餐厅的另一侧就是开放式的厨房,灶台被放在了靠近转角的地方,U字型的橱柜布局搭配餐厅和玄关的收纳设计,储物空间非常充足。
客厅
【 粉色调|125平三居室,入户和餐厅的收纳柜好能装,蓝色背景墙也超惊艳】
客厅的电视背景墙做了蓝色的布艺硬包造型,也和单椅、抱枕等相互呼应,浅色调的沙发和窗帘搭配白色的地砖,整个客厅显得格外明亮。
客厅的电视背景墙做了留空的设计,在电视柜上摆放一幅装饰画来代替电视,在弧形吊顶上加上了筒灯,给客厅带来不同的灯光。
主卧
主卧室的设计也比较简洁,整个墙面都刷上了白色乳胶漆,搭配蓝色系的床品和窗帘,在床尾还有着一个几何线条地毯,简洁而又大方。
卧室的床头背景墙上用挂画作为点缀,床头一侧摆放床头柜和台灯,另一侧摆放一个梳妆台,方便屋主每天化妆打扮。
儿童房
儿童房在简洁的背景色下,搭配了粉色调的床品和软装,儿童房把床靠着窗户来摆放,留出更多的空地给孩子玩耍,方便后续添置家具。
书房
屋主还在书房内做了一个榻榻米,这样工作累了也能直接躺在榻榻米上休息。书桌上方的书柜非常有设计感,让人感觉趣味十足。
卫生间
卫生间内通铺灰色调的瓷砖,搭配一个木质感的浴室柜和台上盆的设计,在淋浴区内还做了壁龛收纳,满足收纳的需求又不会占用本身就迷你的卫生间空间。
推荐阅读
- 限购|哈市125家房企将列入重点监管范围,详细名单→
- 厨房|台湾夫妻的人生首套房圈粉无数,网友:活出了很多人羡慕的样子!
- 面粉|油烟机脏了用钢丝球怎么都洗不掉?用面粉这1招就搞定了!
- 装饰|125㎡现代中式,稳重空间一抹红,点亮空间端庄感!
- 我爱我家|熊某不还房产是许敏没跟她好好商量,人气不足是因为杜粉理性?
- 装饰|125㎡美式风,从茶几小景到装饰画,独有一番自然和自由的风味
- 浪漫|75平的小户型,在北欧风中加入粉色,打造浪漫的小窝
- 灰色调|143平简约四居室,水泥灰和原木风的家具打造的空间,让人羡慕
- 壁纸|125平新房,一进门就把人迷住了,装修太漂亮了,不想走
- 人心情|67平米小户型,一进屋就被吸引,全屋色调太漂亮舒服了,让人放松
