中式|上海夫妻的新房装中式,三层别墅,虽然面积不大,装出来却很温馨
作者:小李说装修
我们崇尚简约又有质感的生活,对自然风光有着无限的向往,所以现在市面上也诞生了各式各样极度舒适的装修风格,比如新中式风就是这样诞生出来的,它不等同于中式风,它比较轻快一些,符合年轻人的审美一点。
本案介绍的是一套位于上海的新中式风格装修设计,房子是三层别墅,但是实际面积不大,只有258平米。上海寸土寸金,所以很难看到很大的占地面积很大的别墅吧。
设计简介:
装修风格:新中式风格
实际面积:258
空间格局:4房2厅
设计师:风云帆设计师
项目位置:上海市
装修造价:预算费用36.08W
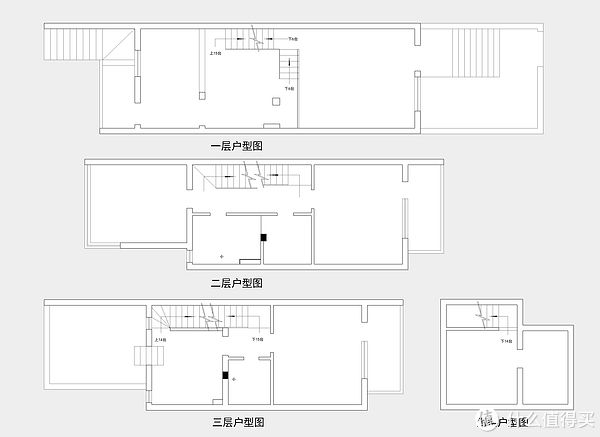
01户型图
这是一个“3+1”的别墅格局,三层的别墅加一个阁楼,总共面积加起来仅有258平米,平均下来每层的面积并不大,算是很拥挤的了。这是一个老小区,业主夫妻是上海本地人。房子的一层都是公共区域,没有一个卧室,有“前后花园”;二层和三层基本上是卧室空间,这也很好地把每层的功能都给区分好了。
02平面布置图
通过改造之后,平面布局变得更加贴近业主一家人的生活需求了;一楼进门有一个小花园,面积虽然并不大,但是也是一个很好的休闲之地;一楼就只有客厅、餐厅和厨房,另外后花园还有个车库,可以停得下一台车。二楼和三楼的布局很相似,尤其是主卧室上面,一模一样都是带衣帽间的套间,还都有个独立的阳台。
03客厅


客厅是家里面的会客之地,它的装修设计至关重要,是家里面很重要的一个“脸面”所在。客厅没有做很豪华的装饰,用简单的壁画来装饰出中式的韵味,点缀出中式的意境。客厅电视墙用的素色墙布布置,加实木线条进行了简单的装饰搭配;沙发墙是刺绣壁画加简单的实木线条搭配;两者起到了很好的呼应效果。
04阳台

客厅旁边有一个小阳台空间,是客厅会客功能的延伸,一把摇椅很有休闲的感觉。阳台的两边都做了柜子,为家里面增加了储物收纳功能,同时还预留了一部分出来做展示区,可以放一些装饰品来增加美感。
05餐厅


从客厅上来餐厅,需要上几阶楼梯,两个空间之间上下有些落差,这样增加了别墅的氛围。餐厅摆放了比较中规中矩,符合中式风格的餐桌,看上去很有中式特色。酒柜也做了比较多样的造型,有展示区也有带柜门的收纳区。
06主卧室



推荐阅读
- 饱和度|173㎡轻奢新中式,古典和现代的碰撞,唯美浪漫!
- 购房置业|上海女子拍下对楼住户家无敌露台,超大空间网友酸了:买房送操场
- 上海市|上海今日10盘同日摇号,市区4盘日光!最高认购比392%
- 别墅|参观亲戚上海的豪宅,别墅硬是住成农村房,真是糟蹋了好房子
- 上海市|2022年农村人要“享福了”?实行按户补贴,跟村民们的房子有关
- 灵魂深处|全屋定制案例|儒雅新中式,展现灵魂深处的东方情怀
- |73㎡复古风两居室,年轻夫妻的高品质生活
- |中式庭院,这才是最让我们心动的院子
- 武汉|男友花130万在上海买20㎡新婚房,闺蜜劝我不要嫁,太丢脸了
- 购房置业|夫妻俩大胆改造老房,坚持把3房改为1房,过于舒适了
