现代家庭|英国历史悠久的砖住宅改造

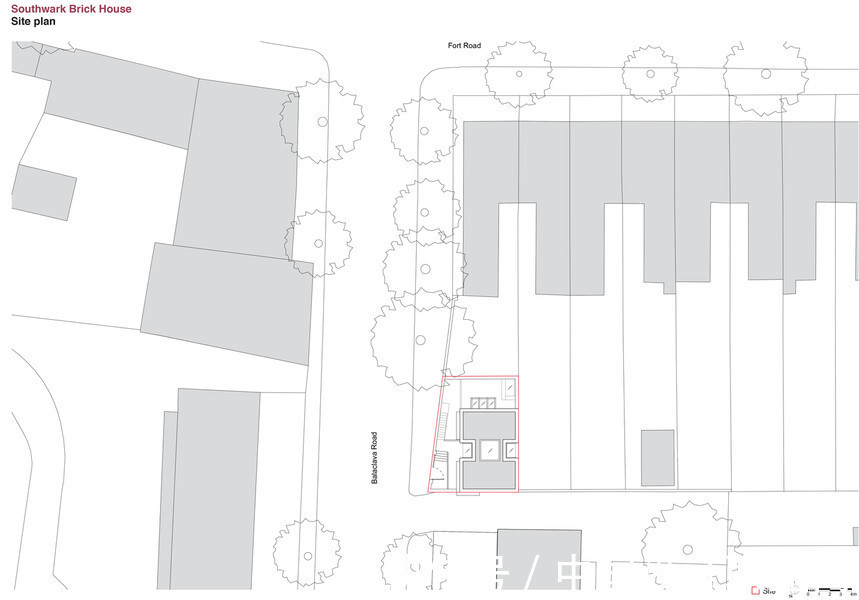
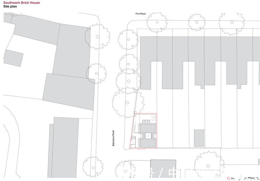
这座三层住宅设计,建筑面积为126平米,包括上面两层和地下一层。整栋建筑物的材料都很朴实,结合了当地的粘土砖和橡木。厨房和餐厅位于地下一层,采用天井照明。一楼外设有露台,露台的尽头是一个历史悠久的保护区。同时,地理位置和业主的需求,我们提供了一个优雅宽敞的现代家庭住宅方案。



为使建筑与现存的老建筑协调,该建筑使用了本地的粘土砖,其纹理粗糙而不完美,使整个建筑看起来有一种沧桑感。将它与当地的街景融为一体,立面采用橡木和橡木窗,让新旧形成对比。陶土砖块用三种不同的方法进行铺贴,厨房和餐厅均采用水平铺贴法。二层采用竖向铺贴方式,预留10 mm的凹槽,更具立体感。

【 现代家庭|英国历史悠久的砖住宅改造】
虽然给施工方带来了施工上的挑战,但整个建筑采用了多种铺贴方式。但完工后的建筑却与当地建筑相融合别具一格。
建筑设计: Satish Jassal Architects
面积: 126 m2
摄影师: Richard Chivers
推荐阅读
- 现代风|168㎡现代风,带着浓郁的归属感与愉悦感
- 饱和度|173㎡轻奢新中式,古典和现代的碰撞,唯美浪漫!
- 背景墙|97㎡现代风,以时尚打造空间,以新颖突出特点
- 卫生间|129平现代美式三居室,打造出一个舒适又温馨的美式家
- 三居室|118平现代风三居室,一个简单而纯粹还原生活色彩的家
- |2022年房价走势已清晰,准备买房的刚需家庭,提前看看这4大忠告
- 简单感|现实的平衡取舍,才是生活之道!143平现代风格设计欣赏!
- 家庭成员|卫生间进门洗漱台,中间马桶,里面淋浴,怎么装?有哪些设计方案?
- 垃圾桶|家庭主妇:厨房地柜不要全打满,空一格更实用!后悔我家装太早了
- 房价|未来2-3年,41.5%的城市家庭会面临什么问题?王石真“说中”了?
